




4+
Mã hàng: TBSN16
Số lượng:
Mô tả sản phẩm
Nếu yêu thích đường vân ngàn núi của sồi nga, nhưng màu vàng sáng của gỗ sồi nga không phù hợp với bạn, hãy chọn một màu bạn ưng ý việc còn lại dể Hpro thực hiện. Giá chỉ 3.400.000đ/ m dài, sơn màu miễn phí tại Hpro.
Bộ tủ bếp gỗ sồi nga TBSN16 nhà chị Hiền - Thái Hà khoác lên mình một màu óc chó trầm ấm, không còn cái màu vàng sáng trẻ trung ban đầu làm căn bếp mang một phong cách mới sang trọng và hiện đại. Mời các bạn thăm quan gian bếp nhà chị Nga!
Video thực tế bộ tủ bếp gỗ sồi nga TBSN16 sơn màu hạt dẻ nhà chị Hiền - Thái Hà
- Gỗ sồi nga thuộc loại gỗ cứng chất gỗ khá mềm và nhẹ hơn so với các loại gỗ khác như gỗ óc chó, gỗ xoan đào, gỗ sồi mỹ,... Cùng với đó là khả năng bắt vít tốt, dác gỗ sồi nga không mịn nhờ vậy khả năng bám sơn cao hơn nên rất tiện lợi trong việc thi công, lắp đặt, di chuyển đồ đạc nội thất gia đình như: bàn, ghế, gường, tủ, kệ,....
- Đặc tính chống mối mọt tốt nhờ hợp chất tinh dầu tanin tự nhiên có trong thân gỗ như một lá chắn bảo vệ gỗ sồi nga khỏi sự tấn công của các sinh vật gây hại như nấm mốc, mối mọt ,... nhưng dù sao đây vẫn là dòng gỗ tự nhiên nên cũng có giới hạn thời gian sử dụng. Gỗ sồi nga làm tủ bếp thích hợp với những gia đình ở căn hộ chung cư sẽ bền đẹp hơn so với những gia đình có nhà nền đất. Đối với những căn nhà nền đất hay ẩm hoặc ở khu vực có nhiều mối mọt có thể sử dụng tủ bếp gỗ sồi nga kết hợp thùng inox 304 đảm bảo bền đẹp, yên tâm tuyệt đối.

Hình ảnh gỗ sồi nga tại Hpro
- Khả năng chống chọi với điều kiện tự nhiên khắc nhiệt ở Việt Nam, gỗ sồi nga thường được trồng ở nước nga và các nước Châu Âu trong khu vực có khí hậu băng giá vì vậy khả năng chịu lực và chịu nhiệt của gỗ sồi nga khá tốt phù hợp để làm tủ bếp và các đồ nội thất khác.
- Tuy nhiên, gỗ sồi nga dễ bị cong vênh, nứt nẻ do thay đổi thời tiết đột ngột (từ ẩm ướt sang nắng to) hoặc gỗ bị ngấm nước thì quá trình làm khô gỗ thường lâu và dể sinh ra nứt gãy.
- Bản thân gỗ sồi nga là loại gỗ thuộc gam màu sáng, có màu vàng nhạt vân gỗ to hình núi rất đẹp, nếu bạn không thích màu vàng nhạt của gỗ sồi nga Hpro có thể giới thiệu với bạn 2 màu sơn gỗ đang được ưa chuộng nhất năm 2020. Đó là gỗ sồi nga sơn màu trắng tinh tế hoặc gỗ sồi nga sơn màu óc chó sang trọng.
- Mẫu tủ bếp gỗ sồi nga TBSN16 nhà chị Hiền - Thái Hà thiết kế hình chữ U sơn màu óc chó trầm ấm, sang trọng. Màu gỗ óc chó cũng là một màu sạch bởi nó giúp che đi những vết bẩn, vết ố trong quá trình sử dụng lâu dài, nhất là với một nơi có nhiều vết bẩn do việc vệ sinh và chế biến thức ăn hằng ngày. Với màu nâu hạt dẻ giúp quá trình lau dọn của chị em phụ nữ đỡ vất vả hơn.
>>> Tham khảo: Các mẫu tủ bếp gỗ sồi nga không thể bỏ qua năm 2020

Hình ảnh tổng thể bộ tủ bếp gỗ sồi nga TBSN16 nhà chị Hiền - Thái Hà
- Bộ tủ bếp gỗ sồi nga sơn màu óc chó TBSN16 nhà chị Hiền - Thái Hà gồm 2 hệ tủ đối xứng nhau, một hệ tủ bếp chữ U gồm bếp nấu, chậu rửa, tủ rượu kết hợp bàn đảo mini, hệ tủ còn lại hình chữ I cũng gồm bàn đảo và hộc tủ chứa tủ lạnh và tủ kho lưu trữ đồ dùng của gia đình.

Hai hệ tủ đối xứng nhau của tủ bếp gỗ sồi nga TBSN16 nhà chị Hiền - Thái Hà
- Kính cường lực ốp tường bếp màu vàng chanh mang lại sự tươi mới, tự nhiên cho căn bếp của gia đình chị Hiền. Đây là loại kính cường lực có khả năng chịu nhiệt, chịu va đập tốt. Và đặc biệt là bề mặt phẳng nhẵn, mịn rất dễ dàng vệ sinh.
- Mặt đá bàn bếp granite kim sa trung Trung Quốc màu đen sang trọng và sạch sẽ. Những ánh kim sa trên bề mặt giúp không gian trở lên nổi bật hơn rất nhiều. Càng tăng thêm vẻ đẹp sang trọng và hiện đại đúng yêu cầu của gia đình chị Hiền - Thái Hà, nên chị rất ưng ý với thiết kế Hpro.

Kính ốp tường bếp màu xanh trên mặt đá granite kim sa Trung Quốc màu đen sang trọng
- Các thiết bị, phụ kiện nhà bếp như bếp từ, máy hút mùi, lò nướng; giá để dao thớt, giá để xoong nồi, giá úp bát inox 304 nhập khẩu Đài Loan, thùng gạo thông minh,... Đều được sắp xếp, bố trí hợp lý, tiện lợi giúp tiết kiệm thời gian chuẩn bị bữa ăn cho gia đình.
Hpro miễn phí hoàn toàn cho gia đình chị Hiền - Thái Hà chi phí thiết kế 3D và 2D bộ tủ bếp gỗ sồi nga TBSN16.
- Bản vẻ 2D chi tiết mặt bằng của bộ tủ bếp gỗ sồi nga TBSN16.
Mặt bằng tủ bếp gỗ sồi nga TBSN16 nhà chị Hiền - Thái Hà

Mặt bằng tủ trên tủ bếp gỗ sồi nga TBSN16 nhà chị Hiền - Thái Hà
Mặt bằng tủ lạnh và tủ trang trí của tủ bếp gỗ sồi nga TBSN16 nhà chị Hiền - Thái Hà
Mặt bằng tủ dưới tủ bếp gỗ sồi nga TBSN16 nhà chị Hiền - Thái Hà
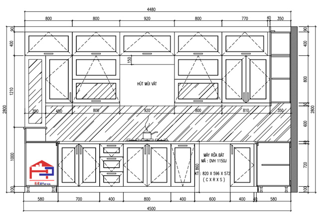
- Bản vẻ 2D chi tiết mặt đứng của bộ tủ bếp gỗ sồi nga TBSN16 sơn màu óc chó.

Mặt bằng đứng quầy bar tủ bếp gỗ sồi nga TBSN16 nhà chị Hiền - Thái Hà
Mặt bằng đứng hướng nhìn 3 tủ bếp gỗ sồi nga TBSN16 nhà chị Hiền - Thái Hà
Mặt bằng đứng hướng nhìn 2 tủ bếp gỗ sồi nga TBSN16 nhà chị Hiền - Thái Hà

Bản thiết kế 2D tủ bếp chữ I gồm tủ lạnh và bàn đảo
Hpro hoàn thiện bộ tủ bếp gỗ sồi tự nhiên sơn màu óc chó chỉ vẻn vẹn trong 2 tuần (kể từ ngày ký hợp đồng), nhà chị Hiền - Thái Hà làm bộ tủ bếp TBSN16 vào giáp tết cuối năm 2018, lượng khách hàng của Hpro tăng cao, dù vậy Hpro vẫn cố gắng hoàn thiện sớm nhất để chị Hiền lên nhà mới đúng ngày.
- Dưới đây là hình ảnh thực tế thi công lắp đặt bộ tủ bếp gỗ sồi nga TBSN16 sơn màu óc chó nhà chị Hiền - Thái Hà:

Toàn cảnh bộ tủ bếp gỗ sồi nga TBSN16 sơn màu óc chó nhà chị Hiền - Thái Hà

Hình ảnh hộc chứa tủ lạnh và bàn đảo trong hệ tủ bếp chứ I

Phần tủ trên trong hệ tủ hình chữ U của bộ tủ bếp gỗ sồi nga TBSN16 nhà chị Hiền - Thái Hà

Bộ tủ bếp gỗ sồi nga TBSN16 nhà chị Hiền - Thái Hà có màu óc chó gần với màu của sàn nhà

Thi công bàn đảo cạnh tủ rượu ở một cạnh hình chữ U tạo nên vách ngăn với phòng khách

Máy hút mùi được bố trí ở giữa 2 giá úp bát inox304 nhập khẩu

Hình ảnh gia đình chị Hiền nhiệm thu bộ tủ bếp gỗ sồi nga TBSN16 sơn màu óc chó
Dưới đây là bảng báo giá chi tiết tủ bếp gỗ sồi nga sơn màu óc chó TBSN16 mời bạn tham khảo!
Bảng báo giá tủ bếp gỗ sồi nga TBSN16 nhà chị Hiền - Thái Hà
- Bảng báo giá chi tiết phụ kiện mà chị Hiền đã sử dụng cho bộ tủ bếp nhà mình.

Bảng báo giá phụ kiện của tủ bếp gỗ sồi nga TBSN16 nhà chị Hiền - Thái Hà

Bảng báo giá phụ kiện của tủ bếp gỗ sồi nga TBSN16 nhà chị Hiền - Thái Hà
- Gỗ sồi nga tại Hpro được nhập khẩu tại nga, đã qua quá trình cắt sẻ, tẩm sấy nghiêm ngặt theo tiêu chuẩn Châu Âu và phải qua nhiều lớp sơn màu phức tạp vậy nên độ bền của gỗ sồi nga tại Hpro bền hơn hẳn so với các đơn vị khác.
- Hpro có kinh nghiệp hoạt động trong nghề thiết kế nội thất nhà ở hơn 10 năm, tất cả phần nội thất phòng khách, phòng ngủ và phòng bếp,... và được hàng triệu khách hàng yêu mếm, tin tưởng lựa chọn.
- Hpro bao tiêu giá từ xưởng sản xuất lớn cả nghìn mét vuông mang sản phẩm trực tiếp đến tay người tiêu dùng, không qua bất kỳ trung gian nào nên ở Hpro đã có giá tốt nhất trên thị trường.
Toàn cảnh xưởng Gỗ HPRO - máy móc hiện đại bậc nhất, quy trình chuyên nghiệp
- Hpro không lấy thêm chi phí sơn màu cho gỗ nên bạn hoàn toàn có thể lựa chọn màu sơn phù hợp với gia đình mình mà không hề phải đắn đo về chi phí
- Miễn phí hoàn toàn các chi phí: tư vấn - Thiết kế - đo đạc - vận chuyển (đối với khách nội thành).
- Phí vận chuyển ngoại thành chỉ: 15.000đ/km
Quý khách hàng đến ngay địa chỉ showroom gần nhất để nhận được tư vấn tận tình nhất cũng như xem tận mắt tủ mẫu, các loại thiết bị - phụ kiện bếp được trưng bày ở showroom.
+ Showroom 1: Số 17, Ngõ 40 Trung Kính, Cầu Giấy, Hà Nội
+ Showroom 2: 509 Nguyễn Văn Cừ, Long Biên, Hà Nội
+ Showroom 3: 123 đường 25/4 thành phố Hạ Long, Quảng Ninh
+ Showroom 4: 1328 Hùng Vương, Việt Trì, Phú Thọ.
Hoặc liên hệ ngay đến Hotline: 0902.222.945 (Mr.Hoàn) - 0917.346.883 (Mr.Nam) - 02.3236.3456 (số máy bàn cố định) để nhận được hỗ trợ tư vấn nhanh nhất.
>>> Xem ngay: Mẫu tủ bếp gỗ sồi nga TBSN17 nhà bác Thọ - Văn Cao
HỎI & ĐÁP
Liên hệ để được tư vấn