Mẫu tủ bếp acrylic TBAC147 kèm tủ rượu nhà anh Ánh - Nguyễn Xiển thiết kế theo kiểu dáng đơn giản, đầy đủ công năng, tiện ích. Sự kết hợp mã màu trắng bóng gương cùng màu ghi sáng mang đến 1 không gian bếp lịch lãm và sang trọng. Hpro bảo hành tủ bếp trong 24 tháng, bảo trì trọn đời
Mẫu tủ bếp acrylic TBAC147 kèm tủ rượu nhà anh Ánh - Nguyễn Xiển chữ I đơn giản, hiện đại. Gam màu tinh tế, lịch lãm, đáp ứng đầy đủ công năng cần thiết cho gia đình. Đây cũng là sự lựa chọn hoàn hảo cho những gia chủ yêu thích phong cách tủ bếp hiện đại.
Mẫu tủ bếp acrylic TBAC147 kèm tủ rượu nhà anh Ánh - Nguyễn Xiển
1. Hpro tư vấn thiết kế bộ tủ bếpTBAC124 nhà anh Thái với chất liệu Acrylic kết hợp Laminate
- Gia đình anh Ánh lựa chọn chất liệu gỗ công nghiệp Acrylic bóng gương kết hợp laminate cho nội thất phòng bếp. Với kết cấu tủ bếp trên Acrylic màu trắng bóng gương, code bên trong MDF lõi xanh chống ẩm, KHÔNG cong vênh, co ngót, nứt nẻ và mọt tấn công. Bên ngoài mặt cánh tủ 1 lớp nhựa Acrylic bằng công nghệ dán cạnh "no line" - bảo vệ code gỗ bên trong và đem đến giá trị thẩm mỹ cao cho căn bếp.
- Sự kết hợp hoàn hảo giữa acrylic màu trắng tinh khôi với màu ghi nhẹ nhàng đã đem đến cho gia đình anh Ánh 1 không gian bếp vừa rộng rãi, thoáng đãng lại vừa hiện đại, lịch lãm.

Thiết kế 3d mẫu tủ bếp acrylic TBAC147 kèm tủ rượu nhà anh Ánh - Nguyễn Xiển. Tông màu trắng - ghi sáng lịch lãm, hiện đại
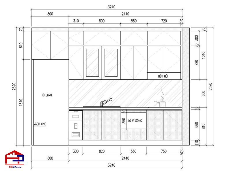
- Diện tích căn chung cư không quá lớn nên diện tích phòng bếp nhà anh Ánh cũng eo hẹp. Chiều dài chỉ khoảng hơn 3m nhưng gia đình vẫn muốn bố trí tủ lạnh trong bếp để đảm bảo sự thuận tiện cao nhất trong quá trình thực hiện công việc nấu nướng.
- Tuy vậy, tủ lạnh, chậu rửa và bếp từ vẫn được bố trí hợp lý, hợp phong thủy. Giữa chậu rửa và tủ lạnh được bố trí thùng đựng gạo thông minh mặt gương sáng bóng

Chi tiết 2D mặt đứng tủ bếp acrylic TBAC147 kèm tủ rượu nhà anh Ánh - Nguyễn Xiển
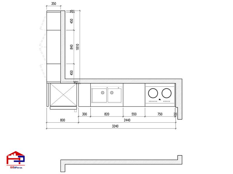
- Tủ lạnh - bếp từ - chậu rửa mặc dù được thiết kế cùng nằm trên cùng 1 đường thẳng nhưng đội KTS Hpro đã rất tinh tế, khéo léo đặt cách chúng nằm cách nhau 1 khoảng 60 - 70cm, hợp phong thủy nhà bếp. Hơn nữa, còn giúp cho các thành viên trong gia đình anh Thái di chuyển giữa các khu vực được thuận tiện, tiết kiệm thời gian bếp núc hơn.

Chi tiết 2D bằng tủ bếp dưới acrylic TBAC147 nhà anh Ánh - Nguyễn Xiển

Chi tiết 2D bằng tủ bếp trên acrylic TBAC147 nhà anh Ánh - Nguyễn Xiển

Chi tiết 2D mặt đứng tủ rượu nhà anh Ánh - Nguyễn Xiển
- Ngoài 3 thiết bị cần thiết, quan trọng nhất trong nhà bếp nói trên thì gia đình anh Ánh còn sử dụng thêm một số phụ kiện bếp hiện đại, tiện nghi khác như: giá úp bát, giá để xoong nồi, giá dao thớt,...
- Mặt đá bếp dưới là trắng vân mây với màu trắng kết hợp những đường vân sống động mang đến một không gian tươi sáng. Kính ốp bếp màu ghi bóng gương cũng làm tăng độ sáng cho căn bếp của gia đình.
>>> Nếu yêu thích chất liệu gỗ Acrylic bóng gương An Cường thì đừng bỏ qua +1001 mẫu tủ bếp acrylic thiết kế hiện đại, màu sắc ấn tượng tại Nội Thất Hpro.
2. Hình ảnh thực tế mẫu tủ bếp acrylic TBAC147 kèm tủ rượu nhà anh Ánh - Nguyễn Xiển
Do toàn bộ vật liệu làm tủ bếp và mặt cánh Acrylic bóng gương Hpro nhập trực tiếp từ nhà phân phối An Cường nên việc thi công sản xuất sẽ mất khoảng 15 ngày kể từ khi 2 bên ký kết hợp đồng thi công. Dưới đây là một số hình ảnh thực tế mẫu tủ bếp acrylic TBAC147 kèm tủ rượu nhà anh Ánh - Nguyễn Xiển sau khi Hpro lắp đặt hoàn thiện:
3. Báo giá mẫu tủ bếp acrylic TBAC147 kèm tủ rượu nhà anh Ánh - Nguyễn Xiển
Hpro luôn công khai, minh bạch giá cả chi tiết từng bộ tủ bếp và nội thất căn hộ của khách hàng là Bởi:
- Thứ nhất, Hpro tự tin cung cấp sản phẩm giá tốt, chất lượng nhất thị trường.
- Thứ 2, Hpro hiểu khách hàng của mình. Giá cả luôn là vấn đề nhạy cảm mà ai cũng quan tâm. Việc minh bạch giá cả từng công trình giúp khách hàng biết và định hình rõ hơn về chi phí của bộ tủ bếp mà mình muốn. Cộng với sự tư vấn của đội ngũ chuyên nghiệp, không ngạc nhiên khi 100% khách hàng hài lòng về chất lượng, về giá tại Hpro.
Mời bạn xem báo giá chi tiết bộ tủ bếp acrylic TBAC147 kèm tủ rượu nhà anh Ánh - Nguyễn Xiển
4. Tại sao gia đình anh Ánh và hàng ngàn khách hàng khác lựa chọn Hpro thi công tủ bếp acrylic
- Với kinh nghiệm hơn 10 năm trong lĩnh vực thiết kế thi công nội thất theo yêu cầu, Nội thất Hpro là địa chỉ tin cậy cho gia đình bạn.
- Đến với Hpro bạn sẽ được trải nghiệm Quy trình làm việc CHUYÊN NGHIỆP từ đội ngũ nhân viên nhiệt tình, năng động của Hpro.

Sơ đồ quy trình làm tủ bếp và đồ nội thất tại Hpro
- Tư vấn chi tiết, tận tình nhất về chất liệu gỗ, các phụ kiện – thiết bị bếp để Quý khách hàng dễ dàng tìm cho mình loại phù hợp nhất. Đặc biệt, Hpro sẽ lên giúp bạn bản báo giá sơ bộ để từ đó bạn dễ dàng hình dung và dự toán được mức chi phí đầu tư cho gia đình.
- Đo đạc, khảo sát tận nơi hoàn toàn MIỄN PHÍ. Dù bạn ở đâu hay bạn không có thời gian rảnh vào giờ làm việc hành chính thì cũng đừng băn khoăn bởi nhân viên của Hpro sẽ đến tận nơi để đo đạc và tư vấn cho bạn.
- MIỄN PHÍ bản vẽ thiết kế 3D tủ bếp – nội thất khi ký hợp đồng thi công tại Hpro. Đội ngũ KTS trẻ trung, năng động, nhiệt tình, luôn lắng nghe ý kiến khách hàng để đưa ra bản vẽ thiết kế hợp mong muốn chủ nhà nhất.
- Đối với sản phẩm tủ bếp acrylic, laminate thì thời gian thi công mất khoảng 15 – 20 ngày kể từ khi ký kết hợp đồng thi công. Quý khách hàng có thể về tận xưởng sản xuất Hpro để kiểm chứng chất lượng gỗ trước khi được vận chuyển đến công trình để lắp đặt. Địa chỉ xưởng Hpro là: Đội 5 Hát Môn, Phúc Thọ, Hà Nội
- Vận chuyển hoàn toàn MIỄN PHÍ cho KH ở nội thành Hà Nội (bán kính 40km). Với KH ở các tỉnh khác sẽ phát sinh chi phí vận chuyển là 15.000đ/km tính từ trung tâm Tp.Hà Nội.
- Lắp đặt hoàn toàn MIỄN PHÍ cho tất cả khách hàng.
- Bảo hành phần gỗ tủ bếp trong 2 năm. Bảo trì vĩnh viễn. Chế độ bảo hành chuyên nghiệp – nhanh chóng – chính xác.
- Chắc chắn rằng, đến với Nội thất Hpro bạn sẽ cảm thấy HÀI LÒNG
Gọi ngay đến Hotline: 0902.222.945 (Mr. Hoàn) – 0917.346.883 (Mr. Nam) - 024.3236.3456 (số máy bàn cố định) hoặc chat trực tiếp trên website để nhận được tư vấn và báo giá sơ bộ theo kích thước bếp nhà bạn.
Hoặc đến Showroom gần nhất của Hpro để được tư vấn tận tình nhất:
- Cơ sở 1: Số 17, ngõ 40 Trung Kính, Cầu Giấy, Hà Nội
- Cơ sở 2: 509 Nguyễn Văn Cừ, Long Biên, Hà Nội
- Cơ sở 3: 123 Đường 25/4 thành phố Hạ Long, Quảng Ninh
- Cơ sở 4: 1328 Hùng Vương, Việt Trì, Phú Thọ
>>> Có thể bạn quan tâm: