




4+
Mã hàng: TBOC11
Số lượng:
Mô tả sản phẩm
Tủ bếp gỗ óc chó TBOC11 nhà chú Hướng - Nam Định thiết kế hình chữ L kịch trần với bố trí đầy đủ công năng mang đến tiện nghi cao. Màu sắc Hpro lựa chọn cho chú Hướng là nâu socola trầm ấm cúng, sang trọng.
Bạn vừa hoàn thiện xong ngôi nhà vườn, căn biệt thự cho gia đình và có nhu cầu muốn thiết kế nội thất phòng bếp? Bạn muốn sở hữu một bộ tủ bếp to, rộng từ gỗ cao cấp có độ bền cao, màu sắc đẹp sang trọng thể hiện đẳng cấp cho gia chủ? Tham khảo ngay mẫu tủ bếp gỗ óc chó TBOC11 nhà chú Hướng ở Nam Định dưới đây.
Video thực tế bộ tủ bếp gỗ óc chó TBOC11 nhà chú Hướng ở Nam Định
Tủ bếp nhà chú Hướng được làm bằng gỗ óc chó cao cấp 100% tự nhiên nhập khẩu Bắc Mỹ. Gỗ có độ cứng chắc chắn, chịu lực, nhiệt tốt. KHÔNG bị ẩm mốc, mối mọt, chống sâu nấm tấn công. KHÔNG có hiện tượng cong vênh, co ngót, nứt nẻ của gỗ trong quá trình sử dụng.

Ảnh thiết kế 3D tủ bếp gỗ óc chó TBOC11 nhà chú Hướng - view 1
Sử dụng gỗ óc chó với bề mặt cánh phun sơn màu nâu socola trầm sang trọng, ấm cúng. Đường vân gỗ sắc nét, đều đẹp cộng thêm với những hoa văn, họa tiết khắc trên bề mặt cánh rất tinh tế, đẹp mắt. Tay nắm tân cổ điển màu vàng càng tô thêm nét sang trọng, đẳng cấp cho phòng bếp nhà chú Hướng.
Tủ bếp gỗ óc chó TBOC11 được thiết kế chữ L kịch trần tận dụng tối đa diện tích phòng để làm không gian lưu trữ đồ. Khuyết đi 1 khoang tủ bếp trên nhường chỗ cho ô cửa sổ rộng thoáng đãng, giúp tận dụng tối đa ánh sáng tự nhiên, không khí trong lành vào nhà.

Mẫu tủ bếp gỗ óc chó TBOC 11 nhà chú Hướng - view 2
Nối liền với hệ tủ bếp chữ L là khoang tủ lạnh, tủ rượu và tủ kho có lắp giá inox 6 tầng 12 rổ tiện lợi. Sự bố trí này giúp cho căn bếp trở nên khang trang, tiện nghi hơn cho mọi người sử dụng mỗi khi vào bếp. Tất cả công năng đều nằm trong 1 không gian.
Ở giữa phòng bếp là bàn đảo đa năng và bộ bàn ghế ăn rộng, sang. Mọi người có thể luôn quây quần bên nhau vào bếp, ăn uống và dọn dẹp.

Tủ bếp nhà chú Hướng được thiết kế theo dáng chữ L to, rộng, màu sắc ấm cúng.
Để giúp cho việc nấu nướng, cất giữ đồ được tiện lợi thì chú Hướng có sử dụng đầy đủ thiết bị - phụ kiện bếp hiện đại, thông minh như: giá úp bát, giá để xoong nồi, giá dao thớt, thùng gạo thông minh...

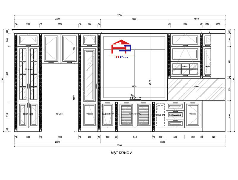
Ảnh thiết kế 2D mặt đứng A tủ bếp gỗ óc chó TBOC11 nhà chú Hướng ở Nam Định

Bản vẽ chi tiết 2D mặt đứng B tủ bếp gỗ óc chó TBOC11 nhà chú Hướng

Ảnh chi tiết kích thước mặt bằng tủ bếp trên của nhà chú Hướng ở Nam Định

Bản vẽ kỹ thuật tủ bếp kịch trần phát sinh của nhà chú Hướng ở Nam Định

Ảnh chi tiết kích thước tủ bếp dưới của nhà chú Hướng - Nam Định

Chi tiết kích thước hệ bàn đảo đa năng của nhà chú Hướng ở Nam Định
>>> Tìm hiểu thêm về tủ bếp gỗ óc chó tại Hpro tại đường dẫn link: https://noithathpro.com/tu-bep-go-oc-cho

Tủ bếp nhà chú Hướng được Hpro hoàn thiện trong 15 ngày kể từ khi ký hợp đồng

Hình ảnh thực tế bộ tủ bếp gỗ óc chó TBOC11 nhà chú Hướng sau khi được Hpro hoàn thiện, lắp đặt

Mặt đá bàn bếp chú Hướng lựa chọn đá thạch anh cao cấp đẹp với đường vân sắc nét đẹp.

Cận cảnh bề mặt cánh tủ bếp gỗ óc chó TBOC11 nhà chú Hướng màu nâu socola trầm ấm cúng, đẹp sang

Trong suốt quá trinh hoàn thiện thì cô nhà chú Hướng đều giám sát và theo dõi nhân viên chúng tôi.

Hình ảnh nhân viên Hpro đang hoàn thiện phần tủ bếp trên cho nhà chú Hướng ở Nam Định

Bảng giá chi tiết bộ tủ bếp gỗ óc chó TBOC11 nhà chú Hướng - view 1

Hpro báo giá tủ bếp gỗ óc chó TBOC11 nhà chú Hướng - view 2

Chi tiết bảng giá bộ tủ bếp gỗ óc chó TBOC11 nhà chú Hướng ở Nam Định - view 3

Bảng giá tủ bếp gỗ óc chó TBOC11 nhà chú Hướng - view 4

Bảng giá tủ bếp gỗ óc chó TBOC11 nhà chú Hướng - view 5
Để giúp cho tủ nhà chú Hướng được trở nên tiện nghi hơn thì Hpro có tư vấn cho gia đình sử dụng thêm một số thiết bị - phụ kiện tủ bếp thông minh như:
Giá úp bát: Phụ kiện được thiết kế 2 tầng có chức năng lưu trữ bát đĩa 1 cách gọn gàng, ngăn nắp. Dưới mỗi tầng có khay hứng nước bừng nhựa tiện lợi.

Giá úp bát thông minh có khả năng nâng lên hạ xuống 1 cách dễ dàng, thích hợp cho mọi người

Ảnh phụ kiện giá úp bát cố định 2 tầng Carymax 100% inox 304 bền đẹp
Giá để xoong nồi: Sản phẩm giá để xoong nồi được thiết kế với kiểu dáng hiện đại, 2 tầng thoải mái bảo quản xoong nồi một cách nhanh chóng và tiện dụng. Phụ kiện được làm bằng chất liệu inox 304 sáng bóng, có khả năng chống han gỉ cũng như mài mòn tốt đồng hành cùng quá trình sử dụng của gia đình lâu dài.

Giá để xoong nồi 2 tầng Carymax inox 304 sáng bóng, chống han gỉ, oxy hóa
Tay nâng Blum: Phụ kiện nâng cánh tủ bếp lên phía trên, bạn hoàn toàn không lo bị va chạm với cánh tủ bếp nữa.

Cận cảnh tay nâng Blum nâng cánh tủ bếp trên
Giá dao thớt đa năng: Phụ kiện gia để dao thớt với thiết kế 3 tầng vô cùng tiện ích. Mỗi tầng được phân chia vô cùng hợp lý giúp gia đình bạn bảo quản các đồ dùng như dao, thớt, đĩa một cách an toàn. Sản phẩm phù hợp với những gia đình có trẻ nhỏ và người lớn tuổi.

Ảnh thực tế phụ kiện giá dao thớt đa năng Carymax inox sợi Hpro trưng bày tại showroom Trung Kính
Kệ gia vị: Phụ kiện thiết kế những vòng tròn để các lọ gia vị vô cùng tiện ích đảm bảo người dùng sẽ dễ dàng mỗi khi lấy đồ

Hình ảnh thực tế giá gia vị 2 tầng Carymax tại Hpro
Thùng gạo thông minh: Mặt thùng gạo tráng gương chống gỉ, bên trong thùng gạo có thể lưu trữ 15 kg gạo. Nút nhấn thả vô cùng thông minh, chỉ cần nhấn và xoay là một lượng gạo cố định sẽ được lấy ra, thao tác lấy gạo vô cùng dễ dàng.

Hình ảnh thực tế phụ kiện thùng gạo thông minh mặt gương bóng sáng tại Hpro
Tủ kho đa năng: Hệ tủ kho đa năng inox 6 tầng, 12 rổ của Eurogold giúp gia đình anh Mạnh tăng thêm không gian lưu trữ, bảo quản đồ đạc. Hệ ray trượt liên hoàn góc rộng mang đến trải nghiệm vô cùng tiện ích.

Hình ảnh thực tế hệ tủ kho
Khi đóng tủ bếp gỗ óc chó TBOC11 tại Hpro, gia đình chú Hướng nhận được một số ưu đãi như:
Nếu bạn cũng đang có nhu cầu muốn làm tủ bếp liên hệ ngay Hpro qua Hotline: 090.2222.945 (Mr. Hoàn) để nhận hỗ trợ tư vấn nhanh nhất từ chuyên viên của chúng tôi.
Hoặc đến trực tiếp showroom dưới đây:
>>> Bài viết xem thêm: Tủ bếp gỗ óc chó TBOC12 thùng inox 304 cao cấp, bền đẹp nhà anh Mạnh - Hòa Bình
HỎI & ĐÁP
Liên hệ để được tư vấn