




4+
Mã hàng: TBLM30
Số lượng:
Mô tả sản phẩm
Mẫu tủ bếp laminate TBLM30 kết hợp acrylic nhà anh Triển thiết kế theo dáng chữ I song song tạo 1 lối đi ở giữa giúp gia đình đi lại để nấu nướng. Tủ được lắp đặt đầy đủ công năng mang đến sự tiện nghi cao. Hpro bảo hành 2 năm và bảo trì trọn đời
Bạn thường quen với những mẫu tủ bếp kiểu dáng chữ I, L, U hay chữ G với sự bố trí công năng hoàn hảo. Hôm nay, Hpro xin giới thiệu đến quý khách hàng mẫu tủ bếp mới hình chữ I song song nằm gọn ở 2 góc bên tường đối diện được lắp đặt nhiều công năng hoàn hảo mang đến sự tiện nghi cao cho người gia đình anh Triển thực hiện quá trình bếp núc được thuận tiện nhất. Cùng xem chi tiết thiết kế, công năng tủ bếp laminate TBLM30 kết hợp acrylic nhà anh Triển - Vĩnh Hưng dưới đây nhé!
Video thực tế bộ tủ bếp laminate TBLM30 kết hợp acrylic nhà anh Triển siêu tiện nghi
Gia đình anh Thái lựa chọn chất liệu gỗ công nghiệp laminate kết hợp acrylic bóng gương An Cường. Với kết cấu tủ bếp trên Acrylic màu trắng bóng gương, code bên trong MDF lõi xanh chống ẩm, KHÔNG cong vênh, co ngót, nứt nẻ và mọt tấn công. Bên ngoài mặt cánh tủ 1 lớp nhựa Acrylic bằng công nghệ dán cạnh "no line" - bảo vệ code gỗ bên trong và đem đến giá trị thẩm mỹ cao cho căn bếp. Phần khung thùng tủ bếp là gỗ melamine An Cường bề mặt sần với khả năng chống trầy xước tốt. Hậu tủ là Aluminium dày 2,8 - 3mm chống thấm nước.

Đây là bản vẽ 3D bộ tủ bếp laminate TBLM30 kết hợp acrylic hình chữ I song song của nhà anh Triển ở Vĩnh Hưng
Tủ bếp dưới với bề mặt là gỗ laminate chống trầy dán trên bề mặt code gỗ MDF lõi xanh chống ẩm nhập khẩu Malaysia. Vật liệu cũng có khả năng chịu nhiệt tốt, bề mặt phẳng mịn dễ vệ sinh lau chùi, màu vân gỗ ấm cúng, sang trọng. Phần khung thùng tủ bếp bên trong Hpro sử dụng 100% inox 304 cao cấp, có khả năng chống mối mọt, han gỉ, oxy hóa, thấm nước tốt. Đảm bảo độ bền cho bộ tủ bếp nhà anh Triển có thể lên tới 25 năm.
Tủ bếp laminate TBLM30 kết hợp acrylic nhà anh Triển được thiết kế theo dáng chữ I song song. Với một hệ tủ bếp chữ I lắp đặt các thiết bị, phụ kiện tủ bếp phục vụ quá trình nấu nướng, còn hệ tủ chữ I còn lại là các khoang tủ, ngăn kéo để đồ. Ở giữa nhà bếp là bộ bàn ghế để các thành viên trong gia đình quây quần bền nhau trong mỗi bữa ăn.

Bản vẽ 3D hệ tủ bếp chữ I với công năng nấu chính của gia đình anh Triển ở Vĩnh Hưng
Cả tủ bếp trên và dưới của nhà anh Triển đều sử dụng kiểu cánh vát chéo góc 45 độ nhằm tăng tính thẩm mỹ, vẻ đẹp hiện đại, sang trọng hơn cho không gian bếp. Và cũng vẫn đảm bảo được sự thuận tiện cho mọi thành viên trong quá trình đóng mở tủ.
Mặt đá bàn bếp màu trắng, kính ốp tường bếp màu ghi nhạt nhẹ nhàng mang đến sự đồng bộ cho tổng quan căn phòng. Nó còn giúp cho tủ được tươi sáng, thông thoáng hơn.

Ảnh thiết kế 3D hệ tủ chữ I lắp tủ lạnh và hệ tủ kho của nhà anh Triển ở Vĩnh Hưng
Với sự phân chia rõ ràng công năng giữa 2 hệ tủ bếp này tạo nhiều sự tiện lợi cho chị nhà anh Triển trong quá trình nấu ăn và dọn dẹp. Bởi chúng đều được sắp xếp rất gần nhau, di chuyển chỉ cần 1,2 bước là đến. Chi tiết mời bạn xem bản vẽ 2D dưới đây:

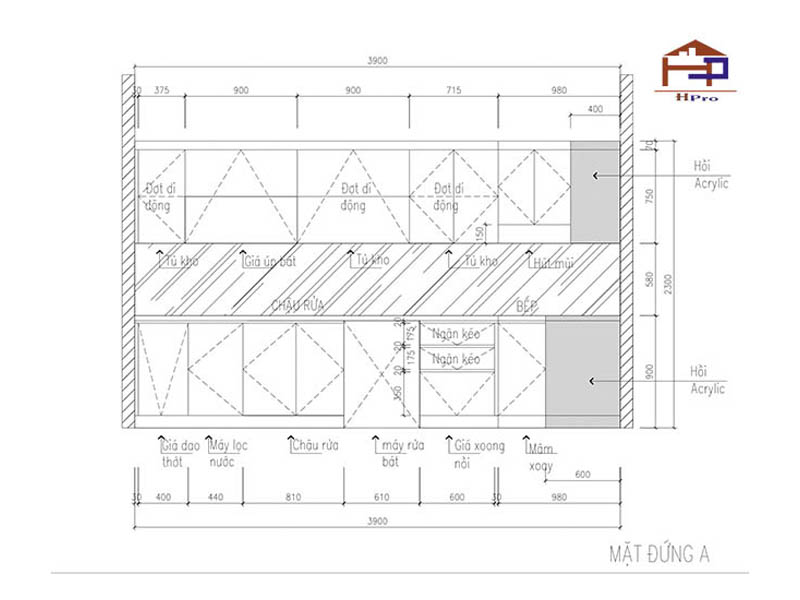
Ảnh thiết kế 2D mặt đứng A tủ bếp laminate TBLM30 kết hợp acrylic nhà anh Triển

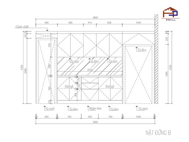
Bản vẽ 2D mặt đứng B tủ bếp laminate TBLM30 kết hợp acrylic nhà anh Triển - Vĩnh Hưng

Bản vẽ kỹ thuật mặt bằng tủ bếp trên của nhà anh Triển ở Vĩnh Hưng

Ảnh chi tiết kích thước các khoang cánh tủ bếp dưới của nhà anh Triển ở Vĩnh Hưng
>>> Mãn nhãn với 100 mẫu tủ bếp bằng laminate siêu đẹp, tiện nghi tại Nội Thất Hpro
Sau khi tư vấn và lên bản thiết kế Hpro đã hoàn thiện công trình tủ bếp laminate TBLM159 kết hợp acrylic cho gia đình anh Triển. Mẫu tủ bếp được thiết kế hiện đại, tiện nghi và vẫn tạo nên sự rộng rãi, thoáng đãng cho không gian bếp. Cùng ngắm nhìn bộ tủ bếp trong thực tế mà Hpro đã ghi lại bên dưới:

Hình ảnh thực tế hệ tủ bếp chữ I với công năng nấu chính của nhà anh Triển

Ảnh thực tế hệ tủ bếp chữ I để tủ lạnh, tủ kho để đồ của nhà anh Triển sau khi được Hpro hoàn thiện

Tủ bếp dưới nhà anh Triển với gam màu vân gỗ đẹp, sang trọng mang đến sự ấm cúng cho không gian bếp

Hình ảnh tủ bếp laminate TBLM30 hình chữ I sau khi vừa hoàn thiện được 80% chưa lắp mặt đá
bàn đảo bếp và kính ốp tường.

Cận cảnh khung thùng tủ bếp dưới inox 304 cao cấp với khả năng chống mối mọt, thấm nước và han gỉ tốt.

Tủ bếp laminate TBLM30 nhà anh Triển được lắp đặt đầy đủ công năng bếp như: giá úp bát, giá để xoong nồi, giá dao thớt,...

Hình ảnh nhân viên Hpro đang đo đạc lại kích thước phần tường để lắp đặt tủ bếp trên cho chuẩn xác nhất.

Ảnh phác họa nhân viên Hpro đang thi công lắp đặt bộ tủ bếp laminate TBLM30 kết hợp acrylic của nhà anh Triển ở Vĩnh Hưng

Bảng giá chi tiết từng hạng mục tủ bếp laminate TBLM30 kết hợp acrylic nhà anh Triển - view 1

Bảng giá tủ bếp laminate TBLM30 kết hợp acrylic nhà anh Triển - view 2
Để giúp cho không gian phòng bếp nhà anh Triển được hiện đại, tiện nghi thì Hpro có tư vấn cho gia đình sử dụng thêm một số thiết bị - phụ kiện bếp thông minh dưới đây:

Hình ảnh minh họa phụ kiện giá úp bát thông minh có cơ cấu lực hỗ trợ việc nâng lên hạ xuống giúp người nội trợ

Hình ảnh thực tế giá úp bát cố định 2 tầng lắp tủ bếp trên cho nhà anh Triển

Giá để xoong nồi 2 tầng Carymax inox 304 sáng bóng, chống han gỉ, oxy hóa

Phụ kiện giá dao thớt đa năng thiết kế đa năng bằng inox 304 dạng sợi bền đẹp

Cận cảnh tay nâng Blum nâng cánh tủ bếp trên
Sở dĩ anh Triển cũng như tất cả các khách hàng làm tủ bếp, nội thất tại Nội Thất Hpro đều hài lòng vì Hpro có:
Nếu bạn cũng muốn sở hữu một bộ tủ bếp hiện đại, đẹp và tiện nghi thì liên hệ ngay với Hpro qua Hotline: 090.2222.945 (Mr. Hoàn) để được hỗ trợ và tư vấn nhanh chóng.
Hoặc đến trực tiếp các showroom của Nội thất Hpro:
Tham khảo thêm bản vẽ 3D mẫu tủ bếp laminate TBLM31 nhà chị Toan ở Vinhomes Ocean Park
HỎI & ĐÁP
Liên hệ để được tư vấn