
Mã hàng: TBM02
Số lượng:
Mô tả sản phẩm
Mẫu tủ bếp melamine TBM02 nhà anh Thành - Hoài Đức với thiết kế chữ i nhỏ gọn, bố trí công năng hoàn hảo. Tủ sử dụng màu sắc nhẹ nhàng, nhã nhặn mang đến 1 vẻ đẹp thanh lịch, hiện đại.
Một không gian sống hiện đại - tiện nghi luôn là mơ ước của rất nhiều gia chủ Việt hiện nay. Tuy nhiên, sở hữu một căn hộ chung cư khiến nhiều gia đình băn khoăn không biết nên bố trí gian bếp ra sao để phù hợp với tiêu chí trên. Vậy thì hãy đến ngay Nội thất Hpro - đơn vị chuyên thiết kế & thi công nội thất tủ bếp dựa trên kích thước thực tế. Bạn có thể tham khảo ngay mẫu tủ bếp melamine TBM02 nhà anh Thành ở Hoài Đức với thiết kế hiện đại, tinh tế và bố trí khoa học ngay sau đây để có ý tưởng cho gian bếp nhỏ nhà mình nhé!
Tủ bếp nhà anh Thành được làm 100% bằng gỗ melamine với code bên trong là MDF lõi xanh có khả năng chống ẩm, chống cong vênh cũng như nứt nẻ vô cùng tốt đảm bảo các khách hàng hoàn toàn có thể yên tâm chọn lựa cũng như sử dụng một cách nhanh chóng cũng như đạt được hiệu quả cao.
Bề mặt cánh tủ với bề mặt phẳng mịn hiện đại giúp việc lau chùi, vệ sinh rất dễ dàng, tiện lợi tiết kiệm thời gian tối đa trong quá trình dọn dẹp.

Ảnh thiết kế 3D mẫu tủ bếp melamine TBM02 nhà anh Thành ở Hoài Đức
Bộ tủ bếp melamine TBM02 nhà anh Thanh được thiết kế theo kiểu dáng chữ I nhỏ gọn. Tủ bếp dưới màu vân gỗ kết hợp tủ bếp trên màu trắng tinh tế giúp không gian bếp như rộng rãi hơn rất nhiều so với kích thước thực tế.
Điểm nhấn nổi bật của bộ tủ là mặt đá bàn bếp granite màu đen kim sa trung lấp lánh đẹp. Kính ốp bếp màu xanh bóng sáng. 2 phụ kiện này đều có khả năng chịu lực, nhiệt cực tốt. Bề mặt phẳng cực dễ vệ sinh lau chùi.

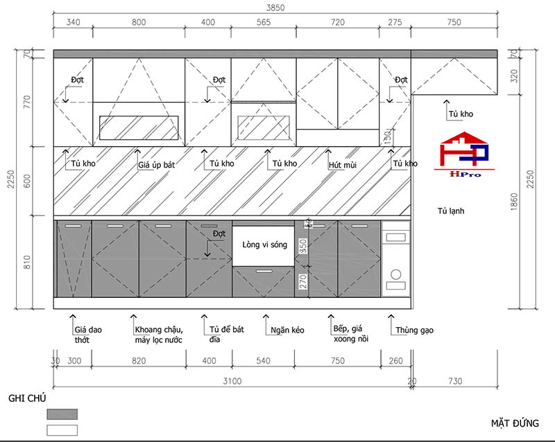
Ảnh thiết kế 2D mặt đứng tủ bếp melamine TBM02 nhà anh Thành ở Hoài Đức
Tủ lạnh được tích hợp trong bộ tủ bếp và bố trí cách bếp nấu 1 khoảng 60cm vừa hợp phong thủy lại vô cùng tiện lợi. Tủ bếp dưới được bố trí những phụ kiện, thiết bị bếp tiện nghi: giá dao thớt, chậu- vòi rửa, lò vi sóng, giá xoong nồi 2 tầng, thùng gạo thông minh và một số khoang tủ để lưu trữ, bảo quản đồ dùng nhà bếp giúp không gian bếp thêm gọn gàng.
Tủ bếp trên được bố trí hút mùi âm tủ có công suất lớn, giá bát 2 tầng cố định, các khoang tủ lưu trữ đồ dùng, thực phẩm khô trong nhà bếp,… giúp người nội trợ thực hiện công việc nấu nướng một cách thuận tiện nhất.

Bản vẽ kỹ thuật 2D mặt bằng tủ bếp melamine TBM02 nhà anh Thành ở Hoài Đức
>>> Bạn có thể tham khảo thêm 99 mẫu tủ bếp melamine đẹp nhất năm nay để chọn cho gian bếp nhà mình mẫu thiết kế phù hợp nhất.
Tủ bếp melamine với code bên trong MDF lõi xanh chống ẩm dày 18mm tại Hpro có đơn giá là dao động từ 3.500.000 đến 3.800.000đ/m dài cả phần gỗ tủ bếp trên + dưới cao tiêu chuẩn 225cm.

Bảng báo giá tủ bếp melamine tại Nội thất Hpro
Giá báo trên dành cho tủ bếp có kích thước tiêu chuẩn như sau:
+ Tổng chiều cao tủ bếp là 225cm tính từ mặt đất đến nóc phào trang trí.
+ Tủ bếp trên cao 80cm, sâu 35cm cả mặt cánh tủ.
+ Tủ bếp dưới cao 81cm – 86cm, sâu 55cm cả mặt đá.
Lưu ý: Giá này chưa bao gồm các thiết bị - phụ kiện bếp cơ bản trong hệ tủ bếp như: bản lề, ray ngăn kéo, tay nắm,...
Đến với Nội Thất Hpro, anh Thành nhận được những dịch vụ chăm sóc tốt nhất từ đội ngũ tư vấn viên có nhiều kinh nghiệm tư vấn chi tiết và chính xác nhất. Được trực tiếp tham khảo và nhận thiết kế 3D ngay tại cửa hàng. Đồng thời nhận báo giá sơ bộ hoàn toàn miễn phí. Hpro luôn có những ưu đãi khủng cho tất cả khách hàng khi làm tủ bếp không phân biệt nội hay ngoại thành Hà Nội như:
Xưởng sản xuất: Đội 5 Hát Môn, Phúc Thọ, Hà Nội.
Liên hệ đến Hotline: 090.2222.945 (Mr.Hoàn) - 0917.346.883 (Mr.Nam) - 024.3236.3456 (số mày bàn cố định).
Bài viết xem thêm:
Bản vẽ 3D tủ bếp melamine TBM03 và nội thất hiện đại nhà anh Bình - Nguyễn Cảnh Di.
HỎI & ĐÁP
Liên hệ để được tư vấn