




4+
Mã hàng: TBAC195
Số lượng:
Mô tả sản phẩm
Tủ bếp acrylic đẹp TBAC195 nhà anh Ngọc - Hải Phòng với thiết kế phong cách Châu Âu có hệ bàn đảo ở giữa bếp. Bề mặt cánh chọn màu trắng điểm đen ấn tượng, hiện đại mang đến vẻ đẹp khang trang, sang trọng cho không gian.
Bếp là không gian không thể thiếu trong mội gia đình, một căn bếp đẹp sẽ giúp bạn có động lực và thêm niềm vui để nấu nướng. Vì vậy mẫu tủ bếp acrylic đẹp TBAC195 nhà anh Ngọc - Hải Phòng được thiết kế theo phong cách Châu Âu hiện đại chữ L kết hợp bàn đảo nhỏ xinh đa năng chắc chắn sẽ khiến bạn hài lòng. Màu sắc đen trắng xen kẽ hiện đại giúp cho căn phòng trở nên khang trang, đẹp và sang hơn. Bố trí lắp đặt công năng hoàn hảo mang đến sự tiện nghi cao.
Tủ bếp nhà anh Ngọc được làm bằng gỗ acrylic bóng gương An Cường. Gỗ với cấu tạo code là MDF lõi xanh chống ẩm dày 18mm, bề mặt cánh phủ 1 lớp gỗ nhựa acrylic hiện đại, có khả năng chịu lực, nhiệt, chống ẩm mốc cực tốt. Bề mặt cánh phẳng mịn trơn dễ vệ sinh, lau chùi. Độ bóng sáng như gương giúp cho căn bếp thêm thoáng đãng, rộng rãi hơn.

Ảnh thiết kế 3D mẫu tủ bếp acrylic đẹp TBAC195 nhà anh Ngọc - Hải Phòng - view 1
Tủ bếp acrylic đẹp TBAC195 nhà anh Ngọc được thiết kế theo dáng chữ L kết hợp bàn đảo, quầy bar tiện lợi theo phong cách Châu Âu. Với khu vực hệ bàn đảo được lắp đặt bộ đôi thiết bị bếp từ - máy hút mùi. Điều này vừa giúp bếp không bị phạm phong thủy vừa đảm bảo không gian đứng nấu thoải mái cho người nội trợ. Chiếc hút mùi thả trần từ trên xuống cực ấn tượng, độc lạ đảm bảo thổi bay mùi thức ăn, dầu mỡ ám trong phòng.
Phía hệ bàn đảo có thiết kế 1 bệ cao hơn nhằm chắn gió cũng như mang đến tính thẩm mỹ cao cho người nhìn khi bước vào gian bếp.

Ảnh 3D tủ bếp acrylic đẹp TBAC195 nhà anh Ngọc - view 2
Hệ tủ với sự đan xen kết hợp 2 tone màu đối lập đen - trắng sáng giúp cho hệ tủ bếp trở nên hiện đại, khác biệt và đẹp bền lâu theo thời gian KHÔNG lo lỗi mốt. Anh Ngọc có yêu cầu thiết kế thêm khoang tủ kịch trần với chiều cao vượt tủ tiêu chuẩn nhằm có thêm không gian lưu trữ đồ cũng như giúp gia đình hạn chế việc vệ sinh, lau chùi bụi bám bẩn trên nóc đỉnh tủ.
Tủ với kiểu dáng chữ L cạnh ô cửa sổ đón ánh sáng tự nhiên và không khí trong lành vào phòng. Khu vực dưới cửa sổ được bố trí bộ chậu vòi rửa bát - nơi thường xuyên tiếp xúc với nước và có nguy cơ ẩm mốc cao.

Bản vẽ 3D mẫu tủ bếp acrylic đẹp TBAC195 nhà anh Ngọc - view 3
Các công năng thì được bố trí phân chia khoa học, hợp lý hỗ trợ người nội trợ vào bếp. Gia đình anh Ngọc sử dụng đầy đủ thiết bị - phụ kiện bếp sang trọng, hiện đại thông minh như: thùng gạp thông minh, tủ kho, lò vi sóng, lò nướng, giá úp bát, giá để xoong nồi, giá dao thớt đa năng, máy rửa bát...
Toàn bộ bề mặt bàn đảo và bếp được ốp đá marble màu trắng vân mây đẹp sang, kính dán màu nude nhẹ nhàng trẻ trung, thoáng đãng đem lại không gian bếp sang trọng, ấm cúng.

Ảnh 2D mặt đứng A tủ bếp acrylic đẹp TBAC195 nhà anh Ngọc ở Hải Phòng

Ảnh thiết kế 2D mặt đứng B tủ bếp acrylic đẹp TBAC195 nhà anh Ngọc ở Hải Phòng

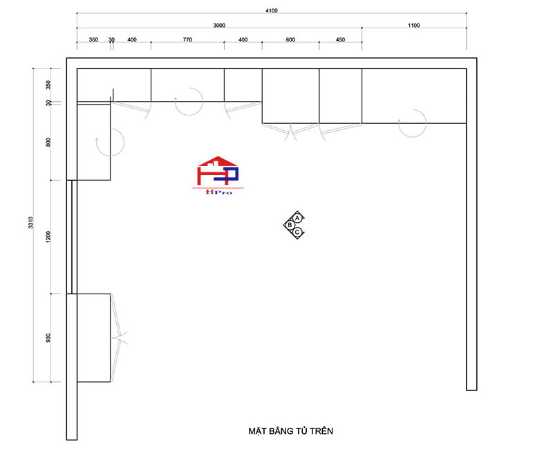
Ảnh chi tiết 2D mặt bằng tủ bếp trên của nhà anh Ngọc ở Hải Phòng

Bản vẽ 2D mặt bằng tủ kịch trần của nhà anh Ngọc ở Hải Phòng

Bản vẽ kỹ thuật mặt bằng tủ bếp dưới của nhà anh Ngọc

Bản vẽ chi tiết hệ bàn đảo tiện dụng của nhà anh Ngọc ở Hải Phòng
>> > Xem thêm nhiều mẫu tủ bếp acrylic đẹp thiết kế hiện đại, tiện nghi khác của Hpro tại link trên.

Tủ bếp nhà anh Ngọc với thiết kế chữ L kết hợp kệ bàn đảo tiện lợi

Ảnh thực tế bộ tủ bếp acrylic đẹp TBAC195 nhà anh Ngọc sau khi được Hpro hoàn thiện

Hình ảnh thực tế hệ cạnh dưới cửa sổ của nhà anh Ngọc cực thoáng đãng, không ẩm mốc

Hình ảnh thực tế hệ cạnh để đồ của nhà anh Ngọc ở Hải Phòng

Hệ bàn đảo được tận dụng làm khu vực bố trí bếp nấu chính của gia đình anh Ngọc

Với hệ thống máy hút mùi hiện đại, công suất này thì gia đình anh Ngọc hoàn toàn yên tâm không lo bị ám mùi

Mặt đá bàn bếp ốp bàn đảo và bàn bếp của nhà anh Ngọc là đá marble vân mây đẹp, sang

Phần bên trong của hệ bào đảo theo phong cách Châu Âu của nhà anh Ngọc

Toàn cảnh không gian phòng bếp hiện đại, tiện nghi và khác biệt của nhà anh Ngọc ở Hải Phòng

Bảng báo giá tủ bếp acrylic đẹp TBAC195 nhà anh Ngọc - view 1

Hpro báo giá tủ bếp acrylic đẹp TBAC195 nhà anh Ngọc - Hải Phòng - view 2

Bảng giá chi tiết tủ bếp acrylic đẹp TBAC195 nhà anh Ngọc - view 3
Trên đây là bảng giá chi tiết từng hạng mục trong bộ tủ bếp acrylic đẹp TBAC195 của nhà anh Ngọc ở Hải Phòng. Và giá này áp dụng tại thời điểm Hpro có chương trình khuyến mại nên gia đình được TẶNG 1 BỘ TỦ KHO 6 TẦNG 12 RỔ. Giá trên chỉ mang tính chất tham khảo, thực tế sẽ có thay đổi tùy vào từng thời điểm quý khách hàng có nhu cầu cũng như kích thước không làm tủ bếp.
Do vậy, để nhận tư vấn báo giá chuẩn xác nhất quý khách hàng vui lòng liên hệ với chúng tôi qua Hotline: 090.2222.945 - 0917.346.883 - 024.3236.3456 hoặc ib qua Fanpage: https://www.facebook.com/NoiThatHpro
Khi đóng tủ bếp acrylic tại Nội Thất Hpro, anh Ngọc nhận được một số ưu đãi chính sách hoàn hảo như:
Trên đây là toàn bộ hình ảnh và thông tin về mẫu tủ bếp acrylic đẹp TBA195 nhà anh Ngọc. Nếu bạn cũng đang muốn sở hữu những mẫu tủ bếp đẹp hiện đại này thì chờ gì không liên hệ ngay với Nội Thất Hpro.
Hệ thống showroom của Nội Thất Hpro:
Cơ sở 1: Số 17, ngõ 40 Trung Kính, Cầu Giấy, Hà Nội
Cơ sở 2: 509 Nguyễn Văn Cừ, Long Biên, Hà Nội
Cơ sở 3: 123 Đường 25/4 thành phố Hạ Long, Quảng Ninh
Cơ sở 4: 1328 Hùng Vương, Việt Trì, Phú Thọ
>>> Tham khảo thêm bài viết: Tủ bếp acrylic TBAC196 và nội thất phòng khách nhà chị Thảo - Lạng Sơn
HỎI & ĐÁP
Liên hệ để được tư vấn