




4+
Mã hàng: TBAC202
Số lượng:
Mô tả sản phẩm
Tủ bếp acrylic đẹp TBAC202 nhà chị Ngoan - Thụy Phương với thùng tủ dưới 100% inox 304 cao cấp chống mối mọt, ẩm mốc, chịu lực, nhiệt tốt. Đảm bảo độ bền sử dụng vượt thời gian.
Với sự tư vấn của các KTS chuyên nghiệp Hpro gia đình chị Ngoan đã lựa chọn tủ bếp acrylic đẹp TBAC202 thùng inox 304 cao cấp, bền đẹp. Đây là sản phẩm kết hợp giữa 2 loại vật liệu mới có tính ứng dụng và ưu việt nhất hiện nay là inox 304 và acrylic bóng gương An Cường. Sản phẩm với khả năng chống mối mọt, ẩm, chịu lực, nhiệt chống cháy cực tốt. Độ bền vượt thời gian. Chi tiết cùng tham khảo bài viết dưới đây nhé!
Mặt cánh tủ bếp nhà chị Ngoan là gỗ công nghiệp Acrylic code MDF lõi xanh chống ẩm. Acrylic - loại vật liệu xanh được sản xuất trên dây chuyền công nghệ hiện đại, đảm bảo độ cứng chắc, chịu lực, nhiệt, chống cháy tốt. Bề mặt cánh bằng phẳng trơn bóng hiện đại giúp hạn chế bụi bám bẩn cũng như tạo hiệu ứng phản chiếu đồ đối diện giúp cho không gian trở nên thoáng, rộng và ăn gian diện tích. Dễ vệ sinh lau chùi. Đây cũng là ưu điểm nổi bật của acrylic, đặc điểm để nhận biết acrylic với các loại gỗ công nghiệp khác.
Không chỉ vậy, acrylic còn sở hữu đến hơn 50 mã màu từ trơn đơn sắc đến vân gỗ sang trọng. Quý khách hàng thoải mái lựa chọn màu sắc tủ phù hợp với đồ nội thất trong nhà cũng như phong thủy của gia chủ.

Ảnh thiết kế 3D tủ bếp acrylic đẹp TBAC202 nhà chị Ngoan ở Thụy Phương
Phần khung thùng tủ bếp trên là gỗ melamine với khả năng chống trầy xước tốt đảm bảo độ bền cho tủ. Hậu tủ là hỗn hợp kim nhôm nhựa dẻo Aluminium dày 2,8 - 3mm, ưu điểm chống thấm nước tuyệt đối. Giúp bảo vệ phần tủ kê sát tường không bị ẩm mốc, bền đẹp theo thời gian.
Còn toàn bộ phần khung và hậu tủ bếp dưới của nhà chị Ngoan, nhằm đảm bảo về vấn đề mối mọt, han gỉ, oxy hóa của tủ theo thời gian sử dụng thì Hpro có tư vấn cho gia đình sử dụng 100% inox 304 cao cấp. Vật liệu này còn sở hữu 1 bề mặt phẳng lau chùi vệ sinh dễ dàng.
Tủ bếp acrylic đẹp TBAC202 nhà chị Ngoan được thiết kế theo dáng chữ L kích thước chuẩn. Kiểu dáng với 2 cạnh mở ra tạo thành 1 góc vuông giúp tận dụng tối đa góc cạnh chết của căn phòng. Kiểu thiết kế phổ biến sử dụng được cả ở phòng diện tích nhỏ lẫn rộng lớn. Phân chia công năng 1 cách khoa học, hợp phong thủy.

Tủ bếp acrylic đẹp TBAC202 nhà chị Ngoan với kiểu dáng hiện đại, màu sắc tươi sáng
Hệ tủ sử dụng gam màu trắng, vân gỗ sáng kết hợp bề mặt bóng gương của Acrylic góp phần giúp cho căn phòng bếp trở nên đẹp, hiện đại, rộng thoáng đãng hơn. Tone màu này cũng tạo nên sự đồng bộ cho tổng thể căn bếp. Điểm nhấn là phần mặt đá bàn bếp tủ dưới granite màu đen kim sa trung sang trọng, có độ cứng chắc chắn, chịu lực, nhiệt, trầy xước. Phần khoảng trống giữa tủ trên và dưới thì chị Ngoan lựa chọn kính cường lực Temper màu trắng sáng cực sang, thoáng. Và đặc biệt dễ dàng vệ sinh lau chùi, giúp tủ luôn mới.
Tủ được chia thành 2 công năng riêng biệt. 1 cạnh là khu vực chuẩn bị nguyên liệu cũng như dọn dẹp sau mỗi bữa ăn, khu vực này được bố trí lắp đặt bộ chậu - vòi rửa bát inox cùng giá úp bát phía trên, tủ dưới là không gian để máy lọc nước. Còn cạnh chữ L dài còn lại là khu vực lưu trữ cũng như nấu chính. Ở đây được bố trí đầy đủ thiết bị, phụ kiện nhà bếp như: bếp nấu, lò vi sóng, lò nướng, máy hút mùi (giúp mang lại không gian trong lành cho bếp), thùng gạo thông minh, giá để xoong nồi, dao thớt, gia vị....

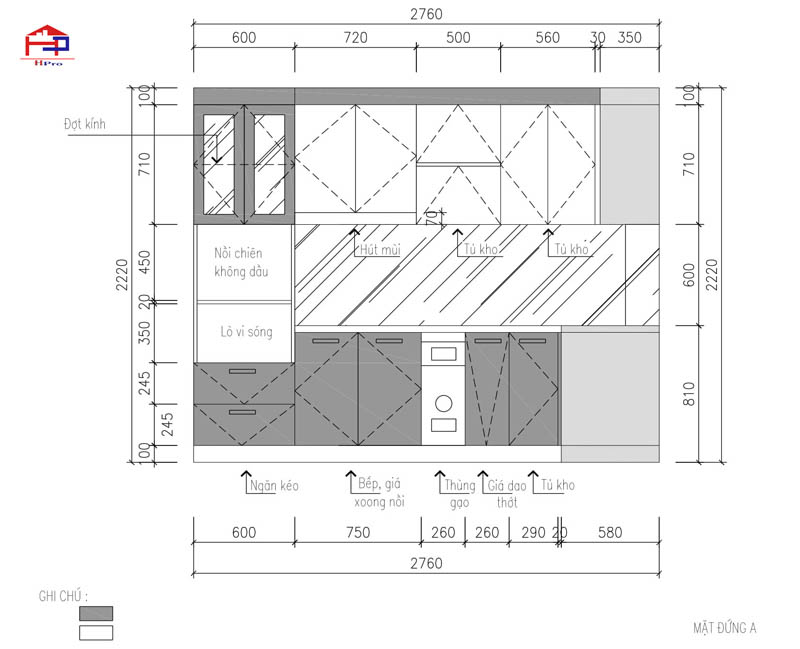
Ảnh thiết kế 2D mặt đứng A tủ bếp acrylic đẹp TBAC202 nhà chị Ngoan - Thụy Phương

Ảnh 2D mặt đứng B tủ bếp acrylic đẹp TBAC202 nhà chị Ngoan

Bản vẽ kỹ thuật 2D mặt bằng tủ bếp trên của nhà chị Ngoan ở Thụy Phương

Ảnh chi tiết kích thước các khoang tủ bếp dưới của nhà chị Ngoan - Thụy Phương

Hình ảnh thực tế tủ bếp acrylic TBAC202 thùng inox nhà chị Ngoan sau khi được hoàn thiện

Bề mặt cánh tủ bếp acrylic đẹp TBAC202 nhà chị Ngoan được dán 1 lớp nilong bảo vệ nhằm giúp trong quá trình
vận chuyển, thi công cánh không bị trầy xước

Tủ bếp acrylic đẹp TBAC202 nhà chị Ngoan được lắp đặt đầy đủ phụ kiện tủ bếp

Tủ bếp nhà chị Ngoan với toàn bộ khung thùng tủ dưới 100% inox 304 cao cấp với khả năng chống mối mọt, han gỉ tốt.

Tủ bếp nhà chị Ngoan được làm bằng chất liệu gỗ công nghiệp acrylic có độ bền cao

Bảng giá chi tiết tủ bếp acrylic đẹp TBAC202 nhà chị Ngoan - Thụy Phương - view 1

Hpro báo giá tủ bếp acrylic đẹp TBAC202 nhà chị Ngoan - view 2
Lưu ý: Bảng giá trên Hpro là tính đối với kích thước không gian phòng bếp nhà chị Ngoan - Thụy Phương cùng với giá các thiết bị – phụ kiện bếp tại thời điểm đó. Do vậy, quý khách hàng chỉ nên tham khảo bởi giá sẽ có sự thay đổi, biến động theo thời gian, thời điểm mà bạn muốn làm.
Để giúp cho bộ tủ bếp nhà chị Ngoan được tiện nghi hơn trong quá trình sử dụng thì Hpro có tư vấn cho gia đình sử dụng thêm một số phụ kiện tủ bếp hiện đại như: giá úp bát, giá để xoong nồi, giá dao thớt, thùng gạo thông minh, tay nâng blum ...

Giá úp bát nâng hạ Carymax 100% inox 304 chống han gỉ, oxy hóa, bề mặt sáng bóng mang đến giá trị thẩm mỹ cho tủ.

Cận cảnh tay nâng Blum nâng cánh tủ bếp trên

Giá để xoong nồi 2 tầng Carymax inox 304 sáng bóng, chống han gỉ, oxy hóa

Ảnh thực tế phụ kiện giá dao thớt đa năng Carymax inox sợi Hpro trưng bày tại showroom Trung Kính
th
Hình ảnh thực tế phụ kiện thùng gạo thông minh mặt gương bóng sáng tại Hpro

Chậu rửa bát Carymax inox 304 dập liền 2 hố mã EU-7843HM
Điều khiến cho chị Ngoan và nhiều khách hàng khác tin tưởng, hài lòng ở Nội Thất Hpro là:
Địa chỉ showroom của Nội Thất Hpro:
+ Showroom 1: Số 17 Ngõ 40 Trung Kính - Cầu Giầy - Hà Nội
+ Showroom 2: 509 Nguyễn Văn Cừ - Long Biên - Hà Nội
+ Showroom 3: 123 đường 25/4 thành phố Hạ Long - Quảng Ninh
+ Showroom 4: 1328 Hùng Vương - Việt Trì - Phú Thọ.
Số Hotline liên hệ: 090.2222.945 (Mr. Hoàn) để được hỗ trợ nhanh.
HỎI & ĐÁP
Liên hệ để được tư vấn