




4+
Mã hàng: TBAC132
Số lượng:
Mô tả sản phẩm
Tủ bếp acrylic TBAC132 và nội thất gỗ Melamine An Cường nhà cô Hiền - Sông Công, Thái Nguyên do Hpro thiết kế và thi công hoàn thiện. Sử dụng 100% gỗ công nghiệp An Cường cao cấp, thiết kế hiện đại - công năng và tiện ích. Mang đến cho gia đình bạn một không gian sống tiện nghi và thoải mái nhất.
Bạn ở Thái Nguyên và đang có ý định làm nội thất phù hợp với không gian, diện tích ngôi nhà của bạn? Chất liệu gỗ công nghiệp là sự lựa chọn hoàn hảo nhất cho không gian sống hiện đại ngày nay nên được nhiều gia chủ lựa chọn. Cùng Hpro tham khảo công trình tủ bếp acrylic TBAC132 và nội thất gỗ Melamine An Cường nhà cô Hiền - Sông Công, Thái Nguyên đã được chúng tôi thiết kế và thi công hoàn thiện.
- Tủ bếp acrylic TBAC132 nhà cô Hiền sử dụng chất liệu gỗ acrylic “no line” kết hợp laminate An Cường chính hãng 100%. Acrylic và laminate là gỗ công nghiệp có khả năng chịu lực, chịu nhiệt tốt, KHÔNG cong vênh, co ngót, nứt nẻ và kháng mọt cực tốt. Điểm khác biệt của 2 loại vật liệu này là acrylic có bề mặt trơn nhẵn, còn laminate có bề mặt sần.
- Bề mặt sáng bóng như gương của acrylic có khả năng chống trầy xước và làm tăng tính thẩm mỹ cho không gian bếp. Còn bề mặt sần của laminate tạo nên lớp bảo vệ cực tốt, chống trầy xước cao. Đặc biệt, 2 loại vật liệu này cực kì đa dạng về màu sắc, có cả màu trơn lẫn màu vân gỗ để bạn lựa chọn.

Thiết kế 3D phòng khách và tủ bếp acrylic TBAC132 nhà cô Hiền - Sông Công, Thái Nguyên
- Căn hộ chung cư nhà cô Hiền có diện tích khá rộng rãi nên việc bố trí nội thất cũng không quá khó khăn. KTS Hpro đã lên ý tưởng thiết kế bộ tủ bếp thẳng với chiều dài hơn 4m cả tủ lạnh. Với kích thước như vậy là có thể bố trí được đầy đủ các phụ kiện - thiết bị bếp cần thiết nhằm đáp ứng nhu cầu sử dụng của gia đình.

Bản vẽ chi tiết mặt đứng tủ bếp acrylic TBAC132 kết hợp laminate nhà cô Hiền - Sông Công, Thái Nguyên
- Tủ bếp trên và dưới đều không sử dụng tay nắm, thay vào đó là cánh tủ vát chéo góc 45 độ, như vậy vừa tạo sự thuận tiện vừa không gây cảm giác vướng víu cho người sử dụng.
- Hệ tủ bếp trên sử dụng acrylic màu trắng bóng kết hợp tủ bếp dưới laminate mã màu vân gỗ. Đây là sự kết hợp hoàn hảo tạo điểm nhấn cho căn bếp nhà cô Hiền.

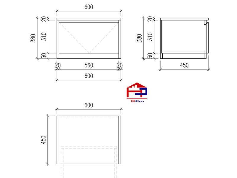
Bản vẽ chi tiết mặt bằng tủ bếp trên acrylic TBAC132 kết hợp laminate nhà cô Hiền - Sông Công, Thái Nguyên

Bản vẽ chi tiết mặt bằng tủ bếp dưới acrylic TBAC132 kết hợp laminate nhà cô Hiền - Sông Công, Thái Nguyên
- Thiết kế thông minh với các đầy đủ các khu vực chức năng để các thành viên trong gia đình có thể cùng nhau nấu nướng và thưởng thức bữa ăn ngon lành, bổ dưỡng, tăng thêm sự gắn bó giữa các thành viên trong gia đình.
- Bên phía tủ lạnh được bố trí tủ kho để rượu và các loại đồ khô. Kế đến là thùng đựng gạo thông minh với khả năng lưu trữ tối đa đến 15kg gạo. Cạnh thùng gạo là chậu rửa bát đĩa 2 hố rộng rãi phục vụ cho quá trình sơ chế thực phẩm và rửa bát đĩa sau khi ăn. Ngay phía trên chậu rửa là phụ kiện giá úp bát di động 2 tầng - thiết kế thông minh dễ dàng nâng lên hạ xuống, phù hợp với gia đình có người già và trẻ nhỏ.
- Tủ kho và giá để dao thớt gia vị được thiết kế gần bếp từ. Phía trên bếp từ là máy hút mùi kính cong có công suất hút mạnh, hút đi những mùi thức ăn khó chịu trong quá trình nấu nướng. Dưới bếp từ là giá úp xoong nồi 2 tầng tiện lợi.
>>> Nếu đây chưa phải mẫu tủ bếp phù hợp với gian bếp nhà bạn thì hãy tham khảo ngay +99 mẫu tủ bếp acrylic, thiết kế hiện đại của Hpro.
- Kệ tivi thiết kế đẹp mắt với vách cột trang trí và tấm nhựa giả đá tuyệt đẹp. Cùng hệ ngăn kéo kết hợp hộc âm tủ để đồ tiện dụng.

Bản vẽ chi tiết kệ ti vi phòng khách gỗ Melamine An Cường nhà cô Hiền - Sông Công, Thái Nguyên
- Kệ ti vi không chỉ là đồ nội thất mà nó còn là nơi gia đình trưng bày những đồ kỷ niệm tranh, ảnh tạo sự khác biệt và điểm nhấn cho không gian phòng khách của gia đình.
- Nội thất phòng ngủ Master nhà cô Hiền được làm bằng gỗ Melamine An Cường - gỗ công nghiệp có khả năng chống trầy xước cực tốt. Gam màu trắng tinh tế kết hợp với màu vân gỗ giúp cho không gian căn phòng trở lên hiện đại, ấm cúng hơn.

Thiết kế 3D phòng ngủ Master nhà cô Hiền - Sông Công, Thái Nguyên - view 1

Thiết kế 3D phòng ngủ Master nhà cô Hiền - Sông Công, Thái Nguyên - view 2
- Tủ áo được thiết kế với 2 ngăn to và những ngăn nhỏ phía trên để bảo quản chăn gối,... hoặc quần áo trái mùa một cách gọn gàng và ngăn nắp nhất. Ngoài ra, tủ áo còn được thiết kế thêm hộc âm để cô Hiền trưng bày túi hay trang trí thêm bình hoa,... tạo nên không gian mang đậm cá tính của chủ nhà.

Thiết kế 3D phòng ngủ Master nhà cô Hiền - Sông Công, Thái Nguyên - view 3
- Căn phòng được thiết kế đơn giản nhưng đầy đủ tiện ích với giường, tab đầu giường, kệ trang trí, bàn phấn và tủ quần áo.

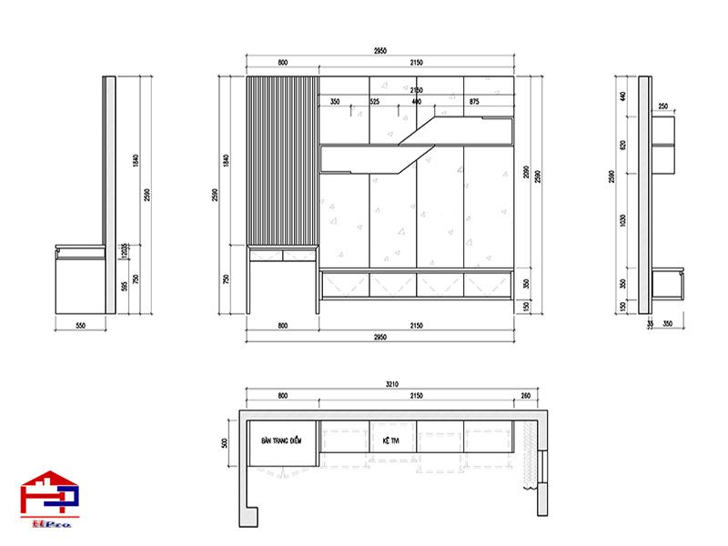
Chi tiết 2D vách trang trí đầu giường phòng ngủ Master nhà cô Hiền - Sông Công, Thái Nguyên
- Nội thất phòng ngủ con trai được thiết kế với điểm nhấn là tông màu xanh sơn tường mát mẻ, ấn tượng. Chất liệu gỗ công nghiệp Melamine An Cường bề mặt sần chống trầy.
- Với diện tích không quá rộng, cũng không hẹp nhưng với sự khéo léo, thông minh của mình. Đội KTS Hpro đã bố trí đầy đủ đồ nội thất cần thiết cho phòng ngủ gồm: tủ áo, giường, bàn học và kệ trang trí.

Thiết kế 3D phòng ngủ con trai nhà cô Hiền - Sông Công, Thái Nguyên - view 1

Thiết kế 3D phòng ngủ con trai nhà cô Hiền - Sông Công, Thái Nguyên - view 2

Thiết kế 3D phòng ngủ con trai nhà cô Hiền - Sông Công, Thái Nguyên - view 3
- Tủ quần áo cánh mở kết hợp tay nắm âm tủ mang đến không gian sống hiện đại, tiện nghi cho người sử dụng. Kệ ti vi kết hợp với 1 phần hệ tủ quần áo, KTS Hpro đã lên ý tưởng tạo thành những hộc âm tủ để đồ trang trí vô cùng tiện dụng.

Chi tiết 2D giường ngủ phòng con trai nhà cô Hiền - Sông Công, Thái Nguyên

Chi tiết 2D tab đầu giường phòng ngủ phòng con trai nhà cô Hiền - Sông Công, Thái Nguyên

Chi tiết 2D tủ quần áo phòng ngủ con trai nhà cô Hiền - Sông Công, Thái Nguyên
- Nội thất phòng ngủ con gái thiết kế đơn giản nhưng vẫn đầy đủ đồ nội thất cần thiết: từ giường ngủ, bàn phấn, tap đầu giường cho đến tủ quần áo,...
Thiết kế 3D phòng ngủ con gái nhà cô Hiền - Sông Công, Thái Nguyên - view 1

Thiết kế 3D phòng ngủ con gái nhà cô Hiền - Sông Công, Thái Nguyên - view 2

Thiết kế 3D phòng ngủ con gái nhà cô Hiền - Sông Công, Thái Nguyên - view 3

Chi tiết 2D giường ngủ phòng con gái nhà cô Hiền - Sông Công, Thái Nguyên

Chi tiết 2D tab đầu giường phòng ngủ phòng con gái nhà cô Hiền - Sông Công, Thái Nguyên

Chi tiết 2D tủ quần áo phòng con gái nhà cô Hiền - Sông Công, Thái Nguyên

Chi tiết 2D kệ ti vi phòng ngủ con gái nhà cô Hiền - Sông Công, Thái Nguyên
Sau 30 ngày kể từ khi ký hợp đồng và thi công sản xuất, Hpro tiến hành lắp đặt hoàn thiện nội thất nhà cô Hiền ở Sông Công, Thái Nguyên. Dưới đây là hình ảnh thực tế nội thất của gia đình sau khi được Hpro hoàn thiện, mời bạn tham khảo:
Cận cảnh bộ tủ bếp acrylic kết hợp laminate và nội thất gỗ An Cường nhà cô Hiền sau khi Hpro thi công hoàn thiện và bàn giao cho gia đình

Ảnh thực tế kệ ti vi phòng khách gỗ Melamine An Cường nhà cô Hiền sau khi Hpro lắp đặt hoàn thiện

Tủ bếp acrylic TBAC132 kết hợp laminate nhà cô Hiền - Sông Công, Thái Nguyên sau khi Hpro hoàn thiện lắp đặt

Bộ tủ bếp acrylic kết hợp laminate TBAC132 nhà cô Hiền được lắp đặt phụ kiện bếp nhập khẩu cao cấp như giá bát nâng hạ thông minh, tay nâng blum, thùng gạo thông minh,...

Cô Hiền và gia đình vô cùng ưng ý với sản phẩm tủ bếp acrylic kết hợp laminate sau khi Hpro bàn giao

Giường ngủ phòng Master nhà cô Hiền - Sông Công, Thái Nguyên thiết kế đơn giản nhưng vô cùng chắc chắn với phần thang giường bằng kẽm chịu lực

Vách trang trí đầu giường ngủ chính là điểm nhấn cho phòng ngủ Master nhà cô Hiền

Tủ quần áo phòng ngủ Master nhà cô Hiền được thiết kế nhỏ gọn, vừa vặn với nhu cầu sử dụng của vợ chồng cô

Kệ ti vi phòng ngủ Master kết hợp bàn phấn vừa tiết kiệm diện tích lại vừa đem lại tính thẩm mỹ tối đa cho căn phòng

Tổng thể không gian phòng ngủ con gái nhà cô Hiền với đầy đủ đồ nội thất

Ảnh thực tế giường ngủ và tap đầu giường phòng con gái nhà cô Hiền - Sông Công, Thái Nguyên

Ảnh thực tế giường ngủ và bàn phấn phòng con trai nhà cô Hiền

Báo giá tủ bếp acrylic TBAC132 nhà cô Hiền - Sông Công, Thái Nguyên kèm phụ kiện - 1

Báo giá tủ bếp acrylic TBAC132 nhà cô Hiền - Sông Công, Thái Nguyên kèm phụ kiện - 2

Báo giá kệ ti vi phòng khách nhà cô Hiền - Sông Công, Thái Nguyên kèm phụ kiện - 2

Báo giá nội thất phòng ngủ master nhà cô Hiền - Sông Công, Thái Nguyên

Báo giá nội thất phòng ngủ con trai nhà cô Hiền - Sông Công, Thái Nguyên

Báo giá nội thất phòng ngủ con gái nhà cô Hiền - Sông Công, Thái Nguyên
+ Showroom 1: Số 17 Ngõ 40 Trung Kính, Cầu Giấy, Hà Nội
+ Showroom 2: Số 509 Nguyễn Văn Cừ, Long Biên, Hà Nội
+ Showroom 3: 123 đường 25/4 thành phố Hạ Long, Quảng Ninh
+ Showroom 4: 1328 Hùng Vương, Việt Trì, Phú Thọ.
Bạn chỉ cần liên hệ đến Hotline: 090.2222.945 (Mr.Hoàn) - 0917.346.883 (Mr.Nam) - 024.3236.3456 (số mày bàn cố định) để đặt lịch đo đạc, khảo sát nhanh chóng nhất.
>>> Xem thêm: Tủ bếp acrylic TBAC133 khung thùng inox nhà chị Hoa - Phù Ninh
HỎI & ĐÁP
Liên hệ để được tư vấn