




4+
Mã hàng: TBAC166
Số lượng:
Mô tả sản phẩm
Tủ bếp acrylic TBAC166 với toàn bộ khung thùng tủ bếp dưới inox 304 cao cấp chống han gỉ, mối mọt, ẩm mốc. Đảm bảo độ bền trường tồn theo thời gian. Bề mặt bên ngoài thì sử dụng acrylic bóng gương màu sắc nhẹ nhàng, trang nhã vô cùng hiện đại, đẹp sang.
"Nhà hỏng bếp chưa hỏng" - Đó là câu nói mà anh Cường trả lời khi nhân viên Hpro đến thăm gia đình sau khi bộ tủ bếp của gia đình được hoàn thiện, đi vào sử dụng. Vì đâu mà anh Cường lại nói vậy? Hãy cùng Hpro tìm câu trả lời trong bài viết tủ bếp acrylic TBAC166 thùng inox 304 cao cấp siêu bền dưới đây nhé!
Video chi tiết bộ tủ bếp acrylic TBAC167 nhà anh Cường - KĐT Việt Hưng, Long Biên
Bộ tủ bếp nhà anh Cường được làm bằng gỗ acrylic với khung thùng tủ bếp dưới 100% inox 304 cao cấp có khả năng chống ẩm, mối mọt, han gỉ và oxy hóa cực tốt. Bên ngoài mặt cánh là acrylic với độ bóng sáng như gương hiện đại vẫn đảm bảo được tính thẩm mỹ cho bộ tủ.

Tủ bếp với sự kết hợp hoàn hảo 2 tone màu trắng - ghi nhã nhặn, tinh tế mang đến sự thanh lịch, hiện đại cho
căn bếp của gia đình.
Bộ tủ được thiết kế theo dáng chữ L kết hợp bàn đảo đa năng với vai trò làm vách ngăn phân cách phòng bếp với các không gian khác. Kiểu dáng chữ L này giúp tận dụng tối đa góc chết và bố trí các thiết bị thành 1 hình tam giác phong thủy mang đến nhiều may mắn, tài lộc và sự thuận tiện cho người nội trợ nấu nướng.
Sự thông minh trong cách phối màu trắng - ghi xám của anh Cường đã giúp cho căn bếp của gia đình trở nên sang, đẹp và thanh lịch, nhã nhặn hơn. Tone màu đang nhận được rất nhiều sự yêu mến của các chị em nội trợ hiện nay.

Tủ bếp thiết kế dáng chữ L cạnh ô cửa sổ thoáng đãng, không khí trong lành
Ngoài đóng phần gỗ tủ bếp tại Hpro thì anh Cường còn sử dụng thêm 1 số thiết bị - phụ kiện bếp hiện đại, thông minh như: bếp từ, chậu - vòi rửa bát, lò vi sóng, giá úp bát, giá để xoong nồi, giá dao thớt, tay nắm,... Chi tiết về vị trí lắp đặt bạn có thể xem trong bản 2D dưới đây:

Ảnh thiết kế 3D không gian phòng bếp nhà anh Cương với hệ quầy bar vô cùng tiện lợi

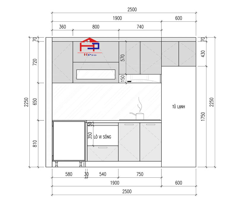
Ảnh thiết kế 2D mặt đứng A tủ bếp acrylic TBAC166 nhà anh Cường - Long Biên

Bản vẽ chi tiết 2D mặt đứng B tủ bếp acrylic TBAC166 thùng inox 304 siêu bền nhà anh Cường

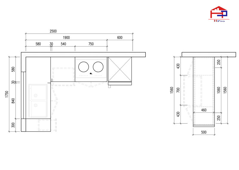
Ảnh 2D mặt bằng tủ bếp trên nhà anh Cường

Ảnh vẽ chi tiết kích thước các khoang tủ bếp dưới và bên trong bàn đảo của nhà anh Cường - KĐT Việt Hưng

Ảnh thiết kế 2D quầy bar, bàn đảo siêu nhỏ tiện lợi nhà anh Cường - Long Biên
>>> Tiết lộ mẫu tủ bếp acrylic đẹp chiều lòng các chị em nội trợ khó tính.
Bộ tủ bếp acrylic TBAC166 thùng inox 304 nhà anh Cường được Hpro hoàn thiện sau khoảng 20 ngày kể từ khi ký kết hợp đồng thi công. Dưới đây là ảnh thực tế Hpro có ghi lại sau khi hoàn thiện để giúp khách hàng có cái nhìn khách quan nhất.

Hình ảnh thực tế bộ tủ bếp acrylic TBAC166 thùng inox 304 siêu bền nhà anh Cương ở Long Biên

Anh Cường lắp thêm bàn đảo nhằm phân cách phòng bếp với không gian sinh hoạt khác.

Hình ảnh bộ tủ bếp acrylic TBAC166 nhà anh Cường khi nhìn từ hướng bàn đảo vào

Hình ảnh thực tế bề mặt cánh tủ bếp trên với màu trắng tươi sáng

Tủ bếp dưới là nơi gia đình anh Cường sử dụng làm hoạt động nấu chính, hay rửa, dẹp dọn rất dễ bị bẩn bám vào. Chính vì vậy,
Hpro tư vấn anh sử dụng tone màu ghi xám nhằm hạn chế lộ những vết dầu mỡ bắn hay bụi bám trên bề mặt cánh.

Hình ảnh thực tế mặt bên ngoài của bàn đảo nhà anh Cường ở Long Biên

Ưu điểm lớn nhất của tủ bếp acrylic là bề mặt phẳng bóng gương vô cùng hiện đại, sang
Để nhằm đảm bảo cho độ bền vượt thời gian của hệ tủ bếp nhà mình, anh Cường đã lựa chọn lắp khung thùng tủ bếp dưới là 100% inox 304 cao cấp chống mối mọt, ẩm mốc cực tốt. Bề mặt cánh tủ bếp ngoài là gỗ acrylic bóng gương An Cường vô cùng hiện đại, đẹp mắt. Bên cạnh đó để tiết kiệm chi phí cho phần hạng mục nội thất này thì gia đình anh có sử dụng toàn bộ phụ kiện tủ bếp do Hpro sản xuất.
Dưới đây là bảng giá tủ bếp acrylic TBAC166 thùng inox 304 nhà anh Cường, mời bạn tham khảo:

Bảng báo giá tủ bếp acrylic TBAC166 thùng inox 304 cao cấp nhà anh Cường - KĐT Việt Hưng, Long Biên
Khi đóng tủ bếp acrylic tại Hpro anh Cường còn nhận được một số chính sách ưu đãi như:
>>> Xem thêm bài viết: Mẫu tủ bếp acrylic TBAC167 nhà chị Lý - Hoàng Đạo Thúy màu trắng tinh tế, hiện đại.
HỎI & ĐÁP
Liên hệ để được tư vấn