




4+
Mã hàng: TBAC176
Số lượng:
Mô tả sản phẩm
Tủ bếp acrylic TBAC176 kết hợp laminate nhà anh Chính được thiết kế theo phong cách hiện đại từ 100% gỗ công nghiệp An Cường. Màu sắc sang trọng tạo nét đẹp thanh lịch, khang trang cho căn hộ của nhà anh Chính.
Hoàn thiện thi công nội thất tủ bếp đẹp - đúng bản vẽ - đảm bảo chất lượng như cam kết, chính là phương châm cốt lõi mà Nội Thất Hpro thực hiện. Chính điều này đã khiến cho anh Chính ở Đội Cấn đã đến và đặt niềm tin vào chúng tôi. Dưới đây là toàn bộ hình ảnh từ thiết kế đến thực tế sau khi hoàn thiện bộ tủ bếp acrylic TBAC176 kết hợp laminate của nhà anh Chính - Đội Cấn, mời bạn tham khảo:
Anh Chính rất hài lòng về tủ bếp acrylic TBAC176 kết hợp laminate do Hpro đem đến cho gia đình

Ảnh thiết kế 3D bộ tủ bếp acrylic TBAC176 kết hợp laminate nhà anh Chính - view 1
Tủ bếp acrylic TBAC176 kết hợp laminate nhà anh Chính được thiết kế theo dáng chữ L màu trắng - ghi (xám) vô cùng hiện đại và sang trọng cho không gian phòng bếp ăn nhà phố thêm hoàn hảo. Với kiểu dáng chữ L kịch trần này giúp cho gia đình anh Chính tận dụng tối đa góc cạnh chết. Hình chữ L này có ưu điểm là bạn vừa có một không gian riêng để nấu nhưng chính không gian đó có thể mở ra, kết nối với một không gian khác trong nhà.

Ảnh thiết kế 3D bộ tủ bếp acrylic TBAC176 kết hợp laminate nhà anh Chính - view 2
Phần tủ lạnh có thiết kế thêm khoang tủ trên nóc nhằm đem đến sự đồng bộ, hài hòa cho không gian bếp của gia đình. Đồng thời, anh Chính cũng có thêm diện tích để lưu trữ cất đồ ít sử dụng trên đó.
Nhìn vào bản vẽ 3D trên cũng thấy được rằng mặt cánh tủ nhà anh Chính có sự khác biệt so với các kiểu tủ bếp khác. Vô cùng hiện đại, tiện nghi với kiểu cánh vát chéo góc 45 độ giấu đi những tay nắm cồng kềnh trên mỗi khoang cánh tủ. Bên trong mỗi khoang cánh tủ bếp nhà anh Chính được phân chia công năng hoàn hảo. Tủ bếp trên bố trí giá úp bát, máy hút mùi còn tủ bếp dưới thì để bếp từ, chậu rửa bát, cùng các phụ kiện inox giá kệ để xoong nồi, dao thớt, gia vị, thùng gạo thông minh, khoang để lò vi sóng...
Mặt đá bàn bếp tủ dưới là đá granite kim sa trung Ấn Độ với độ bền cao, có khả năng chịu lực, nhiệt, chống trầy xước cực tốt. Khoảng cách giữa tủ trên và dưới là kính cường lực Temple dày 8mm màu xanh nhẹ nhàng, bề mặt bóng sáng như gương tạo hiệu ứng phản chiếu giúp cho căn bếp trở nên khang trang, tươi mới và có hồn hơn.

Nhìn ở góc độ này cho thấy bề mặt trên mỗi cánh tủ đều rất mượt mà, đẹp tinh tế
Ngay kế cạnh tủ bếp acrylic TBAC176 hình chữ L thì gia đình anh Chính có sử dụng thêm 1 hệ tủ, đợt trang trí làm bằng gỗ melamine màu vân gỗ nhẹ nhàng, mộc mạc tự nhiên. Đây có thể được coi là điểm nhấn gây sự chú ý với người đối diện khi bước vào căn hộ, không gian bếp.

Bản vẽ 3D hệ tủ, đợt để đồ trang trí tiện lợi hình chữ i của nhà anh Chính ở Đội Cấn

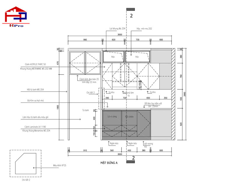
Bản vẽ 2D mặt đứng A tủ bếp acrylic TBAC176 nhà anh Chính ở Đội Cấn

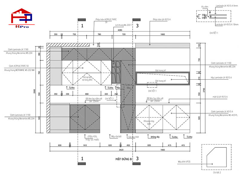
Ảnh thiết kế 2D mặt đứng B tủ bếp acrylic TBAC176 nhà anh Chính ở Đội Cấn

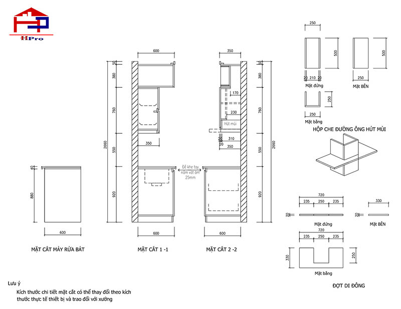
Bản vẽ kỹ thuật chi tiết về hệ tủ để đồ cạnh tủ bếp tiện dụng của nhà anh Chính - Đội Cấn

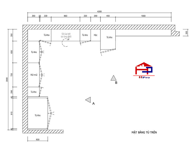
Ảnh 2D mặt bằng tủ bếp trên của nhà anh Chính

Ảnh 2D chi tiết kích thước mặt bằng tủ bếp kịch trần của nhà anh Chính ở Đội Cấn

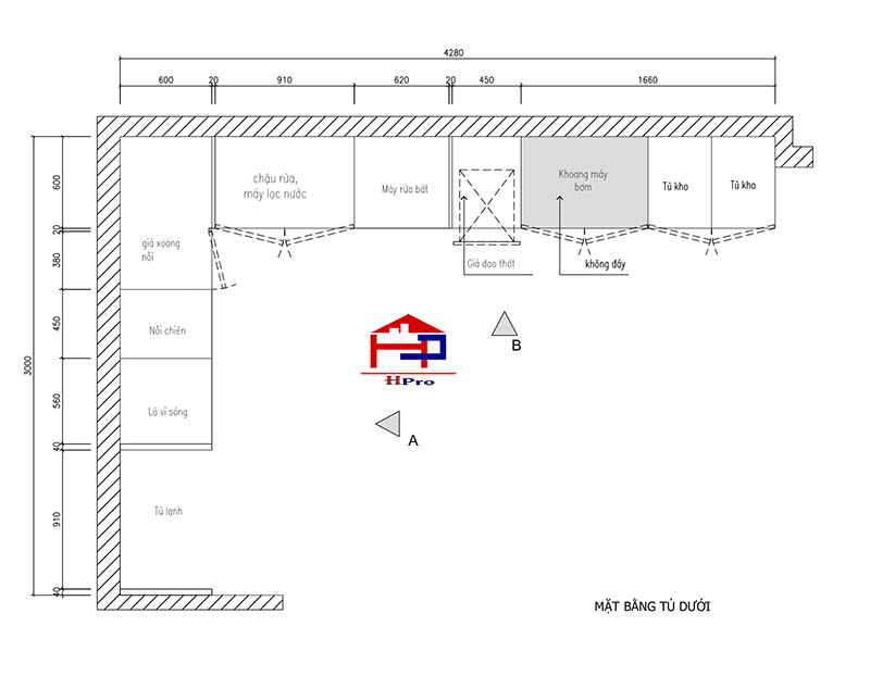
Đây là bản vẽ kích thước tủ bếp dưới của nhà anh Chính ở Đội Cấn

Phác họa bản vẽ lắp đèn led tủ bếp trên của nhà anh Chính ở Đội Cấn

Mặt bằng bố trí đèn led tủ kịch trần của nhà anh Chính - Đội Cấn
>> > Mãn nhãn với những mẫu tủ bếp bằng acrylic bóng gương chuẩn An Cường siêu đẹp, sang trọng tại Hpro.

Toàn cảnh không gian phòng bếp hiện đại, ấm cúng của nhà anh Chính ở Đội Cấn

Hình ảnh nhân viên Hpro chụp cùng chị nhà anh Chính trước hệ tủ bếp tuyệt đẹp do Hpro thiết kế & hoàn thiện

Phòng bếp nhà anh Chính được đặt cạnh 1 ô cửa thoáng nhìn view ra bên ngoài vô cùng lãng mạn, thơ mộng.
Mọi người ở thể cùng CHILL vào những ngày cuối tuần

Hình ảnh thực tế bộ tủ bếp acrylic TBAC176 kết hợp laminate nhà anh Chính sau khi được Hpro lắp đặt hoàn thiện

Hình ảnh thực tế hệ tủ, đợt để đồ trang trí tiện dụng, đẹp của nhà anh Chính ở Đội Cấn

Tủ bếp trên sử dụng gỗ acrylic sáng bóng màu trắng tinh khôi, sang trọng tạo hiệu ứng sâu cho gian bếp

Cận cảnh bề mặt cánh tủ bếp trên lắp lánh dưới ánh đèn led vàng của phòng bếp nhà anh Chính ở Đội Cấn

Tủ bếp thiết kế dáng chữ L tận dụng tối đa góc cạnh cũng như bố trí công năng hoàn hảo,
mang đến sự tiện nghi cao cho người nội trợ
>>> Khám phá nhiều mẫu tủ bếp acrylic đa dạng về màu sắc và kiểu dáng

Bảng báo giá tủ bếp acrylic TBAC176 kết hợp laminate nhà anh Chính - Đội Cấn - view 1

Hpro báo giá tủ bếp acrylic TBAC176 kết hợp laminate nhà anh Chính - Đội Cấn - view 2
Nội Thất Hpro - đơn vị chuyên thiết kế & thi công nội thất phòng bếp đẹp, hiện đại phù hợp với mọi ngôi nhà. Cùng mức giá tiết kiệm lên đến 30% do chúng tôi sở hữu quy trình sản xuất chuyên nghiệp. Xưởng rộng hàng trăm m2, trang bị đầy đủ máy móc hiện đại, nhập khẩu 100% Châu Âu. Và Hpro còn:
Trên đây là toàn bộ bản thiết 3D, 2D cùng ảnh thực tế không gian phòng bếp nhà anh Chính sau khi được Hpro hoàn thiện.Gia đình rất hài lòng. Nếu bạn cũng đang muốn sở hữu một gian bếp hiện đại, tiện nghi và khác biệt giống như anh Chính có thể liên hệ với chúng tôi qua số Hotline: 090.2222.945 (Mr. Hoàn) - 0917.346.883 Mr. Nam) - 024.3236.3456 (số máy bàn cố định) để nhận hỗ trợ tư vấn nhanh nhất.
Hoặc đến trực tiếp showroom dưới đây:
Showroom 1: Số 17 Ngõ 40 Trung Kính - Cầu Giấy - Hà Nội
Showroom 2: 509 Nguyễn Văn Cừ - Long Biên - Hà Nội
Showroom 3: 123 đường 25/4 thành phố Hạ Long - Quảng Ninh
Showroom 4: 1328 Hùng Vương - Việt Trì - Phú Thọ.
>>> Xem thêm: Mẫu tủ bếp acrylic TBAC177 nhà cô Ngọc - KĐT Trung Hòa màu trắng tinh tế, hiện đại, sang trọng.
HỎI & ĐÁP
Liên hệ để được tư vấn