




4+
Mã hàng: TBAC180
Số lượng:
Mô tả sản phẩm
Tủ bếp acrylic TBAC180 nhà chị Phượng thiết kế chữ L nhỏ gọn, đơn giản màu nhẹ nhàng, tinh tế. Bố trí lắp đặt công năng hoàn hảo mang đến tiện nghi cao cho gia đình chị Phượng.
Với những căn hộ chung cư ở thành thị có diện tích gian bếp nhỏ, hạn hẹp khiến cho nhiều gia đình khó khăn trong bố trí, sắp xếp đồ đạc gọn gàng, ngăn nắp? Chị Phượng ở Hoàng Đạo Thúy cũng gặp vấn đề đó nên Hpro đã lên bản thiết kế & thi công lắp cho gia đình chị Phượng một bộ tủ bếp acrylic TBAC180 hình chữ L kịch trần nhỏ gọn. Chi tiết cùng tham khảo dưới đây nhé!
Tủ bếp nhà chị Phượng được làm bằng gỗ acrylic bóng gương An Cường với bề mặt phẳng mịn hiện đại, dễ vệ sinh lau chùi. Lựa chọn tone màu sáng, nhẹ nhàng giúp tạo cảm giác thoáng đãng, rộng rãi cho không gian bếp.
Đá ốp bàn bếp màu trắng và kính màu ghi cùng tone màu nhẹ nhàng với tủ bếp đã góp phần tôn lên không gian căn nhà, mặt bếp được bao phủ kính và đá giúp việc dọn dẹp sau khi nấu ăn trở nên dễ dàng hơn.

Bản vẽ 3D tủ bếp acrylic TBAC180 nhà chị Phượng với kiểu dáng chữ L nhỏ gọn
Thiết kế nội thất phòng bếp đẹp ngất ngây với hệ tủ bếp trên và tủ bếp dưới đồng nhất về màu sắc, nâng cao tính thẩm mỹ cho toàn bộ căn bếp. Điểm nhấn là phần phào và khung thùng tủ sử dụng màu vân gỗ nâu vàng ấm cúng.
Tủ bếp acrylic TBAC180 với thiết kế tủ trên cao chạm trần vừa tạo thêm không gian để chứa đồ đạc, vừa có thể giúp bạn đỡ việc lau dọn những vết bụi đóng lâu ngày trên trần tủ.

Mẫu tủ bếp acrylic TBAC180 với hướng nhìn chính diện hệ bàn đảo vào
Ngay gần lối ra vào chị Phượng có sử dụng thêm 1 hệ bàn đảo nhỏ gọn tạo thêm diện tích để trưng bày đồ ăn, nơi để gia đình Chill vào cuối tuần nhâm nhi ly trà, ăn hoa quả...
Bên trong hệ tủ bếp thì được phân chia các khoang cánh tủ đều, công năng hoàn hảo nhằm giúp gia đình chị Phượng bố trí các thiết bị - phụ kiện bếp 1 cách khoa học, thông minh và đem đến sự tiện nghi cao.

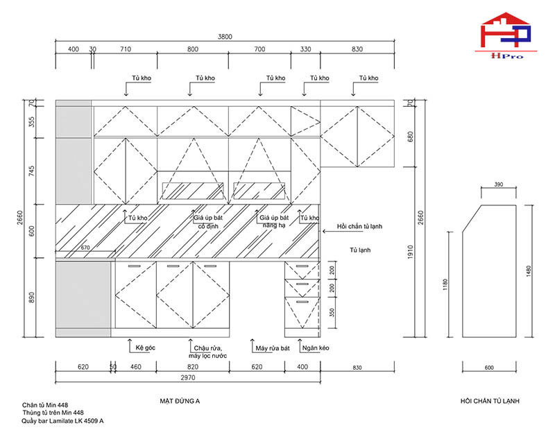
Ảnh thiết kế 2D mặt đứng A tủ bếp acrylic TBAC180 nhà chị Phượng

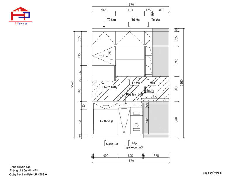
Bản vẽ kỹ thuật 2D mặt đứng B tủ bếp acrylic TBAC180 nhà chị Phượng

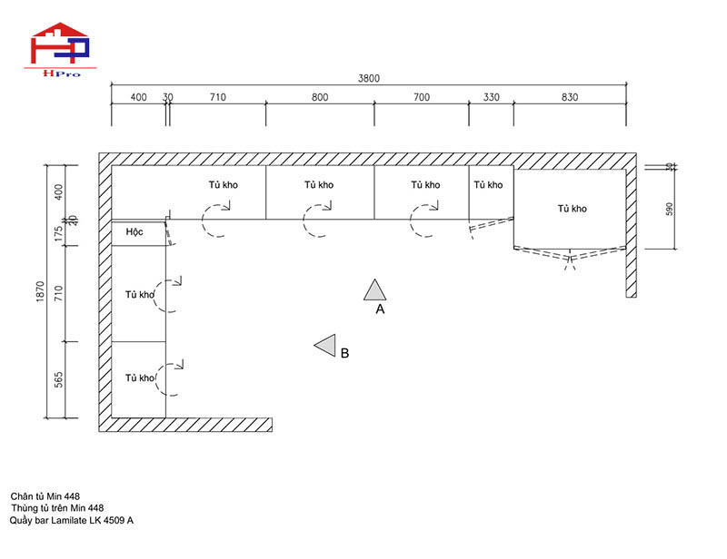
Bản vẽ mặt bằng tủ bếp trên của nhà chị Phượng - Hoàng Đạo Thúy

Chi tiết kích thước các khoang tủ kịch trần của nhà chị Phượng

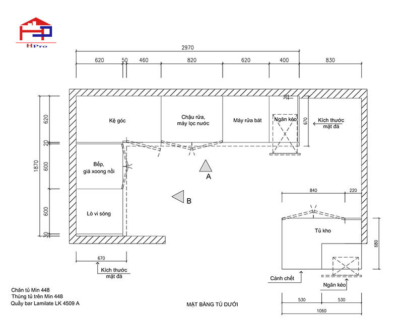
Chi tiết mặt bằng tủ bếp dưới của nhà chị Phượng - Hoàng Đạo Thúy

Ảnh chi tiết kích thước hệ bàn đảo nhỏ xinh, đa năng của nhà chị Phượng
>>> Tham khảo thêm một số mẫu tủ bếp acrylic đẹp, hiện đại chị em nào cũng mê.

Hình ảnh thực tế bộ tủ bếp acrylic TBAC180 nhà chị Phượng sau khi được Hpro hoàn thiện

Tuy nhỏ nhưng gian bếp nhà chị Phượng vẫn đáp ứng đầy đủ công năng mang đến sự tiện nghi cao cho gia đình
trong quá trình vào bếp

Sử dụng kính ốp màu vàng giúp làm nổi bật hệ tủ bếp acrylic TBAC180 của nhà chị Phượng

Sử dụng hệ thống hút mùi công suất lớn giúp cho căn bếp nhà chị Phượng luôn sạch sẽ, thoáng mát
KHÔNG ám mùi khó chịu

Bề mặt cánh tủ bếp dưới bằng phẳng, mịn bóng sáng như gương cực dễ vệ sinh lau chùi

Cận cảnh khoang tủ để lò vi sóng của nhà chị Phượng - Hoàng Đạo Thúy

Bảng báo giá tủ bếp acrylic TBAC180 nhà chị Phượng - view 1

Bảng giá chi tiết các hạng mục tủ bếp acrylic TBAC180 nhà chị Phượng - view 2
Ngoài làm tủ bếp thì chị Phượng còn sử dụng thêm một số thiết bị - phụ kiện bếp thông minh, hiện đại như: giá úp bát, tay nâng blum giá dao thớt, mâm xoay....

Hình ảnh thực tế giá úp bát nâng hạ tại Nội Thất Hpro

Ảnh phụ kiện giá úp bát cố định 2 tầng Carymax 100% inox 304 bền đẹp

Hình ảnh thực bộ tay nâng Blum nâng cánh tủ bếp trên

Hình ảnh thực tế gia dao thớt đa năng dạng sợi tại Hpro

Hình ảnh thực tế phụ kiện thùng gạo thông minh mặt gương bóng sáng tại Hpro

Hình ảnh phụ kiện mâm xoay hình lá tại Nội Thất Hpro
- Miễn phí tư vấn, khảo sát & đo đạc công trình tủ bếp tại nhà. Hpro nhận thi công khách từ Hà Tĩnh, Nghệ An đổ ra ngoài Bắc.
- Miễn phí thiết kế 3D, 2D theo kích thước chuẩn, nhu cầu thực tế của gia đình. Đội KTS Hpro toàn là người trẻ, năng động, sáng tạo sẽ cùng chị Phượng tạo ra những bản vẽ hoàn chỉnh, đẹp và hiện đại nhất.
- Hpro miễn phí vận chuyển, thi công & lắp đặt tủ bếp cho nhà chị Phượng.
- Hpro bảo hành 2 năm và bảo trì trọn đời.
Trên đây là toàn bộ thông tin về mẫu tủ bếp acrylic TBAC180 nhà chị Phượng ở Hoàng Đạo Thúy. Nếu bạn đang có nhu cầu và muốn hoàn thiện nội thất phòng bếp nhà mình còn chờ gì không liên hệ với Hpro qua Hotline: 090.2222.945 (Mr. Hoàn) - 0917.346.883 (Mr. Nam) - 024.3236.3456 (số máy bàn cố định) để nhận được hỗ trợ tư vấn nhanh nhất.
Hoặc đến trực tiếp showroom dưới đây:
Showroom 1: Số 17 Ngõ 40 Trung Kính - Cầu GIấy - Hà Nội
Showroom 2: 509 Nguyễn Văn Cừ - Long Biên - Hà Nội
Showroom 3: 123 đường 25/4 thành phố Hạ Long - Quảng Ninh
Showroom 4: 1328 Hùng Vương - Việt Trì - Phú Thọ
Cùng tham khảo thêm mẫu tủ bếp acrylic TBAC181 chữ L màu trắng tinh tế, hiện đại nhà chú Minh - Long Biên nhé!
HỎI & ĐÁP
Liên hệ để được tư vấn