




4+
Mã hàng: TBAC183
Số lượng:
Mô tả sản phẩm
Tủ bếp acrylic TBAC183 nhà anh Long - chung cư Ecolife Tây Hồ thiết kế theo phong cách hiện đại, màu trắng - ghi (xám) nhẹ nhàng thanh lịch. Gỗ công nghiệp An Cường với độ bền vượt thời gian, bề mặt phẳng mịn dễ vệ sinh lau chùi.
Hpro luôn mang đến cho các khách hàng mẫu tủ bếp đẹp, hiện đại và tiện nghi trong quá trình sử dụng. Gia đình anh Long đã tin tưởng lựa chọn công ty chúng tôi làm tủ bếp acrylic TBAC183 kiểu dáng hiện đại, tính năng tiện lợi mang đến những trải nghiệm vô cùng tốt đến với người sử dụng. Cùng tham khảo thông tin của bộ tủ bếp này trong bài viết bên dưới.
Bề mặt cánh tủ bếp trên + dưới là gỗ công nghiệp acrylic An Cường. Vật liệu với ưu điểm bóng sáng như gương giúp tạo hiệu ứng có chiều sâu cho không gian được thoáng, rộng rãi hơn. Acrylic còn có khả năng chịu lực, nhiệt, chống thấm nước tốt. Màu sắc đa dạng từ trơn hiện đại đến vân gỗ sang trọng giúp quý khách hàng có thể thoải mái lựa chọn phù hợp với phong cách, phong thủy của căn hộ.
Phần khung thùng tủ bếp trên là gỗ melamine sần chống trầy tốt. Hậu Aluminium dày 2,8mm thấm nước tốt giúp cho phần tủ kê sát tường không bị ẩm mốc.

Ảnh thiết kế 3D mẫu tủ bếp acrylic TBAC183 nhà anh Long - Chung cư Ecolife
Toàn bộ khung thùng, hậu tủ bếp dưới thì anh Long lựa chọn sử dụng 100% inox 304 cao cấp, bề mặt bóng nhẵn mờ xước có khả năng chống mối mọt, han gỉ, oxy hóa tốt. Với chất liệu này thì gia đình anh Long hoàn toàn yên tâm về độ bền sử dụng. Hpro cam kết lên tới 20 năm.
Tủ bếp acrylic TBAC183 nhà anh Long được thiết kế theo dáng chữ L khuyết đi 1 hệ cạnh tủ bếp trên nhằm tạo sự thoáng đãng cho không gian. Ưu điểm của kiểu dáng chữ L này là đặt áp tường, ôm sát phần góc chết của phòng. Tủ sử dụng kết hợp 2 gam màu tương phản trắng - ghi bóng gương hiện đại, đẹp sang. Với tone màu này thì gia đình anh Long hoàn toàn yên tâm về tính thẩm mỹ, độ bền đẹp vượt thời gian.

Tủ bếp màu đen - trắng hiện đại, đẹp sang
Tủ bếp trên KTS Hpro có thiết kế thêm khoang tủ bếp kịch trần vừa đảm bảo thêm diện tích lưu trữ đồ đạc vừa giúp gia đình anh Long hạn chế được bụi bám bẩn trên nóc đỉnh tủ của kiểu tủ lửng. Tủ lạnh được đặt trong cùng hệ tủ bếp giúp cho việc vào bếp của gia đình được thuận tiện, nhanh gọn hơn. Kế bên ngoài tủ lạnh là tủ rượu dạng đứng và dạng nằm. Sử dụng cánh kính trong suốt đẹp.
Trên mỗi cánh tủ bếp dưới anh Long có sử dụng thêm tay nắm inox 304 hình chữ U tiện lợi cho việc đóng kéo mở tủ. Còn hệ tủ bếp trên thì sử dụng kiểm cánh vát chéo góc 45 độ vừa đảm bảo tính thẩm mỹ vừa có công năng hoàn hảo. Kiểu cánh đang nhận được rất nhiều sự lựa chọn của đại đa số gia đình hiện nay khi sử dụng gỗ công nghiệp An Cường.

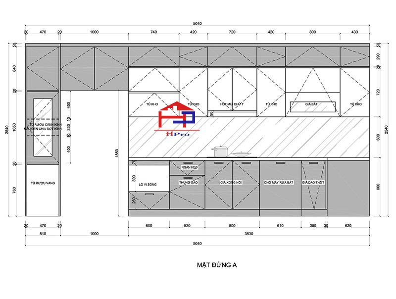
Ảnh thiết kế 2D mặt đứng A tủ bếp acrylic TBAC183 nhà anh Long
Tủ bếp nhà anh Long lắp đặt đầy đủ thiết bị - phụ kiện bếp hiện đại, thông minh như: bếp từ, máy hút mùi, chậu rửa, giá úp bát, giá để xoong nồi, giá dao thớt đa năng, lò vi sóng, lò nướng... Tất cả đều được bố trí khoa học, thông minh mang đến sự tiện nghi cao cho mọi người sử dụng.

Bản vẽ 2D mặt đứng B tủ bếp acrylic TBAC183 nhà anh Long - Ecolife Tây Hồ

Bản vẽ kỹ thuật mặt bằng tủ bếp trên nhà anh Long - Chung cư Ecolife Tây Hồ

Bản vẽ chi tiết kích thước tủ bếp dưới nhà anh Long ở Chung cư Ecolife Tây Hồ
>>> Xem thêm nhiều mẫu tủ bếp acrylic đẹp, hiện đại và tiện nghi của Hpro chỉ bằng 1 cú click chuột tại đường dẫn màu xanh.

Ảnh thực tế bộ tủ bếp acrylic TBAC183 nhà anh Long sau khi được Hpro hoàn thiện

Cận cảnh bề mặt cánh tủ bếp nhà anh Long phẳng mịn, bóng gương cực hiện đại, dễ vệ sinh lau chùi

Góc view nhìn bộ tủ bếp nhà anh Long từ hệ tủ rượu, khoang tủ lạnh ra góc cạnh chữ L

Tủ bếp với thiết kế dáng chữ L áp tường. Bố trí công năng hoàn hảo mang đến tiện nghi cao cho gia đình anh Long

Bảng giá chi tiết bộ tủ bếp acrylic TBAC183 nhà anh Long ở Chung cư Ecolife - view 1

Bảng giá tủ bếp acrylic TBAC183 nhà anh Long - Chung cư Ecolife - view 2
>>> Nội thất Hpro luôn báo giá tủ bếp acrylic giá rẻ cho khách hàng có nhu cầu.
Để giúp cho căn bếp nhà anh Long được tiện nghi, hiện đại hơn thì Hpro có tư vấn gia đình sử dụng thêm một số phụ kiện tủ bếp thông minh như: giá úp bát, giá để xoong nồi, dao thớt đa năng, tay nâng Blum... nhằm hỗ trợ lưu giữ đồ đạc 1 cách ngăn nắp, gọn gàng và dễ lấy khi sử dụng.
Dưới đây là hình ảnh chân thực nhất về những phụ kiện đó, mời bạn tham khảo:

Ảnh thực tế phụ kiện giá úp bát nâng hạ 2 tầng inox 304 sáng bóng, độ bền cao.

Giá để xoong nồi 2 tầng Carymax inox 304 sáng bóng, chống han gỉ, oxy hóa

Ảnh thực tế phụ kiện giá dao thớt đa năng Carymax inox Hpro cung cấp cho nhà anh Long

Cận cảnh tay nâng Blum nâng cánh tủ bếp trên
Bạn còn băn khoăn gì mà không đến với Nội thất Hpro để được tư vấn cũng như làm tủ bếp, nội thất gia đình một cách tốt nhất. Liên hệ với công ty chúng tôi qua các số điện thoại: 090.2222.945 (Mr.Hoàn) để được tư vấn, hỗ trợ nhanh chóng.
Hoặc đến trực tiếp các showroom của Nội thất Hpro:
>>> Xem thêm mẫu tủ bếp acrylic đẹp TBAC184 kết hợp laminate nhà anh Tú - Phúc Lợi hiện đại, đẹp sang
HỎI & ĐÁP
Liên hệ để được tư vấn