




4+
Mã hàng: TBAC215
Số lượng:
Mô tả sản phẩm
Cùng nội thất Hpro cải tạo không gian bếp cho gia đình nhà chị Hiền Mỹ Đình. Biến đổi căn bếp trở nên hiện đại, tiện nghi hơn rất nhiều với mẫu tủ bếp acrylic TBAC215, thiết kế chữ i, tủ bếp kịch trần, tone màu trắng đen đơn giản nhưng vô cùng đẹp và luôn phù hợp với mọi xu hướng.
Không gian bếp nhà bạn đang chưa phù hợp, chưa thực sự tiện nghi hãy bắt tay ngay vào việc cải tạo. Cùng nội thất Hpro biến đổi không gian bếp nhà chị Hiền -Mỹ đình. Bộ tủ bếp acrylic TBAC215 đã làm thay đổi không gian bếp nhà chị Hiện như thế nào, cùng chúng tôi khám phá nhé!
Nội thất Hpro đã tiến hành cải tạo khu bếp nhà chị Hiền - Mỹ Đình từ căn bếp gỗ tự nhiên với thiết kế chưa được tối ưu, thay vào đó là mẫu tủ bếp acrylic chữ i, thiết kế kịch trần, phong cách hiện đại. Với mẫu tủ bếp acrylic bóng gương giúp tạo cảm giác không gian bếp rộng rãi thông thoáng nhờ hiệu ứng phản chiếu. Tone màu trắng đen phù hợp với mọi xu hướng không bao giờ lỗi thời.

Cùng nội thất Hpro cải tạo không gian bếp cho gia đình chị Hiền - Mỹ Đình
Không gian bếp nhà chị Hiền đã hoàn toàn thay đổi, mẫu tủ bếp acrylic TBAC215 thiết kế kịch trần tăng không gian lưu trữ, khu vực bếp trở nên gọn gàng hơn rất nhiều.

Không gian bếp nhà chị Hiền sau khi cải tạo hiện đại tiện nghi
Chị Hiện cũng đã chọn cho gia đình mình những phụ kiện tủ bếp thông minh như: giá xoong nồi, giá dao thớt, giá úp bát nâng hạ, tay nâng, bản lề, ray giảm chấn, bếp từ, chậu rửa, máy hút mùi… phục vụ tối ưu cho công việc nấu ăn của gia chủ.
Chi tiết bản thiết kế 3D và 2D bộ tủ bếp Acrylic TBAC215 nhà chị Linh - Mỹ Đình:

Ảnh thiết kế 3D tủ bếp Acrylic TBAC215 nhà chị Hiền - Mỹ Đình

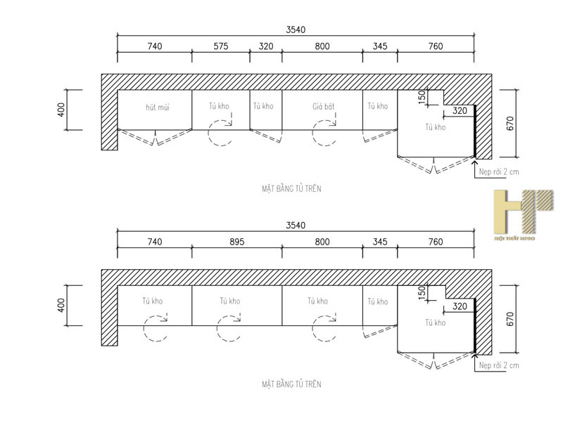
Ảnh thiết kế 2D mặt bằng tủ bếp dưới TBAC215 nhà chị Hiền - Mỹ Đình

Ảnh thiết kế 2D mặt bằng tủ bếp trên TBAC215 nhà chị Hiền - Mỹ Đình

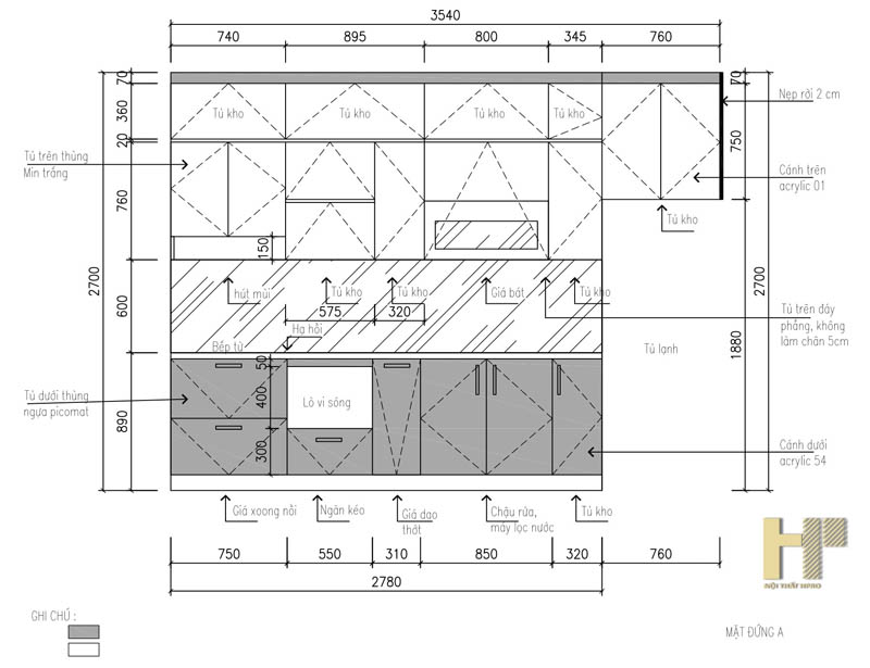
Ảnh thiết kế 2D mặt đứng A tủ bếp TBAC215 nhà chị Hiền - Mỹ Đình
Không gian bếp nhà chị Hiền - Mỹ Đình trước khi cải tạo:

Không gian bếp nhà chị Hiền trước khi cải tạo tủ bếp bị chia làm 2 tách rời

Toàn cảnh không gian bếp nhà chị Hiền - Mỹ Đình trước khi cải tạo
Không gian bếp nhà chị Hiền - Mỹ Đình sau khi cải tạo:

Không gian bếp nhà chị Hiền - Mỹ Đình sau khi hoàn thiện

Mẫu tủ bếp chữ i kịch trần phù hợp với những không gian bếp nhỏ như gia đình chị Hiền

Giá úp bát nâng hạ nhập khầu cùng tay nâng hạ thủy lực

Giá úp bát Eurogold Hpro cung cấp bảo hành han gỉ trọn đời

Không gian bếp được bố trí khoa học thuận tiện cho việc nấu nướng

Các khu vực bếp đều được bố trí sắp xếp một cách khoa học

Chậu rửa KONOX 1 hố cao cấp - Hàng khuyến mãi khi làm tủ bếp trọn gói tại Hpro

Khu vực chậu rửa tiện nghi

Tất cả đồ dùng trong khu vực bếp được sắp xếp vô cùng gọn gàng

Bố trí khu vực nấu và khu vực lò nướng tiện nghi

Bề mặt Acrylic bóng giương phản chiếu tạo chiều sâu cho không gian bếp

Mặt bằng bếp nahf chì Hiền sau khi tháo dỡ bộ tủ bếp kiểu cũ

Đội kỹ sư Hpro đang tiến hành hoàn thiện lắp đặt tủ bếp dưới

Nhân viên đang kiểm tra lại phần tủ

Phần tủ bếp Acrylic An Cường được bọc bảo vệ trước khi ban giao cho khách hàng

Lắp ráp hoàn thiện theo đúng bản thiết kế tủ bếp TBAC215

Bảng giá tủ bếp Acrylic TBAC215 chị Hiền - View 1

Bảng giá tủ bếp Acrylic TBAC215 chị Hiền - View 2

Bảng giá tủ bếp Acrylic TBAC215 chị Hiền - View 3
>>>Tham khảo thêm Tủ bếp Acrylic TBAC214 kết hợp hệ thống đèn led hiện đại nhà anh Kiên - Bắc Giang
HỎI & ĐÁP
Liên hệ để được tư vấn