




4+
Mã hàng: TBAC192
Số lượng:
Mô tả sản phẩm
Tủ bếp bằng acrylic TBAC192 nhà anh Đạt - Nam Định với thiết kế chữ L hiện đại, bố trí lắp đặt công năng hoàn hảo mang đến sự tiện nghi cao. Bề mặt cánh màu trắng kết hợp vân gỗ mộc mạc, tinh tế.
Tủ bếp đang ngày càng trở thành một vật dụng không thể thiếu được trong mỗi căn bếp hiện đại. Việc đầu tư cho gia đình mình một bộ tủ bếp đẹp hiện đại là điều mà bất cứ gia đình nào cũng nên làm. Nhận thấy được điều đó, gia đình anh Đạt ở Nam Định đã tìm đến Hpro với mong muốn được làm một bộ tủ bếp phù hợp với không gian bếp nhỏ hẹp của gia đình mình. Cùng Hpro khám phá bộ tủ bếp bằng acrylic TBAC192 nhà anh Đạt dưới đây nhé!
Thiết kế tủ bếp chữ L bằng chất liệu MDF phủ acrylic bóng gương, với 2 màu sắc cơn bản là trắng và vân gỗ mộc mạc, tinh tế vừa hiện đại lại thân thiện. Bề mặt cánh acrylic với độ bóng sáng như gương giúp không gian trở lên khang trang, đẹp hơn. Và dễ dàng lau chùi, dọn dẹp tủ bếp hơn.
Tủ bếp có thiết kế thêm tủ chạm trần tận dụng tối đa không gian của căn bếp cho bạn thoải mái chứa đồ đạc, và giúp bạn đỡ phải lau dọn những lớp bụi đóng lâu ngày trên trần tủ.

Ảnh thiết kế 3D tủ bếp bằng acrylic TBAC192 nhà anh Đạt - Nam Định - view 1
Tủ bếp với kích thước chuẩn tạo không gian chung cũng như những không gian riêng để bạn có thể tự sắp xếp đồ đạc một cách hợp lý và phù hợp nhất để việc nấu ăn của mình thêm dễ dàng và nhiều thú vị. Tủ dưới dưới kết hợp cùng với mặt bếp màu trắng vân mây đẹp sạch sẽ, hiện đại sẽ là không gian riêng để bạn chuẩn bị những món ăn ngon cho gia đình của mình. Kính ốp bếp màu xanh nhẹ nhàng, tươi mới vô cùng hài hòa, sang trọng, đồng thời giúp bạn dễ dàng lau chùi, dọn dẹp hơn sau khi nấu nướng.
Trên bề mặt cánh tủ bếp dưới có lắp thêm tay nắm cầm inox sang trọng, bề mặt bóng sáng cực thuận tiện đóng/kéo mở tủ khi cần. Còn cánh tủ bếp trên là kiểu cánh vát chéo 45 độ hiện đại giúp góp phần tăng thêm tính thẩm mỹ cho căn bếp.

Ảnh 3D tủ bếp bằng acrylic TBAC192 nhà anh Đạt - view 2
Các thiết bị - phụ kiện bếp được sắp xếp một cách hợp lý và phù hợp với sinh hoạt của gia đình và sự thoải mái khi nấu nướng. Riêng phần chậu rửa được đặt gần cửa sổ vô cùng thoáng đãng, giúp cho khu vực luôn khô ráo, thoáng đãng KHÔNG ẩm mốc. Kế cạnh là giá úp bát và kệ để dao thớt đa năng tiện lợi.
Cạnh chữ L còn lại thì được bố trí bếp nấu + lò nướng, vi sóng vô cùng tiện lợi. Phía trên có hệ thống máy hút mùi giúp đẩy nhanh những khói, mùi thức ăn, dầu mỡ 1 cách nhanh chóng để đem lại không khí trong lành cho gian bếp của gia đình nhà anh Đạt.

Ảnh thiết kế 2D mặt đứng A tủ bếp bằng acrylic TBAC192 nhà anh Đạt

Bản vẽ 2D mặt đứng B tủ bếp bằng acrylic TBAC192 nhà anh Đạt - Nam Định

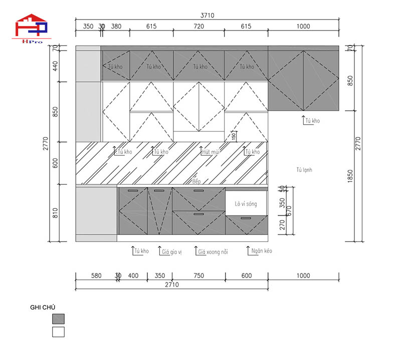
Bản vẽ kỹ thuật 2D mặt bằng tủ bếp trên của nhà anh Đạt ở Nam Định

Kích thước tủ bếp kịch trần của nhà anh Đạt - Nam Định

Bản vẽ 2D chi tiết kích thước tủ bếp dưới của nhà anh Đạt ở Nam Định
>>> Tìm hiểu thêm về cấu tạo và ưu điểm của tủ bếp acrylic Hpro cung cấp tại link: https://noithathpro.com/tu-bep-acrylic

Hình ảnh thực tế bộ tủ bếp bằng acrylic TBAC192 nhà anh Đạt sau khi được hoàn thiện

Tủ bếp với màu trắng trắng - vân gỗ nhẹ nhàng, tinh tế mộc mạc rất tự nhiên

Mặt cánh tủ bếp acrylic nhà anh Đạt lựa chọn là cánh vát chéo góc 45 độ hiện đại, cực đẹp

Tủ thiết kế theo dáng chữ L cực tiện lợi

Bảng giá chi tiết từng hạng mục tủ bếp acrylic TBAC192 nhà anh Đạt - view 1

Hpro báo giá tủ bếp acrylic TBAC192 nhà anh Đạt - view 2
Liên hệ ngay đến số Hotline: 090.2222.945 (Mr. Hoàn) hoặc 0917.346.883 (Mr. Nam) – 024.3236.3456 (số máy bàn cố định) để nhận được sự tư vấn tận tình nhất
Địa chỉ showroom Nội Thất Hpro:
+ Showroom 1: Số 17 Ngõ 40 Trung Kính, Cầu Giấy, Hà Nội
+ Showroom 2: 509 Nguyễn Văn Cừ, Long Biên, Hà Nội
+ showroom 3: 123 đường 25/4 thành phố Hạ Long, Quảng Ninh.
+ Showroom 4: 1328 Hùng Vương, Việt Trì, Phú Thọ.
>>> Bài viết xem thêm: Mẫu tủ bếp acrylic TBAC193 nhà chú Trinh - Nguyễn Khang thiết kế chữ L đơn giản, tiện nghi cao màu đen trắng hiện đại.
HỎI & ĐÁP
Liên hệ để được tư vấn