




4+
Mã hàng: TBAC186
Số lượng:
Mô tả sản phẩm
Tủ bếp gỗ acrylic TBAC186 nhà anh Thắng - Hưng Yên với thiết kế chữ I nhỏ gọn, màu trắng sáng kết hợp kính ốp màu xanh đặc biệt, ấn tượng. Hệ tủ với ưu điểm bề mặt phẳng mịn trơn bóng cực hiện đại, dễ vệ sinh lau chùi.
Mẫu tủ bếp gỗ acrylic TBAC186 nhà anh Thắng - Hưng Yên thiết kế chữ i nhỏ gọn nhưng vẫn rất hiện đại, công năng tiện nghi giúp cho gia đình sử dụng vô cùng hài lòng và ưng ý. Thông tin của bộ tủ bếp này được chúng tôi cung cấp trong bài viết bên dưới.
Video thực tế bộ tủ bếp gỗ acrylic TBAC186 nhà anh Thắng ở Hưng Yên
Tủ bếp gỗ acrylic TBAC186 nhà anh Thắng được thiết theo dáng chữ i kịch trần - sự lựa chọn hoàn hảo cho không gin bếp không rộng cũng không quá hẹp. Chữ i đơn giản nhưng giúp gia đình bố trí công năng gần nhau mang đến nhiều sự tiện nghi cao. Khoang tủ kịch trần giúp gia đình lưu trữ đồ đạc ít sử dụng 1 cách gọn gàng, ngăn nắp.

Ảnh thiết kế 3D tủ bếp gỗ acrylic TBAC186 nhà anh Thắng ở Hưng Yên
Tủ bếp được là bằng gỗ acrylic An Cường với phần code gỗ MDF lõi xanh chống ẩm dày 18mm. Cánh tủ bếp no line bằng phẳng. Bề mặt cánh hiện đại, phẳng trơn bóng gương cực dễ vệ sinh, lau chùi mỗi khi dọn dẹp. Anh Thắng lựa chọn chọn kiếu vát chéo góc cạnh 45 độ hiện đại góp phần tăng giá trị thẩm mỹ cho căn bếp.
Với tone màu chủ đạo là trắng sáng vừa hiện đại vừa giúp bếp có chiều sâu, ăn gian diện tích 1 cách thông minh. Tạo cảm giác cho người nhìn khi bước vào không gian KHÔNG bị bí bách, rộng thoáng đãng.

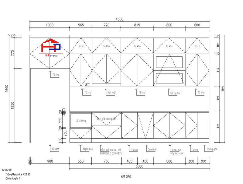
Ảnh thiết kế 2D mặt đứng tủ bếp gỗ acrylic TBAC186 nhà anh Thắng
Bộ tủ bếp acrylic TBAC186 nhà anh Thắng dù thiết kế kiểu dáng chữ I nhưng sắp xếp, lắp đặt các thiết bị, phụ kiện nhà bếp hiện đại, thông minh. Điển hình như là giá xoong nồi, giá dao thớt, giá bát nâng hạ, thùng gạo, máy hút mùi,… Tất cả đều giúp cho không gian nhà bếp thêm gọn gàng, ngăn nắp, tiện dụng trong quá trình sử dụng.

Bản vẽ kỹ thuật mặt bằng tủ bếp trên của nhà anh Thắng

Hình ảnh thực tế tủ bếp gỗ acrylic TBAC186 nhà anh Thắng khi được Hpro hoàn thiện

Tủ bếp có lắp đặt đầy đủ phụ kiện tủ bếp hiện đại mang đến sự tiện nghi cho gia đình

Hình ảnh thực tế hệ tủ trên màu trắng sáng, đẹp của nhà anh Thắng ở Hưng Yên

Việc sử dụng máy hút mùi âm tủ này giúp cho gian bếp nhà anh Thắng luôn được trong lành, không ám mùi

Với ưu điểm bề mặt phẳng mịn, trơn bóng của acrylic khiến cho việc lau chùi, vệ sinh cũng như tăng tính thẩm mỹ
cho không gian bếp nhà anh Thắng

Cận cảnh phụ kiện giá dao thớt inox dạng sợi nhà anh Thắng sử dụng

Bảng báo giá tủ bếp gỗ acrylic TBAC186 nhà anh Thắng - Hưng Yên - view 1

Hpro báo giá tủ bếp acrylic TBAC186 nhà anh Thắng - view 2

Bảng giá tủ bếp gỗ acrylic TBAC186 nhà anh Thắng - view 3
Không chỉ đóng phần gỗ tủ bếp acrylic tại Hpro mà gia đình anh Thắng còn sử dụng thêm một số phụ kiện tủ bếp hiện đại, thông minh ở đơn vị chúng tôi như: giá úp bát, giá để xoong nồi, giá dao thớt đa năng, thùng gạo thông minh... Các phụ kiện được thiết kế lắp đặt bên trong tủ bếp giúp gia đình có thể cất giữ đồ 1 cách gọn gàng, ngăn nắp.
Dưới đây là hình ảnh thực tế cho quý khách hàng tham khảo:

Giá úp bát nâng hạ Carymax 100% inox 304 chống han gỉ, oxy hóa, bề mặt sáng bóng mang đến giá trị thẩm mỹ cho tủ.

Giá để xoong nồi 2 tầng Carymax inox 304 sáng bóng, chống han gỉ, oxy hóa

Ảnh thực tế phụ kiện giá dao thớt đa năng Carymax inox sợi Hpro trưng bày tại showroom Trung Kính

Hình ảnh thực bộ tay nâng Blum nâng cánh tủ bếp trên

Hình ảnh thực tế phụ kiện thùng gạo thông minh mặt gương bóng sáng tại Hpro
- Hpro sử dụng 100% cánh acrylic bóng gương của An Cường.
- Hpro tư vấn miễn phí chất liệu, thiết bị - phụ kiện bếp cơ bản cần thiết cho căn bếp hiện đại ngày nay. Nhân viên chúng tôi hỗ trợ bạn tận tâm kể cả ngoài giờ hành chính.
- Đội kỹ thuật về tận nhà khảo sát & đo đạc không gian làm tủ bếp hoàn toàn MIỄN PHÍ.
- Có đội KTS trẻ, năng động, sáng tạo lên bản vẽ thiết kế 3D, 2D tủ bếp đúng theo kích thước và nhu cầu thực tế của gia đình anh Thắng. Và Hpro cũng MIỄN PHÍ hoàn toàn chi phí này.
- Chúng tôi MIỄN PHÍ vận chuyển, thi công lắp đặt tủ bếp tại nhà cho gia đình anh Thắng.
- Chúng tôi bảo hành phần gỗ của tủ trong 2 năm và bảo trì TRỌN ĐỜI.
- Thiết bị, phụ kiện bếp thì được bảo hành theo hãng.
Trêm đây là toàn bộ thông tin về bộ tủ bếp gỗ acrylic TBAC186 của nhà anh Thắng ở Hưng Yên. Bạn có thích phong cách thiết kế này không? Liên hệ ngay với chúng tôi để được sở hữu ngay nhé!
Số Hotline: 090.2222.945 (Mr. Hoàn) - 0917.346.883 (Mr. Nam) - 024.3236.3456 (số máy bàn cố định).
Hệ thống showroom:
Showroom 1: Số 17 Ngõ 40 Trung Kính - Cầu Giấy - Hà Nội
Showroom 2: 509 Nguyễn Văn Cừ - Long Biên - Hà Nội
Showroom 3: 123 đường 25/4 thành phố Hạ Long - Quảng Ninh
Showroom 4: 1328 Hùng Vương - Việt Trì - Phú Thọ
Bài viết xem thêm:
Tủ bếp nhựa acrylic TBAC187 thùng inox cao cấp, bền đẹp nhà chị Ngọc - Hải Phòng
HỎI & ĐÁP
Liên hệ để được tư vấn