




4+
Mã hàng: TBLM05
Số lượng:
Mô tả sản phẩm
Bộ tủ bếp Laminate TBLM05 nhà anh Hoàng - Linh Đàm được đánh giá là bộ tủ hoàn hảo về công năng và thẩm mỹ. Bởi vậy, bộ tủ nhận được sự ưng ý 100% từ phía anh Hoàng - 1 vị khách hàng cũng khá khó tính tại Hpro, bảo hành tủ bếp 2 năm và bảo trì trọn đời. Phụ kiện bếp nhập khẩu cao cấp chiết khấu đến 35%
Được làm từ chất liệu gỗ công nghiệp Laminate sang trọng, hiện đại cùng thiết kế chữ u với bàn đảo tiện dụng. Thiết kế bộ tủ bếp Laminate TBLM05 nhà anh Hoàng - Linh Đàm sẽ là một gợi ý tuyệt vời cho căn hộ sang trọng đang thiếu vắng bóng hình căn bếp gây thương nhớ cho mọi thành viên trong gia đình bạn. Tìm hiểm ngay về bộ tủ bếp này nhé.
Cùng đi sâu tìm hiểu về cấu tạo từ trong ra ngoài của tủ bếp này nhé:

Chất liệu gỗ laminate công nghiệp làm nên diện mạo hoàn hảo cho căn bếp nhà anh Hoàng
Lựa chọn thiết kế với bàn đảo tiện lợi, bộ tủ mang đến một không gian bếp hiện đại hoàn hảo hết nấc. Với bàn đảo này, vợ anh Hoàng có thể sử dụng làm nơi sơ chế thức ăn hoặc làm bàn ăn ngay trong bếp, rất tiện mà không hề tốn diện tích không gian.

Thiết kế 3D hiện đại hết nấc của bộ tủ bếp gỗ Laminate TBLM05 nhà anh Hoàng - Linh Đàm
Tủ bếp Laminate TBLM05 sử dụng màu trắng phối màu vân gỗ nâu mang đến không gian bếp hiện đại lại gần gũi, dễ chịu. Màu trằng + màu vân gỗ là cách kết hợp đơn giản, được ưa chuộng mà không hề mang đến cảm giác nhàm chán bởi với mã màu đa dạng của Laminate thì bạn hoàn toàn yên tâm " không sợ đụng hàng".

Mẫu tủ bếp gỗ Laminate TBLM05 nhà anh Hoàn với thiết kế bàn đảo vô cung tiện lợi
Để tạo nên một căn bếp hiện đại hoàn hảo nhà anh Hoàng phải kể đến sự bố trí khôn khéo và đầy khoa học mà các KTS tại Hpro đã vẽ nên từ bản thiết kế đến thực tế. Dành trọn sự sang - đẹp - tiện và không thể thiếu 2 từ phong thủy. Bóc tách từng chi tiết, cách đặt vị trí từng thiết bị, phụ kiện mà Hpro đã thiết kế riêng cho nhà anh Hoàng để thấy, mọi thứ đều có lý do của nó.

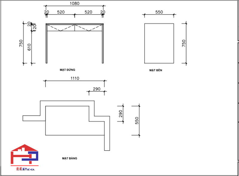
Bản vẽ chi tiết 2d mặt đứng tủ bếp gỗ Laminate TBLM05 nhà anh Hoàng - Linh Đàm - view 1

Bản vẽ chi tiết 2d mặt đứng tủ bếp gỗ Laminate TBLM05 nhà anh Hoàng - Linh Đàm - view 2

Bản vẽ chi tiết 2d mặt đứng tủ bếp gỗ Laminate TBLM05 nhà anh Hoàng - Linh Đàm - view 3
Hpro thiết kế tủ quần áo, tủ giày, kệ tivi, bàn học... cho không gian căn hộ hiện đại nhà anh Hoàng. Vì lẽ đó, gỗ công nghiệp melamine được lựa chọn như một giải pháp hoàn hảo nhất cho không gian, tính thẩm mỹ cũng như giá cả vô cùng dễ chịu. Đây cũng là chất liệu gỗ sử dụng trong nội thất được ưa chuộng nhất trong những năm trở lại đây.

Hpro thiết kế nội thất gỗ melamine nhà anh Hoàng - thiết kế tủ quần áo kết hợp tủ để đồ tiện dụng

Hpro thiết kế nội thất gỗ melamine nhà anh Hoàng - thiết kế kệ tivi

Hpro thiết kế nội thất gỗ melamine nhà anh Hoàng - thiết kế bàn học
Đội ngũ KTS tại Hpro không quá cầu kỳ trong từng bản vẽ mà đề cao tính công năng của sản phẩm và quan trọng phù hợp với không gian và diện tích của nhà Khách hàng. Chính bởi lẽ đó, phong cách hiện đại xuyên suốt từng thiết kế từ phòng bếp, phòng ngủ, phòng khách, tất cả đều rất phù hợp với phong cách hiện đại đơn giản mà anh Hoàng định hướng ngay từ đầu.

Bản vẽ chi tiết 2d tủ quần áo gỗ melamine nhà anh Hoàng - Linh Đàm
Sau khoảng 25 ngày sản xuất kể từ ngày ký hợp đồng, Hpro tiến hành thi công lắp đặt tủ bếp gỗ Laminate TBLM05 và nội thất gỗ Melamine cho nhà anh Hoàng tại P806 N1A Bán đảo Linh Đàm. Dưới đây là một số hình ảnh thực tế chúng tôi đã ghi lại:

Hình ảnh thực tế Hpro đang thi công lắp đặt tủ bếp gỗ Laminate cho nhà anh Hoàng - Linh Đàm

Hình ảnh thực tế Hpro đang thi công lắp đặt tỉ mỉ tủ bếp gỗ Laminate cho nhà anh Hoàng - Linh Đàm

Hình ảnh thực tế kệ tivi gỗ melamine nhà anh Hoàng sau khi hoàn thiện

Hình ảnh thực tế bàn học gỗ Melamine nhà anh Hoàng sau khi hoàn thiện

Hoàn thiện tủ quần áo gỗ melamine cánh trượt kết hợp bàn làm việc tiện dụng
Với chi phí bỏ ra chỉ hơn 60 triệu đồng, anh Hoàng sở hữu căn bếp hiện đại, tiện nghi nhất hiện nay. Sở dĩ có được mức giá tốt như vậy là nhờ sự thông minh ngay từ đầu khi anh Hoàng lựa chọn Hpro làm đơn vị thiết kế và thi công cho gia đình mình. Chẳng những được miễn phí thiết kế bộ tủ mà thiết bị, phụ kiện lựa chọn đều được chiết khấu đến 35% so với giá thị trường. Tham khảo bảng giá chi tiết ngay dưới đây:

Hpro báo giá bộ tủ bếp Laminate TBLM05 nhà anh Hoàng - Linh Đàm

Hpro báo giá nội thất gỗ Melamine cho nhà anh Hoàng
Có thể thấy với nhiều hạng mục như vậy, xong anh Hoàng chỉ phải chi trả một mức giá cực kỳ tốt so với chất lượng. Nếu đang tìm chất liệu cho nội thất gia đình mình, hãy cân nhắc đến Melamine nhé.
Với tổng ngân sách chưa đến 100 triệu, anh Hoàng ngay lập tức sở hữu 1 căn bếp hiện đại, nội thất hoàn mỹ khá ưng ý. Bạn cũng có thể sở hữu điều đó nếu liên hệ ngay với Hpro như cách mà anh Hoàng đã làm qua số Hotline 090.2222.945 (Mr.Hoàn) - 0917.346.883 (Mr.Nam)
Thiết kế và thì công tủ bếp nói riêng và nội thất nói chung tại Hpro giá tốt vì bạn sẽ được rất nhiều ƯU ĐÃI có giá trị:
Hệ thống Showroom Nội thất Hpro:
Showroom 1: 17 Ngõ 40 Trung Kính, Cầu Giấy, Hà Nội (Hotline: 090.2222.945 (Mr.Hoàn) - 0917.346.883 (Mr.Nam))
Showroom 2: 509 Nguyễn Văn Cừ, Long Biên, Hà Nội (Mr.Dũng: 0915.568.933 / Máy cố định: 024.3822.3456)
Showroom 3: 123 đường 25/4 Tp. Hạ Long, Quảng Ninh (Mr.Thìn: 094.170.6668 / Máy cố định: 020.3361.3456)
Showroom 4: 1328 Hùng Vương, Việt Trì, Phú Thọ (Mr.Tùng: 0966.913.777 / Máy cố định: 0210.38.23456)
>>> Tìm hiểu ngay: Tủ bếp gỗ Laminate TBLM06 và nội thất phòng ngủ nhà chị Vân - La Phù - Hoài Đức
HỎI & ĐÁP
Liên hệ để được tư vấn