




4+
Mã hàng: TBLM08
Số lượng:
Mô tả sản phẩm
Tủ bếp gỗ Laminate TBLM08 được thiết kế theo kiểu dáng chữ i tiện dụng, nhỏ gọn được trang bị thiết bị phụ kiện nhập khẩu cao cấp nhất hiện nay. Hpro miễn phí đo đạc khảo sát, miễn phí thi công lắp đặt tại nhà khách hàng
Thừa hưởng trọn vẹn nét đẹp hiện đại trong từng đường nét, bộ tủ bếp laminate TBLM08 chinh phục mọi khách hàng dù ngoại hình có phần nhỏ nhắn. Sở hữu bộ tủ bếp hoàn hảo, nội thất 2 phòng ngủ hiện đại, căn hộ 2 ngủ nhà chị Lâm Anh đang là hình mẫu lý tưởng của nhiều căn hộ hiện nay.
Laminate là chất liệu gỗ công nghiệp được ưa chuộng nhất hiện nay. Sở hữu bề mặt sần có tác dụng chịu lực, chịu nhiệt tốt mang đến độ bền lâu dài cho sản phẩm.

Bộ tủ bếp gỗ Laminate TBLM08 nhà chị Lâm Anh - Xuân La
>>> Cập nhật những mẫu tủ bếp laminate ấn tượng nhất trên thị trường
Bộ tủ bếp dài 3m với thiết kế chữ i gọn gàng, tiện dụng được thiết kế tập chung vào công năng sử dụng. Cách bố tri tuy đơn giản nhưng đầy tinh tế, khéo léo và có sự tính toán cẩn thận của người KTS nhằm mang lại cho gia đình chị Lâm Anh bộ tủ bếp ưng ý nhất.
Mắt thấy tai nghe ngay với những bản vẽ chi tiết 2d dưới đây:
Bản vẽ chi tiết 2d mặt đứng tủ bếp laminate TBLM08 nhà chị Lâm Anh

Bản vẽ chi tiết 2d mặt bằng tủ trên và tủ dưới của bộ tủ bếp laminate TBLM08 nhà chị Lâm Anh
Hpro thiết kế nội thất cho nhà chị Lâm Anh 2 hạng mục: Phòng ngủ master và phòng ngủ cho con.
Cả 2 không gian đều lựa chọn phong cách thiết kế hiện đại, đơn giản nhằm sử dụng tối đa diện tích căn ngủ cho không gian được thoải mái hơn, thông thoáng hơn.
2 phòng ngủ đều được trang bị nội thất cần thiết: Giường tap, tủ áo, bàn học hoặc bàn làm việc và đều được bố trí vị trí hợp lý phù hợp diện tích từng phòng
Sau khi nhận được sự tư vấn từ đội ngũ Hpro, gỗ melamine được chị Lâm Anh lựa chọn cho không gian ngủ nhà mình. Gỗ melamine đẹp, sang, độ bền cao, đa dạng mã màu và quan trọng là giá cả khá bình dân đang được coi là chất liệu nội thất hot nhất hiện nay.
Chị Lâm Anh sở hữu căn ngủ master khá thoáng cộng với thiết kế hiện đại càng khiến căn phòng trở nên rộng hơn, dễ chịu hơn.
Thiết kế hoàn thiện với: Tủ áo 3 cánh, giường ngủ và bàn làm việc:

Thiết kế nội thất phòng ngủ master nhà chị Lâm Anh

Bản vẽ chi tiết 2d bàn làm việc phòng master nhà chị Lâm Anh

Bản vẽ chi tiết 2d giường tap phòng ngủ master nhà chị Lâm Anh

Bản vẽ chi tiết 2d tủ quấn áo phòng ngủ master nhà chị Lâm Anh
Phòng ngủ 2 em nhà chị Lâm Anh được trang bị: Tủ áo âm tường tận dụng và tiết kiệm không gian tối đa, giường ngủ và bàn học kết hợp kệ sách tiện lợi.

Thiết kế nội thất phòng ngủ cho 2 em nhà chị Lâm Anh - view 1

Thiết kế nội thất phòng ngủ cho 2 em nhà chị Lâm Anh - view 2

Bản vẽ chi tiết 2d phòng ngủ 2 em nhà chị Lâm Anh - Xuân La

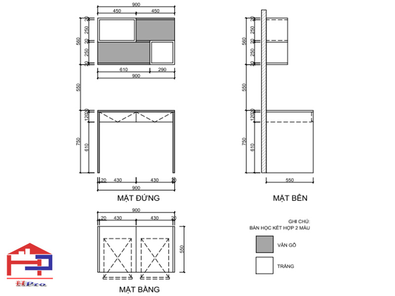
Bản vẽ chi tiết 2d bàn học phòng 2 em nhà chị Lâm Anh

Bản vẽ chi tiết 2d giường tap phòng 2 em

Bản vẽ chi tiết 2d tủ quần áo phòng 2 em
Hpro sản xuất tủ bếp 15 ngày, sản xuất nội thất từ 20 - 25 ngày.
Sau 25 ngày kể từ ngày ký hợp đồng, Hpro tiến hành thi công lắp đặt tủ bếp laminate TBLM08 và nội thất phòng ngủ cho nhà chị Lâm Anh tại P310 Chung cư CT36 Ngõ 28 Xuân La, Tây Hồ.
Xem ngay những hình ảnh thực tế sang - sịn - mịn của công trình nhà chị Lâm Anh ngay sau khi Hpro thi công hoàn thiện:

Hình ảnh thực tế bộ tủ bếp laminate TBLM08 nhà chị Lâm Anh sau khi Hpro thi công hoàn thiện

Hình ảnh thực tế phòng ngủ master nhà chi Lâm Anh khi vừa hoàn thiện xong - view 1

Hình ảnh thực tế nội thất phòng ngủ master nhà chị Lâm Anh - view 2

Hình ảnh thực tế phòng ngủ master nhà chị Lâm Anh - view 3

Hình ảnh thực tế phòng ngủ cho 2 em nhà chị Lâm Anh sau khi Hpro hoàn thiện nội thất - view 1

Hình ảnh thực tế phòng ngủ cho 2 em nhà chị Lâm Anh sau khi Hpro hoàn thiện nội thất - view 2
Với tiêu chí hoàn hảo, chất lượng từ trong ra ngoài chị Lâm Anh ngoài việc chọn cho bộ tủ bếp lớp áo Laminate hoàn hảo thì phụ kiện bếp nhập khẩu là điều không thể thiếu của bộ tủ bếp.
Phụ kiện bếp Carry Max mà chị Lâm Anh lựa chọn là sản phẩm nhập khẩu Đài Loan với chất lượng tốt nhất thị trường hiện nay. Hpro còn là đại lý chính hãng, không qua trung gian đảm bảo cho KH sản phẩm tốt mà giá còn tốt nhất.
Bên cạnh đó Hpro luôn có những ưu đãi đặc biệt dành cho KH của mình. Mỗi tháng chúng tôi đều có chương trình tri ân KH ví dụ như chị Lâm Anh được Hpro TẶNG ngay bộ chậu + vòi rửa Carry Max trị giá 5.000.000đ ngay khi ký hợp đồng. Bởi vậy, bộ tủ bếp Laminate TBLM08 hoàn hảo là vậy nhưng lại có giá cực tốt. Chi tiết tại bảng giá dưới đây:

Giá tủ bếp gỗ Laminate TBLM08 nhà chị Tâm Anh - Xuân La
Với 2 căn ngủ của mình bạn nghĩ chị Lâm Anh đã bỏ ra số tiền lớn?
Với sự lựa chọn thông minh từ chất liệu gỗ đến phong cách thiết kế, chị Lâm Anh sở hữu 2 căn ngủ ưng ý với giá tốt nhất hiện nay, chỉ hơn 38 triệu.

Giá nội thất gỗ melamine nhà chị Lâm Anh - Xuân La
Chị Lâm Anh đã sở hữu căn hộ 2 ngủ hoàn hảo với tủ bếp và nội thất phòng ngủ hiện đại, sang trọng và tiết kiệm chi phí. Đó chẳng phải do sự thông minh của chị khi ngay từ đầu đã tin tưởng và chọn lựa Hpro là đơn vị thiết kế và thi công trọng gói tủ bếp và 2 căn ngủ nhà mình.
Hpro hoàn thiện từng bước cho căn hộ nhà chị Lâm Anh với quy trình làm việc khoa học, minh bạch:
Hpro sở hữu xưởng sản xuất với hệ thống máy móc – thiết bị hiên đại, đội ngũ thợ lâu năm, giàu kinh nghiệm được tuyển chọn kỹ càng. Với diện tích rộng lớn, hệ thống mày móc hiện đại, lượng gỗ lớn và đa dạng mẫu mã xưởng sản xuất đồ gỗ nội thất của nội thất Hpro đáp ứng được mọi yêu cầu về sản phẩm, mẫu mã của khách hàng.
Hệ thống Showroom Hpro trải dài khắp miền Bắc giúp bạn dễ dàng thăm quan và trải nghiệm tiện nghi của bộ tủ bếp. Từ đó giúp bạn đưa ra quyết định mua sắm phù hợp nhất với nhu cầu sử dụng của gia đình.
+ Cơ sở 1: Số 17, ngõ 40 Trung Kính, Cầu Giấy, Hà Nội
+ Cơ sở 2: 509 Nguyễn Văn Cừ, Long Biên, Hà Nội
+ Cơ sở 3: 123 đường 25/4 thành phố Hạ Long, Quảng Ninh
+ Cơ sở 4: 1328 Hùng Vương, Việt Trì, Phú Thọ.
Hotline 090.2222.945 (Mr.Hoàn) - 0917.346.883 (Mr.Nam)
>>> Cũng là 1 mẫu tủ chữ i hoàn hảo: Tủ bếp gỗ Laminate TBLM09 nhà anh Linh - Sông Công - Thái Nguyên
HỎI & ĐÁP
Liên hệ để được tư vấn