




4+
Mã hàng: TBLM14
Số lượng:
Mô tả sản phẩm
Tủ bếp gỗ Laminate TBLM14 là mẫu tủ bếp hiện đại chuẩn nhất cho những căn hộ chung cư, cho cuộc sống hiện nay bởi sự nhỏ gọn, tiện dụng, công năng lại đi kèm yếu tố thẩm mỹ cao. Hpro miễn phí 100% thiết kế tủ bếp chung cư
Thiết kế hài hòa, phong cách hiện đại đơn giản mang đến 1 căn bếp gọn gàng, tiện nghi lại cực kỳ tiết kiệm không gian, tủ bếp gỗ Laminate TBLM14 là mẫu tủ đáng cân nhắc nếu bạn đang tìm 1 mẫu bếp cho căn hộ nhỏ của mình.
Bộ tủ lựa chọn cách phối màu đơn giản, quen thuộc là trắng + vân gỗ mang đến vẻ đẹp vừa hiện đại, vừa sang đầy khí chất cho căn bếp.
Thiết kế bếp theo kiểu dáng chữ i rất phù hợp với căn bếp có diện tích nhỏ trong căn hộ chung cư nhà anh Lực. Ưu điểm nổi bật của tủ bếp chữ i này là: tất cả dụng cụ nấu ăn, các thiết bị, nguyên vật liệu,… nói chung là mọi thứ để phục vụ cho việc nấu ăn đều gần nhau, lấy rất thuận tiện. Thực tế, một số gia đình, dù diện tích nhà không nhỏ nhưng vẫn thiết kế theo kiểu nhà bếp chữ I này vì thích sự gọn gàng cũng như không gian mở của nó.
Thiết kế kịch trần được tận dụng nhiều cho thiết kế chữ i và TBLM14 không phải ngoại lệ. Thiết kế này chỉ phát sinh thêm 1 phần chi phí nhỏ nhưng gia chủ lại có được một không gian bếp có chiều sâu và cái nhìn thoáng đãng. Bên cạnh đó có thể tối đa hóa lưu trữ đồ đạc, thách thức mọi diện tích bếp.
Bản vẽ 3d tủ bếp gỗ Laminate TBLM14 với thiết kế chữ i nhỏ gọn nhà anh Lực

Bản vẽ chi tiết 2d mặt bằng bộ tủ bếp gỗ Laminate TBLM14
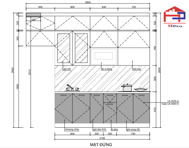
Bản vẽ chi tiết 2d mặt đứng tủ bếp gỗ Laminate TBLM14
>>> Vén màn những mẫu thiết kế tủ bếp gỗ laminate đẹp ấn tượng nhất hiện nay
Sau 15 ngày kể từ ngày ký hợp đồng, đội ngũ Hpro có mặt tại nhà anh Lực tại chung cư Thanh Hà - Hà Đông để tiến hành thi công lắp đặt tủ bếp gỗ Laminate TBLM14 cho nhà anh. Dưới đây là thành quả của quá trình tỷ mỉ, cẩn trọng cùng người thợ cũng như quá trình giám sát chặt chẽ:

Hình ảnh thực tế tủ bếp gỗ Laminate TBLM14 nhà anh Lực sau khi hoàn thiện

Ảnh thực tế tủ bếp trên của bộ tủ bếp gỗ Laminate TBLM14 sau khi hoàn thiện

Bộ tủ bếp Laminate TBLM14 với thiết kế chữ i nhỏ gọn tiện lợi rất phù hợp không gian bếp nhà anh Lực

Bộ tủ bếp hoàn thiện với đầy đủ công năng đáp ứng nhu cầu sử dụng của nhà anh Lực
TBLM14 là mẫu tủ đẹp, hiện đại và rẻ mà chắc chắn ai cũng có thể sở hữu. Anh Lực đã có lựa chọn thông minh về kinh tế khi lựa chọn toàn bộ phụ kiện Hpro sản xuất thay vì những sản phẩm nhập khẩu có giá cao hơn hẳn. Phụ kiện Hpro sản xuất đảm bảo chất lượng và vẻ ngoài đẹp không thua kém đang rất được KH ưa thích lựa chọn.
Dưới đây là báo giá chi tiết bộ tủ bếp gỗ Laminate TBLM14 nhà anh Lực:

Hpro báo giá chi tiết tủ bếp gỗ Laminate TBLM14
Nội thất Hpro là đơn vị có hơn 10 năm kinh nghiệm trong thiết kế thi công nội thất tủ bếp. Trong hơn 10 năm hoạt động với hàng ngàn khách hàng, Hpro luôn mang đến cho khách hàng của mình sự tư vấn chuẩn xác, sự hài lòng từ chất lượng đến giá cả sản phẩm để ai cũng có thể sở hữu bộ tủ bếp mong muốn. Khi trở thành khách hàng tại Hpro, bạn được trải nghiệm dịch vụ bán hàng hoàn hảo của chúng tôi:
+ ĐƯỢC MIỄN PHÍ 100% chi phí khảo sát, đo đạc thực tế tại nhà dù bạn ở đâu thuộc miền Bắc hay một số tỉnh miền Trung như Thanh Hóa, Nghệ An, Hà Tĩnh.
+ ĐƯỢC MIỄN PHÍ bản vẽ thiết kế 2D, 3D dựa trên kích thước không gian bếp và nhu cầu sử dụng của mỗi gia đình. Bản vẽ từ đội ngũ KTS giàu kinh nghiệm sẽ cho quý khách bản vẽ đẹp nhất, phù hợp nhất.
+ MIỄN PHÍ lắp đặt và vận chuyển tận nơi cho KH ở nội thành Hà Nội 40km. Với KH ở tỉnh sẽ chỉ phát sinh chi phí vận chuyển là 15.000đ/km tính từ trung tâm Tp.Hà Nội.
+ Bảo hành bộ tủ bếp gỗ laminate trong 24 tháng. Các thiết bị – phụ kiện bếp khác được bảo hành theo hãng đến 5 năm.
+ Đặc biệt, khi bạn mua phụ kiện - thiết bị bếp nhập khẩu tại Hpro ĐƯỢC chiết khấu lên tới 35%.
Liên hệ ngay: 0902.222.945 (Mr. Hoàn) – 0917.346.883 (Mr. Nam) hoặc đến showroom gần nhất của Hpro để trực tiếp trải nghiệm sản phẩm, được tư vấn và nhận báo giá sơ bộ:
>>> Tham khảo ngay:Tủ bếp gỗ Laminate TBLM15 nhà anh Lộc - N07B3 Dịch Vọng - Cầu Giấy
HỎI & ĐÁP
Liên hệ để được tư vấn