




4+
Mã hàng: TBLM18
Số lượng:
Mô tả sản phẩm
Tủ bếp gỗ Laminate TBLM18 với thiết kế hiện đại kết hợp bàn đảo mang đến không gian bếp mới mẻ, ấn tượng cho nhà anh Hải. Hpro thi công lắp đặt miễn phí tại nhà.
Với thiết kế kèm bàn đảo bắt kịp xu thế hiện nay, tủ bếp gỗ Laminate TBLM18 đang là mẫu tủ được quan tâm nhờ sự hiện đại rất phù hợp với cuộc sống ngày nay. Hpro tự tin mang đến không gian sống thoải mái, hiện đại và tiện nghi cho mọi gia đình Việt.
Tủ bếp gỗ laminate TBLM 18 thiết kế kiểu dáng chữ i với bàn đảo tiện nghi. Thiết kế ăn điểm ở sự kết hợp hài hòa cho không gian bếp nhà anh Hải thêm phần hiện đại, sang trọng.
Bộ tủ bếp còn kết hợp tủ giày gỗ melaminae hiện đại, khéo léo lựa chọn mã màu cùng tone màu với mã laminate của tủ bếp mang đến không gian đồng nhất hài hòa vô cùng.
Nói về màu sắc, tone trắng kết hợp vân gỗ vừa hiện đại, vừa sang mà lại không bao giờ lo lỗi mốt. Đây là cách phối màu đơn giản mà mang đến hiệu quả cao rất được ưa chuộng cho các căn bếp hiện nay. Quả thật, sở hữu hơn 300 mã màu vẫn luôn là điểm mạnh của laminate khiến đây luôn là chất liệu được ưa chuộng nhất làm tủ bếp. Bởi, cũng cách kết hợp đó, màu trắng và vân gỗ nhưng lại rất nhiều mã vân gỗ khác nhau, đường vân khác nhau, đậm nhạt khác nhau tạo ra vô số những phiên bản kết hợp khác nhau khiến tủ bếp mà bạn chọn chẳng bao giờ lo đụng hàng cả.
Bếp kịch trần hiện đang là xu hướng vì lợi ích tuyệt vời mà thiết kế này mang đến và một thiết kế hiện đại như TBLM18 tất nhiên là không thể bỏ qua. Anh Hải nhờ vậy cũng có thêm nhiều không gian chứa đồ giúp căn bếp luôn gọn gàng, ngăn nắp.

Tủ bếp gỗ Laminate TBLM18 với thiết kế hiện đại, tiện nghi
Hoàn thiện bộ tủ bếp TBLM18 chính là bàn đảo hiện đại. Đảo bếp không chỉ là khu vực chuẩn bị, chế biến món ăn mà còn là một phần quan trọng để hoàn thiện phòng bếp. Với lợi ích đa di năng và tiện dụng của đảo bếp giúp cho cuộc sống của gia đình trở nên tiện nghi và hiện đại hơn. Ngoài ra, bạn có thể sử dụng bàn đảo là bàn ăn tiện dụng, trở thành khu vực trò chuyện, ăn uống và giải trí của gia đình, bạn bè.

Thiết kế sang trọng hơn hẳn khi kết hợp bàn đảo tiện dụng
>>> BST những mẫu tủ bếp laminate đẹp đang làm mưa làm gió trên thị trường hiện nay

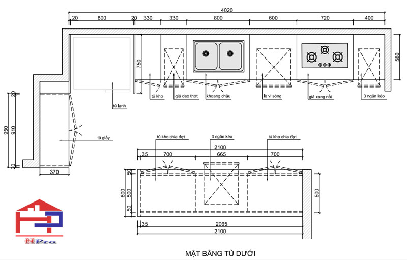
Bản vẽ chi tiết 2d mặt bằng tủ dưới của bộ tủ bếp gỗ Laminate TBLM18 nhà anh Hải

Bản vẽ chi tiết 2d mặt bằng tủ trên của tủ trên của tủ bếp gỗ Laminate TBLM18 nhà anh Hải

Bản vẽ chi tiết 2d mặt đứng của tủ bếp gỗ Laminate TBLM18 anh Hải

Bản vẽ chi tiết 2d bàn đảo tủ bếp gỗ Laminate TBLM18 nhà anh Hải

Bản vẽ 2d tủ giày melamine nhà anh Hải
Sau 15 ngày kể từ ngày ký hợp đồng, Hpro tiến hành thi công lắp đặt tủ bếp gỗ Laminate TBLM18 với bàn đảo và tủ giày hiện đại cho nhà anh Hải tại chung cư Lạc Hồng Westlate, Hồ Tây. Dưới đây là những hình ảnh thực tế ngay sau khi Hpro thi công hoàn thiện:

Hình ảnh thực tế tủ bếp gỗ Laminate TBLM18 nhà anh Hải sau khi hoàn thiện lắp đặt

Bộ tủ bếp gỗ Laminate TBLM18 nhà anh Hải được hoàn thiện với đầy đủ phụ kiện hiện đại, tiện nghi
Hpro luôn công khai, minh bạch giá cả chi tiết từng bộ tủ của khách hàng:
- Thứ nhất, Hpro tự tin cung cấp sản phẩm giá tốt, sản phẩm chất lượng nhất thị trường, ngày càng nhiều khách hàng tìm đến là câu trả lời cho tất cả.
- Thứ 2, Hpro hiểu khách hàng của mình. Giá cả luôn là vấn đề nhạy cảm mà ai cũng quan tâm. Việc minh bạch giá cả từng báo giá giúp khách hàng biết và định hình rõ hơn về chi phí của bộ tủ bếp mà mình muốn. Cộng với sự tư vấn của đội ngũ chuyên nghiệp, không ngạc nhiên khi 100% khách hàng hài lòng về chất lượng, về giá tại Hpro.
Mời bạn xem báo giá chi tiết bộ tủ bếp gỗ laminate TBLM18 tại Hpro:

Hpro báo giá chi tiết tủ bếp gỗ Laminate TBLM18 nhà anh Hải - 1

Hpro báo giá chi tiết tủ bếp gỗ Laminate TBLM18 nhà anh Hải - 2
Ngoài ra, gia đình anh Hải còn nhận được một số ƯU ĐÃI ĐẶC BIỆT chỉ có ở Hpro là:
Hệ thống showroom Hpro:
+ Showroom 1: Số 17 Ngõ 40 Trung Kính, Cầu Giấy, Hà Nội
+ Showroom 2: Số 509 Nguyễn Văn Cừ, Long Biên, Hà Nội
+ Showroom 3: 123 đường 25/4 thành phố Hạ Long, Quảng Ninh
+ Showroom 4: 1328 Hùng Vương, Việt Trì, Phú Thọ.
Hotline: 090.2222.945 (Mr.Hoàn) - 0917.346.883 (Mr.Nam)
>>>> Tham khảo: Tủ bếp gỗ Laminate TBLM19 nhà chị Trang - Ecolife Tố Hữu
HỎI & ĐÁP
Liên hệ để được tư vấn