




4+
Mã hàng: TBLM20
Số lượng:
Mô tả sản phẩm
Acrylic và Laminate là 2 chất liệu gỗ công nghiệp đang rất được ưa chuộng trên thị trường hiện nay. Và sẽ thật là hoàn hảo nếu kết hợp 2 chất liệu này cho bộ tủ bếp hiện đại nhà bạn. Đó cũng chính là cách tủ bếp gỗ laminate TBLM20 kết hợp acrylic được tạo ra. Hpro thiết kế và thi công tủ bếp laminate kết hợp acrylic miễn phí cho tất cả khách hàng.
Laminate là loại vật liệu bề mặt có khả năng chịu trầy xước, va đập cao còn Acrylic lại có vẻ ngoài bóng bẩy vô cùng thẩm mỹ. Nên nếu quá khó để lựa chọn chất liệu cho bộ tủ bếp nhà mình thì cách kết hợp 2 trong 1 là giải pháp tốt nhất cho bạn. Cùng tìm hiểu ngay mẫu tủ bếp gỗ laminate TBLM20 kết hợp acrylic nhà anh Khánh - CC An Bình.
Acrylic nổi trội với những mã màu đơn sắc, bề mặt bóng gương sẽ mang đến tính thẩm mỹ cao và hiệu quả cho không gian. Ngược lại laminate với thế mạnh là mã màu vân gỗ với những đường vân đẹp mắt cùng với khả năng chịu tác động lớn từ bên ngoài. Tủ bếp dưới nơi mà chịu tác động nhiều của ngoại cảnh chính là nơi laminate an cường phát huy được tối đa tác dụng của nó. Còn tủ bếp trên với vẻ đẹp lung linh acrylic sẽ làm căn bếp trở nên tươi sáng hơn hẳn. Tủ bếp TBLM20 được tạo nên với tủ bếp trên và kịch trần là cánh acrylic mã màu trắng hiện đại (Lic01) , tủ bếp dưới laminate mã màu vân gỗ sang trọng (LK4443A) giúp phát huy tối đa lợi thế từng chất liệu cho bộ tủ bếp tận hưởng trọn vẹn vẻ đẹp thẩm mỹ mà còn hiệu quả ở công năng và độ bền.
Thế nên khi lựa chọn bộ tủ bếp kết hợp như TBLM20 hãy chọn acrylic cho tủ bếp trên và lamiante cho tủ bếp dưới. Sự kết hợp hài hòa này đã tạo nên những thiết kế tuyệt vời, khiến căn bếp thêm nổi bật.
Bộ tủ bếp thiết kế đơn giản theo kiểu dáng chữ I nhỏ gọn, tiện lợi rất phù hợp với không gian bếp chung cư nhỏ nhà anh Khánh.
Tủ bếp chữ i được bố trí rất khoa học và hợp lý giúp bạn có thể sử dụng bếp 1 cách nhanh gọn, không mất nhiều thời gian và còn dễ dàng trong việc lau chùi, vệ sinh hàng ngày. Bởi vậy, thiết kế ngày càng được ưa chuộng trong những không gian bếp khiêm tốn về diện tích của các căn nhà phố hay căn hộ chung cư hiện nay.
KTS không quên tận dụng thiêt kế kịch trần hoàn thiện thiện công năng bộ tủ. Nhìn tổng thế, bộ tủ bếp lamiante TBLM20 kết hợp acrylic có vẻ ngoài hiện đại, sang trọng rất bắt mắt chắc chắn sẽ là 1 không gian ấn tượng cho căn hộ nhà anh Khánh.

Tủ bếp gỗ laminate TBLM20 kết hợp acrylic nhà anh Khánh
>>> Không thể bỏ lỡ những mẫu tủ bếp gỗ laminate đẹp đình đám nhất hiện nay!

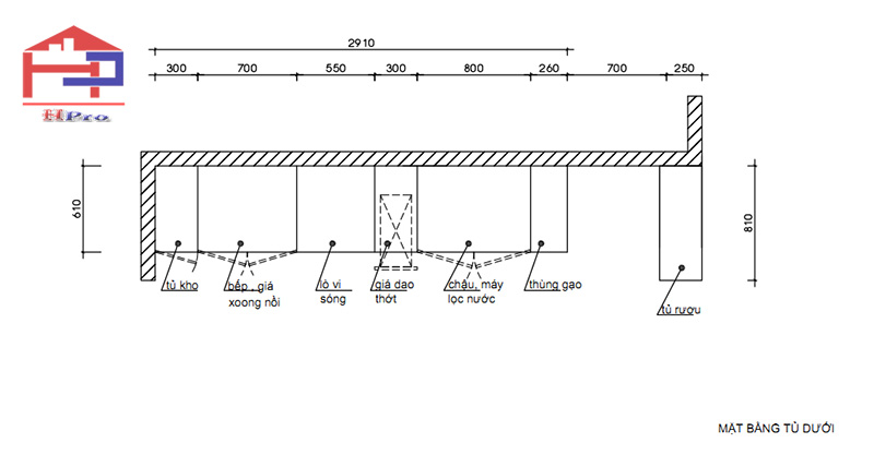
Bản vẽ chi tiết 2d mặt bằng tủ dưới bộ tủ bếp gỗ Laminate TBLM20

Bản vẽ chi tiết 2d mặt bằng tủ trên bộ tủ bếp gỗ laminate TBLM20

Bản vẽ chi tiết 2d mặt bằng tủ kịch trần của tủ bếp gỗ laminate TBLM20
Bản vẽ chi tiết 2d mặt bằng tủ trên bộ tủ bếp gỗ laminate TBLM20

Bản vẽ chi tiết mặt bên tủ bếp gỗ laminate TBLM20

Bản vẽ chi tiết 2d mặt đứng tủ bếp gỗ laminate TBLM20
Tủ rượu được lựa chọn chất liệu gỗ công nghiệp melamine với những ưu điểm vượt trội như tính thẩm mỹ cao và chi phí rẻ. Mã màu được lựa chọn rất hợp với màu tủ bếp mang đến 1 không gian đồng nhất, hài hòa mà vẫn cực kỳ sang.
Tủ rượu được thiết kế hiện đại mang đúng tinh thần của tổng thế thiết kế. Bên cạnh đó còn có vai trò là một vách ngăn nhỏ đầy tinh tế cho phòng bếp với phòng khách tạo nên 1 không gian liên thông rất hợp với diện tích căn hộ.
Thiết kê tủ bếp laminate TBLM20 kết hợp acrylic và tủ rượu hiện đại
Hpro có mặt tại nhà anh Khánh tại chung cư An Bình - Phạm Văn Đồng sau 15 ngày ký hợp đồng để thi công lặp đặt tủ bếp lamiante TBLM20 kết hợp acrylic.
Video công trình tủ bếp nhà anh Khánh
Hình ảnh thực tế tủ bếp gỗ Laminate TBLM20 kết hợp acrylic sau khi hoàn thiện thi công lăp đặt
Bộ tủ bếp hoàn thiện với vẻ ngoài hiện đại, tiện nghi
Hpro báo giá chi tiết bộ tủ bếp laminate TBLM20 kết hợp acrylic và 1 số hạng mục phát sinh nhà anh Khánh:
Hpro báo giá chi tiết tủ bếp gỗ laminate TBLM20 kết hợp acrylic nhà anh Khánh - 1
Hpro báo giá chi tiết tủ bếp gỗ laminate TBLM20 kết hợp acrylic nhà anh Khánh - 2
Anh Khánh rất ưng ý về thẩm mỹ, chất lượng cũng như giá cả của bộ tủ bếp sau khi hoàn thiện. Bộ tủ được đánh giá là có chi phí rất tốt mặc dù anh Khánh đã lựa chọn laminate, acrylic là chất liệu tủ bếp cùng với những thiết bị hiện đại và phụ kiện nhập khẩu tốt nhất hiện nay. Nếu đang yêu thích cả 2 chất liệu công nghiệp này thì đừng chần chừ tạo ra sự kết hợp hoàn hảo này cho không gian bếp nhà ban.
Tuy nhiên dù chất liệu có tốt đến đâu nhưng công nghệ máy móc không đủ thì ưu điểm của vật liệu cũng không phát huy tác dụng. Bởi vậy bạn cần lựa chọn được đơn vị thiết kế và thi công uy tín cho căn bếp nhà mình. Nội thất Hpro chuyên thiết kế và thi công nội thất tủ bếp chuyên nghiệp. Bạn hoàn toàn yên tâm khi đến với chúng tôi.
Khi là khách hàng tại Hpro, bạn được hưởng những ưu đãi sau:
Và rất nhiều Quà Tặng có giá trị khác khi đóng tủ bếp trong những dịp khuyến mại tri ân khách hàng của Hpro.
Đến ngay 1 trong 4 showroom của Hpro được trực tiếp trải nghiệm sản phẩm.
Bạn chỉ cần liên hệ đến Hotline: 090.2222.945 (Mr.Hoàn) - 0917.346.883 (Mr.Nam) - 024.3236.3456 (số mày bàn cố định).
>>> Tham khảo: Tủ bếp gỗ laminate TBLM21 nhà chị Nguyệt - Phùng Chí Kiên
HỎI & ĐÁP
Liên hệ để được tư vấn