


Mã hàng: TBLM37
Số lượng:
Mô tả sản phẩm
Tủ bếp gỗ laminate TBLM37 nhà anh Hậu - An Bình thiết kế chữ L nhỏ gọn, bố trí công năng hoàn hảo. Tủ với khả năng chịu lực, nhiệt, chống trầy xước cực tốt. Độ bền cao, tuổi thọ sử dụng lâu dài.
Bạn sở hữu một căn hộ chung cư ở thành phố? Diện tích không gian bếp hạn chế, nhỏ khiến cho bạn khó khắn trong việc bố trí, sắp xếp đồ dùng, công năng làm sao gọn gàng, tiện nghi mà vẫn mang đến sự thoáng đãng cho căn phòng? Hiểu được nỗi lo đó, hôm nay Hpro xin giới thiệu đến quý khách hàng mẫu tủ bếp gỗ laminate TBLM37 nhà anh Hậu ở An Bình với thiết kế chữ i nhỏ xinh kết hợp hệ tủ trang trí tích hợp để tủ lạnh cực tiện lợi. Cùng xem nhé!
Mặt cánh tủ: Được tạo nên từ code gỗ công nghiệp MDF lõi xanh chống ẩm dày 18mm, nhập khẩu trực tiếp từ Malaysia. Code gỗ với độ cứng chắc chắn được sản xuất trên dây chuyền công nghệ hiện đại đảm bảo gỗ KHÔNG bị cong vênh, co ngót, nứt nẻ trong quá trình sử dụng. Bề mặt bên ngoài cánh được phủ 1 lớp laminate sần chống trầy xước, chịu lực, chịu nhiệt, chống cháy cực tốt. Tủ với mặt cánh phong cách hiện đại không có chi tiết rườm rà giúp cho gia đình dễ vệ sinh, lau chùi.

Ảnh thiết kế 3D tủ bếp gỗ laminate TBLM37 nhà anh Hậu - An Bình
Phần khung thùng tủ bếp: Có cấu tạo code bên trong là MDF lõi xanh chống ẩm được dán phủ bên ngoài là 1 lớp melamine sần chống trầy xước cực tốt. Khả năng chống thấm nước tốt.
Khoang thùng chậu rửa được sử dụng code Picomat siêu bền với khả năng chống nước 100%. Dù nước có bị rò rỉ từ chậu xuống thùng tủ thì cũng không làm ảnh hưởng đến các khoang tủ bên cạnh.
Hậu tủ bếp là hỗn hợp kim nhôm nhựa dẻo Aluminium dày 2,8 - 3mm. Là hợp kim nhựa chống ẩm cực tốt, đảm bảo độ bền cho phần tủ kê sát tường của gia đình
Tủ bếp gỗ laminate TBLM37 nhà anh Hậu được thiết kế theo dáng chữ i kịch trần, tận dụng tối đa diện tích khoảng trống trên cao để lưu trữ đồ đạc, vật dụng 1 cách gọn gàng, ngăn nắp. Kiểu dáng được sử dụng phổ biến ở những căn bếp có diện tích nhỏ, căn hộ chung cư với ưu điểm là các công năng được bố trí sắp xếp gần nhau. Giúp cho chị nhà anh Hậu thuận tiện trong quá trình nấu nướng, mọi thao tác đều trong tầm tay với không phải di chuyển nhiều sang khu vực khác.

Tủ bếp với gam màu nhẹ nhàng, thanh lịch mang vẻ đẹp hiện đại cho không gian bếp
1 điểm nhấn, nét đặc biệt trong thiết kế của căn hộ nhà anh Hậu là phần gờ tường cạnh cửa ra vào đội KTS Hpro đã thiết kế khoang tủ để tủ lạnh kết hợp những hộc để đồ trang trí cực đẹp, hiện đại. Điểm nhấn thu hút người đối diện, khách ghé thăm ngôi nhà của gia đình.
Bộ tủ gỗ laminate sử dụng kết hợp 3 gam màu: trắng, vân gỗ mộc mạc cùng xám nhạt tất cả tạo nên 1 vẻ đẹp hiện đại, tinh tế, sang cho không gian căn hộ nhà bạn. Màu sắc này còn góp phần tạo cảm giác thoáng đãng, rộng rãi, nới rộng diện tích hơn so với thực tế.

Ảnh thiết kế 2D mặt đứng A tủ bếp gỗ laminate TBLM37 nhà anh Hậu - An Bình
Tủ bếp trên anh Hậu lựa chọn kiểu cánh vát chéo góc 45 độ hiện đại, không gây vướng víu cho người sử dụng khi nấu ăn. Tủ dưới thì lắp thêm tay nắm inox hình chữ u hỗ trợ gia đình đóng/kéo mở tủ 1 cách tiện lợi. Tủ chữ i nhưng được phân chia thành 2 khu vực rõ ràng: chuẩn bị đồ có chậu rửa và khu vực nấu chính có bếp từ nấu. Và hệ thống máy hút mùi âm tủ công suất lớn giúp đẩy mùi thức ăn, dầu mỡ ám trong phòng.
Ngoài thiết bị đó thì gia đình anh Hậu còn sử dụng thêm một số phụ kiện bếp hiện đại, tiện nghi khác như: giá úp bát, giá để xoong nồi, giá dao thớt,...
Mặt đá bếp dưới là đá granite màu đen kim sa trung sang trọng, độ cứng chắc chống trầy xước, chịu lực nhiệt cực tốt. Kính ốp bếp màu xanh nhạt bóng gương cũng làm tăng độ sáng cho căn bếp của gia đình.

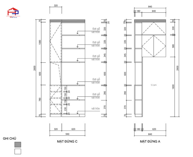
Ảnh chi tiết kích thước khoang tủ lạnh, hệ trang trí gần cửa ra vào của nhà anh Hậu ở An Bình

Bản vẽ 2D mặt bằng tủ bếp trên của nhà anh Hậu ở An Bình

Bản vẽ 2D chi tiết mặt bằng tủ kịch trần của nhà anh Hậu ở An Bình

Chi tiết kích thước tủ bếp dưới của nhà anh Hậu - An Bình
Tủ bếp gỗ laminate tại Hpro hiện có đơn giá là: 4.400.000đ/m dài (giá bao gồm gỗ làm tủ bếp trên + dưới cao tiêu chuẩn 225cm).

Bảng báo giá tủ bếp Laminate An Cường chống xước tại Nội Thất Hpro
Tuy nhiên, bộ tủ bếp laminate TBLM37 nhà anh Hậu - An Bình có thiết kế thêm phần tủ kịch trần chiều cao vượt tiêu chuẩn 225cm nên giá bộ tủ bếp lamiante nhà anh Hậu phát sinh thêm giá cho phần kệ tủ kịch trần đó.
Nhìn vào 3D bạn cũng dễ dàng thấy được rằng phần phát sinh tủ kịch trần cao gần bằng kích thước tiêu chuẩn của tủ bếp trên. Do vậy, giá cho phần tủ phát sinh sẽ tính là: 1/4 *4.400.000 = 1.100.000/m dài.
Vậy, đơn giá tính theo mét dài của bộ tủ bếp laminate TBLM37 nhà anh Hậu - An Bình là: 4.400.000 + 1.100.000 = 5.500.000m/dài
Lưu ý: Giá này chưa bao gồm các thiết bị - phụ kiện tủ bếp cơ bản trong hệ tủ bếp như: bản lề, ray ngăn kéo, tay nắm,...
- MIỄN PHÍ tư vấn, đo đạc, khảo sát tận nơi.
- Thiết kế phối cảnh 3D hoàn toàn MIỄN PHÍ. KTS Hpro sẵn sàng chỉnh sửa thiết kế đến khi khách hàng cảm thấy ưng ý nhất.
- MIỄN PHÍ vận chuyển sản phẩm tủ bếp đến tận nơi cho nhà anh Hậu ở An Bình, quanh nội thành Hà Nội.
- MIỄN PHÍ thi công lắp đặt tại nhà. Lắp đặt hoàn thiện chuẩn theo thiết kế 3D và chi tiết 2D, đảm bảo tính thẩm mỹ cho không gian bếp.
- Chiết khấu đến 35% phụ kiện - thiết bị bếp nhập khẩu cao cấp.
- Bảo hành phần gỗ trong 2 năm. Bảo trì TRỌN ĐỜI.
- Showroom Hpro được đầu tư trang trí và luôn cập nhật xu hướng thiết kế mới nhất. Hệ thống Showroom trải dài khắp miền Bắc, Quý khách hãy ghé Showroom gần nhất để chiêm ngưỡng và trải nghiệm không gian sống tiện nghi.
Showroom Hpro 1: Số 17, ngõ 40 Trung Kính, Cầu Giấy, Hà Nội
Showroom Hpro 2: 509 Nguyễn Văn Cừ, Long Biên, Hà Nội
Showroom Hpro 3: 123 đường 25/4 Tp. Hạ Long, Quảng Ninh
Showroom Hpro 4: 1328 Hùng Vương, Việt Trì, Phú Thọ.
Liên hệ Hotline tư vấn, báo giá và đặt lịch đo đạc nhanh chóng nhất: 090.2222.945 (Mr. Hoàn) - 0917.346.883 (Mr. Nam) - 024.3236.3456 (số máy bàn cố định).
Xem thêm: Tủ bếp laminate TBLM38 nhà cô Tân - Trung Kính khung thùng inox 304 cao cấp, bền vượt thời gian.
HỎI & ĐÁP
Liên hệ để được tư vấn