




4+
Mã hàng: TBOC02
Số lượng:
Mô tả sản phẩm
Tủ bếp óc chó TBOC02 nhà anh Tuấn - Thị xã Phú Thọ được thiết kế theo phong cách tân cổ điển kết hợp quầy ba chữ I sang trọng. Cam kết 100% gỗ nhập khẩu tại Bắc Mỹ. Miễn phí thi công, thiết kế, lắp đặt.
Nói đến Gỗ hạng sang không thể không nhắc đến gỗ óc chó Bắc Mỹ (đây là nơi sản sinh ra loại gỗ óc chó có chất lượng tốt nhất thế giới), Hpro đã mang loại gỗ quý này vào trong gian bếp của gia đình anh Tuấn ở thị xã Phú Thọ. Anh Tuấn lựa chọn thiết kế tủ bếp nhà mình theo phong cách tân cổ điển sang trọng và lịch sự, mời bạn cùng tham khảo!
- Hpro nhập khẩu chính ngạch gỗ óc chó từ Bắc Mỹ, loại gỗ óc chó tốt nhất trên thị trường Việt Nam hiện nay. Gỗ nhập về đã được tẩm, sấy đạt tiêu chuẩn Châu Âu cực kỳ khắt khe. Loại trừ hoàn toàn các trường cong, vênh, móp méo, hạn chế tối đa các bệnh của gỗ như mối mọt hay nấm mốc.
- Chất gỗ cứng, màu đẹp, vân gỗ nhẹ nhàng bắt mắt.

Hình ảnh thiết kế bộ tủ bếp gỗ óc chó TBOC02 nhà anh Tuấn - Thị Xã Phú Thọ
- Một căn phòng sáng như bếp nhà anh Tuấn việc chọn chất liệu gỗ óc chó, màu ánh tím đỏ có sọc sậm, đường vân nhẹ nhàng, cùng với thiết kế tân cổ điểm điểm nhấn là máy hút mùi hình ống khói đúng phong cách Châu ÂU tạo sức hút mạnh mẽ khó có thể rời mắt.
- Gian bếp của anh Tuấn khá rộng rãi rất thích hợp với tủ bếp kiểu chữ L to, thêm một tủ rượu trang trí chữ I vô cùng ấn tượng và đẹp mắt, với giá treo linh phản chiếu ánh đèn như một giàn pha lê càng tạo điểm nhấn cho gian bếp.

Tủ bếp gỗ óc chó TBOC02 hình chữ L nhà anh Tuấn - Thị Xã Phú Thọ
- Bên trên mặt tủ màu ánh tím đỏ là mặt đá Marble màu trắng vân mây nổi bật, kính cường lực Temper ốp bếp màu ghi sáng có khả năng chịu nhiệt, chịu lực tốt. Rất dễ vệ sinh, lau dọn sau quá trình nấu ăn, giữ căn bếp luôn sáng đẹp.
- Tủ lạnh được đặt riêng một ngăn trong tủ bếp, bên trên là hộc âm để đồ, cạnh là tủ kho 6 tầng có thể đặt chậu cảnh, vật trang trí tăng thêm sức sống, sự tươi trẻ cho căn bếp.

Hình ảnh tủ bếp gỗ óc chó TBOC02 nhà anh Tuấn - Thị Xã Phú Thọ
- Cạnh chữ L còn lại của tủ bếp được bố trí vòi rửa, chậu rửa inox 2 ngăn tiện lợi, ngay bên trên là kệ úp bát 2 tầng rất gọn gàng, ngăn nắp. Bên cạnh đó là kệ dao thớt đa năng và thùng gạo thông minh có thể đựng tối đa 15kg gạo đảm bảo an toàn khỏi mối mọt, nấm mốc.
>>> Xem ngay: Các mẫu tủ bếp gỗ óc chó đẹp nhất của Hpro
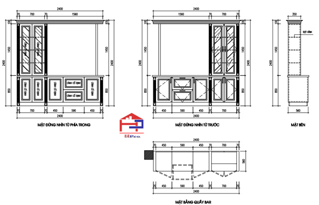
Hình ảnh bản vẽ thiết kế 2D tủ bếp óc chó TBOC02 nhà anh Tuấn - thị xã Phú Thọ

Thiết kế 2D tủ bếp gỗ óc chó TBOC02 nhà anh Tuấn - Thị Xã Phú Thọ
Hình ảnh thiết kế 2D tủ bếp gỗ óc chó TBOC02 nhà anh Tuấn - Thị Xã Phú Thọ
Thiết kế 2D tủ bếp gỗ óc chó TBOC02 nhà anh Tuấn - Thị Xã Phú Thọ
Hình ảnh thiết kế tủ bếp gỗ óc chó TBOC02 nhà anh Tuấn - Thị Xã Phú Thọ
Hpro thực hiện đo đạc, thi công lắp đặt tủ bếp óc chó TBOC02 cho gia đình anh Tuấn chỉ vẻn vẹn trong 15 ngày( kể từ ngày ký hết hợp đồng), với sự tận tâm, nhiệt tình làm việc của anh em nhân viên Hpro anh Tuấn rất hài lòng chia sẻ ngay tủ bếp nhà mình với bạn bè.
Dưới đây là hình ảnh thực tế tủ bếp gỗ óc chó TBOC02 nhà anh Tuấn - thị xã Phú Thọ sau khi hoàn thiện.
- Thiết kế hộc đặt tủ lạnh tinh tế bên trong tủ bếp gỗ óc chó TBOC02 nhà anh Tuấn - Thị Xã Phú Thọ.

Thi công tủ bếp gỗ óc chó TBOC02 nhà anh Tuấn - Thị Xã Phú Thọ

Thiết kế hộc để tủ lạnh cho tủ bếp TBOC02 nhà anh Tuấn - Thị Xã Phú Thọ
- Lắp đặt máy hút mùi hình ống khói đây là một điểm nhấn trong thiết kế tủ bếp gỗ óc chó TBOC02 nhà anh Tuấn - Thị Xã Phú Thọ

Máy hút mùi hình ống khói của tủ bếp gỗ óc chó TBOC02 nhà anh Tuấn - Thị Xã Phú Thọ
- Nhân viên Hpro thi công lắp đặt tủ bếp gỗ óc chó TBOC02 nhà anh Tuấn - Thị Xã Phú Thọ rất cẩn thận, tỉ mỉ

Nhân viên Hpro lắp đặt tủ bếp gỗ óc chó TBOC02 nhà anh Tuấn - Thị Xã Phú Thọ một cách tỉ mỉ, cẩn thận
Tủ bếp óc chó TBOC02 nhà anh Tuấn được thiết kế với chiều cao tiêu chuẩn là 225cm có giá là 13.500.000đ/m dài đã bao gồm phần tủ bếp trên và tủ bếp dưới cũng như tay nắm, răy ngăn kéo, bản lề tiêu chuẩn.
Dưới đấy là bảng báo giá chi tiết tủ bếp óc cho TBOC02 nhà anh Tuấn - thị xã Phú Thọ

Bảng báo giá tủ bếp gỗ óc chó TBOC02 nhà anh Tuấn - Thị Xã Phú Thọ

Bảng báo giá tủ bếp gỗ óc chó TBOC02 nhà anh Tuấn - Thị Xã Phú Thọ
- Ngoài ra anh Tuấn còn sử dụng một số thiết bị - phụ kiện khác: Bếp từ, lò vi sóng, lò nướng, máy hút mùi, chậu rửa, vòi rửa của Hpro. Các thiết bị trên đều được Hpro bảo hành chính hãng, thời gian bảo hành như các siêu thị điện máy khác trên thị trường nhưng:
+ Thiết bị được bảo hành cùng với tủ bếp không mất công ghi nhớ thêm đơn vị khác
+ Hưởng giá ưu đãi chỉ có tại Hpro
+ Hpro là một đơn vị có tầm có kinh nghiệm. Nội thất Hpro là đơn vị có hơn 10 năm kinh nghiệm trong thiết kế và thi công nội thất như tủ bếp, tủ quần áo, bàn ghế,....Suốt chặng đường hơn 10 năm phục vụ khách hàng, Hpro luôn cố gắng tận tâm, thực hiện mọi mong muốn của khách hàng một cách tốt nhất.
+ MIỄN PHÍ khảo sát, đo đạc tận nơi. Hpro nhận thi công trên toàn miền Bắc và một số tỉnh miền Trung như: Thanh Hóa, Nghệ An, Hà Tĩnh. Bạn yên tâm rằng đội ngũ kỹ thuật Hpro vẫn sẵn sàng đến tận nơi tư vấn, đo đạc và lắp đặt cho bạn hoàn toàn miễn phí.
+ MIỄN PHÍ thiết kế 3D, 2D tủ bếp dựa trên kích thước thực tế, nhu cầu của chủ nhà. KTS Hpro luôn lắng nghe nhu cầu chủ nhà và am hiểu về phong thủy. Tư vấn cho khách hàng bố trí tủ bếp hợp theo phong thủy, đáp ứng công năng sử dụng của gia đình. Hpro sẵn sàng chỉnh sửa thiết kế đến khi nào bạn cảm thấy ưng ý nhất.
+ MIỄN PHÍ vận chuyển trong nội thành Hà Nội 40km. KH ở ngoại tỉnh phát sinh phí vận chuyển là 15.000đ/km tính từ trung tâm Tp.Hà Nội.
+ MIỄN PHÍ thi công tại nhà cho tất cả khách hàng dù bạn ở đâu thuộc miền Bắc và khu vực bắc miền trung.
+ Tủ bếp được bảo hành trong 2 năm.
+ Bảo trì vĩnh viễn.
+ Đặc biệt, Quý khách có thể về tận xưởng sản xuất Hpro để kiểm tra chất lượng gỗ, xem quy trình sản xuất trước khi Hpro thi công lắp đặt cho gia đình bạn. Địa chỉ xưởng sản xuất Hpro: Đội 5 Hát Môn, Phúc Thọ, Hà Nội.
Xem tận mắt quy trình sản xuất tủ bếp gỗ óc chó tại Xưởng gỗ Hpro
+ Nội thất Hpro có 4 Showroom trải khắp khu vực miền Bắc. Điều này mang đến cho khách hàng trải nghiệm những bộ tủ bếp mẫu phong phú đa dạng theo từng mẫu nhà khác nhau, "xem tận mắt, sờ tận tay" các thiết bị - phụ kiện nhà bếp thông minh.
Địa chỉ Showroom Hpro:
>>> Xem ngay: mẫu tủ bếp gỗ óc chó TBOC03 nhà chị Hiền - Mỹ Hào, Hưng Yên.
HỎI & ĐÁP
Liên hệ để được tư vấn