




4+
Mã hàng: TBSN45
Số lượng:
Mô tả sản phẩm
Mẫu tủ bếp gỗ Sồi Nga nhà anh Hiệu - Hải Dương được thiết kế kiểu dáng chữ L, phong cách hiện đại, chất liệu gỗ Sồi Nga tự nhiên đơn giản nhưng phù hợp với nhiều không gian bếp khác nhau. Đặc biệt, gỗ sồi nhẹ, cứng chắc, đảm bảo độ bền ổn định. Nội thất Hpro bảo hành 2 năm, bảo trì trọn đời.
Bạn đang tìm kiếm một mẫu tủ bếp gỗ tự nhiên với giá cả phải chăng và chất lượng tốt thì không nên bỏ qua chất liệu gỗ sồi nga, xoan đào, sồi mỹ. Với mức giá cực kỳ hợp lý và chất lượng tốt sẽ mang lại cho gia đình bạn một không gian bếp sang trọng. Cùng nội thất Hpro khám phá mẫu tủ bếp gỗ Sồi Nga TBSN45 nhà anh Hiệu - Hải Dương dưới đây nhé!
Tủ bếp gỗ sồi nga TBSN45 khung thùng inoc 304 nhà anh Hiệu - Hải Dương được thiết kế theo phong cách chữ L, nhỏ gọn đơn giản phù hợp với mọi không gian bếp. Tủ bếp gỗ sồi nga sơn bóng giúp lộ rõ đường vân tự nhiên mang đến cảm giác thiên nhiên, ấm cúm, sang trọng. Không gian bếp được sắp xếp khoa học, các khu vực bếp được bố trí hợp phong thủy và thuận tiện nhất cho việc nấu nướng.

Hình ảnh thực tế tủ bếp gỗ sồi nga nhà anh Hiệu - Hải Dương
Tủ bếp TBSN45 được trang bị đầy đủ phụ kiện tủ bếp thông minh như: giá úp bát nâng hạ Eurogold, tay nâng thủy lực, giá xoong nồi, giá dao thớt, giá gia vị, máy rửa bát, thùng gạo thông minh, bản lề, ray giảm chấn.

Bộ tủ bếp TBSN45 được lắp đặt đầy đủ phụ kiện tủ bếp thông minh
Chi tiết bản thiết kế 3D và 2D bộ tủ bếp gỗ sồi nga nhà anh Hiệu - Hải Dương:

Ảnh thiết kế 3D tủ bếp gỗ sồi nga nhà anh Hiệu - View 1

Ảnh thiết kế 3D tủ bếp gỗ sồi nga nhà anh Hiệu - View 2

Ảnh thiết kế 2D mặt bằng tủ bếp trên TBSN45 nhà anh Hiệu - Hải Dương

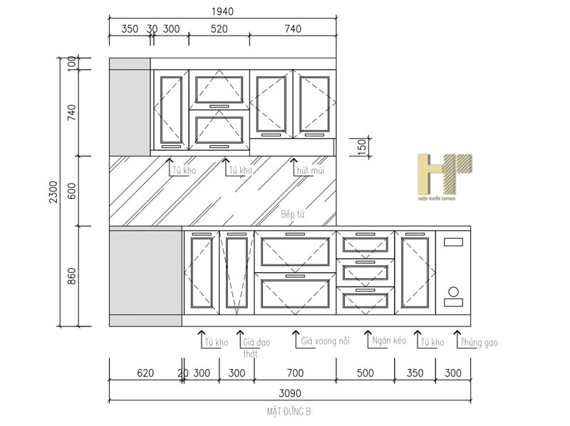
Ảnh thiết kế 2D mặt đứng B TBSN45 nhà anh Hiệu - Hải Dương

Ảnh thiết kế 2D mặt bằng tủ bếp dưới TBSN45 nhà anh Hiệu - Hải Dương

Ảnh thiết kế 2D mặt đứng A TBSN45 nhà anh Hiệu - Hải Dương

Tủ bếp gỗ sồi nga nhà anh Hiệu - Hải Dương sau khi hoàn thiện

Tủ bếp dưới được thiết kế với nhiều tủ nhỏ cho gia chủ dễ dàng phân chia khu vực để đồ đạc

Khu vực bếp, chậu rửa, chế biến bố trí khoa học, hợp phong thủy

Máy rửa bát lắp đạt ngay cạnh chậu rửa

Tủ bếp gỗ sồi Nga với chiều cao tiêu chuẩn 225cm phù hợp với người Việt

Bề mặt gỗ sơn bóng vân gỗ tự nhiên đẹp mắt

Tay nắm inox đũa chống han gỉ

Tủ bếp TBSN45 màu cánh dán sáng tự nhiên mang đến không gian ấm cúm cho căn bếp

Lắp đặt đầy đủ kệ giá nơi cất đồ dùng trong bếp tiện dụng

Toàn bộ giá inox 304 cao cấp bảo hành trọn đời

Gỗ tự nhiên sồi nga qua xử lý nghiêm ngặt chống ẩm cong vênh, co ngót trong mọi điều kiện

Giá úp bát nâng hạ Eurogold thông minh

Kệ gia vị vô cùng tiện lợi

Mặt bàn đá kim sa Ấn Độ dày 18mm khổ 65cm

Khu vực phòng bếp được thiết kế cửa sổ giúp không gian bếp thông thoáng

Bảng giá bộ tủ bếp gỗ sồi nga TBSN45 nhà anh Hiệu - View 1

Bảng giá bộ tủ bếp gỗ sồi nga TBSN45 nhà anh Hiệu - View 2

Bảng giá bộ tủ bếp gỗ sồi nga TBSN45 nhà anh Hiệu - View 3
>>>Tham khảo thêm Hoàn thiện bộ tủ bếp gỗ Sồi Nga TBSN44 sơn Inchem trắng nhà anh Linh - Hưng Yên
HỎI & ĐÁP
Liên hệ để được tư vấn