




4+
Mã hàng: TBXD10
Số lượng:
Mô tả sản phẩm
Tủ bếp gỗ xoan đào TBXD10 và nội thất phòng khách nhà anh Việt được coi là 1 công trình nổi bật. Thiết kế hiện đại với tone màu cánh dán đặc trưng của gỗ xoan đào mang đến không gian vừa ấm cúng vừa sang trọng cho nhà anh Việt. Hpro thiết kế và thi công trọn gói là chìa khóa mang đến vẻ đẹp hoàn mỹ cho không gian nhà bạn.
Là một tín đồ của gỗ xoan đào nên việc anh Việt lựa chọn đây là chất liệu nội thất nhà mình là điều tất nhiên. Cũng bởi thế nên anh Việt càng có sự lựa chọn kỹ càng và khắt khe về chất lượng của gỗ. Gỗ xoan đào Hoàng Anh Gia Lai tại Hpro là lựa chọn cuối cùng của anh Việt. Bộ tủ bếp gỗ xoan đào TBXD10 và nội thất phòng khách nhà anh là thành quả của sự lựa chọn sáng suốt đó. Cùng Hpro bước vào không gian nhà anh Việt tại Thanh Hóa để trải nghiệm nhé.
Video công trình nhà anh Việt - Thanh Hóa
Yêu thích vẻ đẹp ấm cũng vẫn đầy sang trọng của gỗ tự nhiên, anh Việt lựa chọn gỗ xoan đào Hoàng Anh Gia Lai cho cả 2 hạng mục tủ bếp và phòng khách nhà mình.
Chất liệu gỗ xoan đào Hoàng Anh Gia Lai tại Hpro nhập khẩu trực tiếp tập đoàn HAGL, đã được tẩm sấy theo tiêu chuẩn công nghệ hiện đại nhất hiện nay có khả năng chống ẩm, chống cong vênh, co ngót, nứt nẻ và chống mọt tốt mang đến không gian bếp, không gian phòng khách hoàn hảo cho nhà anh Việt.
Không gian phòng khách rộng rãi được bố trí kệ tivi kết hợp vách trang trí, ghế sofa, bàn trà. Thiết kế mang phong cách hiện đại, đơn giản, cách bài trí không gian phân chia rõ ràng hài hòa tạo nên một tổng thể cân đối rất vừa vặn.
Gỗ xoan đào tự nhiên màu cánh gián kết hợp sơn trắng tạo điểm nhấn sang trọng, bắt mắt cho không gian phòng khách. Phòng khách vừa hiện đại, tinh tế lại tiết kiệm được diện tích và không gian tươi mới, khẳng định được cá tính của chủ gia đình.
Thiết kế nội thất phòng khách nhà anh Việt - view 1
Thiết kế nội thất phòng khách nhà anh Việt - view 2
Bản vẽ chi tiết nội thất trong phòng khách nhà anh Việt:
Bản vẽ chi tiết bàn trà nhà anh Việt
Bản vẽ chi tiết kệ tivi nhà anh Việt
Bản vẽ chi tiết sofa nhà anh Việt
Bộ tủ bếp gỗ xoan đào TBXD10 nhà anh Việt được sơn PU cao cấp màu cánh dán đặc trưng của gỗ xoan đào mang đến không gian bếp gần gũi, thân thuộc mà hiện đại, bền chắc vô cùng nhở sử dụng 100% gỗ xoan đào HAGL không pha tạp chất.
Hậu tủ sử dụng chất liệu hợp chất nhựa kim loại Aluminium có khả năng chống ẩm chống nước tuyệt đối, bảo vệ tủ bếp khỏi tình trạng ẩm mốc khi thời tiết thay đổi, phù hợp với khí hậu nóng ẩm Việt Nam.
Tủ bếp gỗ xoan đào TBXD10 với thiết kế hiện đại, sang trọng
Tận dụng lợi thế không gian, tủ bếp TBXD09 thiết kế chữ L có quầy bar sang trọng kết hợp tủ rượu tiện dụng mang đến không gian hiện đại, sang trọng cực kỳ mà vẫn giữ được thần thái thân thuộc ấm áp mà chất liệu gỗ xoan đào cùng mà cánh dán đặc trưng mang lại. Thiết kế quầy bar hiện đại mang đến một không gian thư giãn thoải mái để bạn có thể ngồi nghỉ chân, uống một ly nước mát….nơi ngồi chill, thư giãn cùng bạn bè hay các thành viên trong gia đình sau những giờ làm việc mệt mỏi. Bên cạnh đó, tủ rượu được thiết kế thông minh tận dụng không gian góc dưới gầm cầu thang. Cách xử lý tinh tế, khéo léo này mang lại sự tiện nghi, hiệu quả sử dụng cao cho căn bếp nhà anh Việt.
Thiết kế chữ L kết hợp tủ rượu màn đến không gian bếp tiện nghi
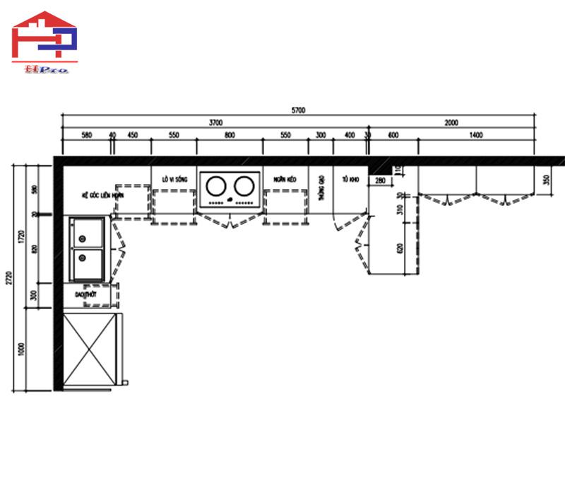
Thiết kế tủ bếp chữ L chưa bao giờ khiến người ta thất vọng về sự linh hoạt, tính ứng dụng cao cũng như ý nghĩa phong thủy mang đến. Xem cách bố trí bếp hoàn hảo nhờ thiết kế chữ L với những bản vẽ chi tiết 2d ngay dưới đây:
Bản vẽ chi tiết 2d mặt bằng tủ dưới tủ bếp gỗ xoan đào TBXD10
Bản vẽ chi tiết 2d mặt bằng tủ bếp trên bộ tủ bếp gỗ xoan đào TBXD10
Bản vẽ chi tiết mặt đứng 1 tủ bếp gỗ xoan đào TBXD10
Bản vẽ chi tiết 2d mặt đứng 2 tủ bếp gỗ xoan đào TBXD10
Bản vẽ chi tiết 2d quầy bar của bộ tủ bếp gỗ xoan đào TBXD10
>>> Tuyển chọn những mẫu thiết kế tủ bếp xoan đào ấn tượng nhất hiện nay.
Sau khoảng 15 ngày kể từ khi kí kết hợp đồng thi công, Hpro tiến hành lắp đặt tủ bếp gỗ xoan đào TBXD10 và nội thất phòng khách gỗ xoan đào tự nhiên nhà anh Việt tại Như Xuân, Thanh Hóa. Dưới đây là hình ảnh thực tế toàn bộ công trình:
Hình ảnh thực tế tủ bếp gỗ xoan đào TBXD10 kết hợp quầy bar, tủ rượu nhà anh Việt sau khi hoàn thiện
TBXD10 hoàn thiện với thiết kế hiện đại, đầy đủ tiện nghi
Bộ tủ bếp gỗ xoan đào TBXD10 được anh Việt đầu tư phụ kiện thiết bị tốt nhất hiện nay
Không gian bếp hiện đại ngay sau khi sở hữu bộ tủ bếp TBXD10
Gỗ xoan đào Hoàng Anh Gia Lai mang đến vẻ đẹp hoàn hảo cho bộ tủ TBXD10
Ảnh thực tế kệ tivi gỗ xoan đào tự nhiên kết hợp gỗ công nghiệp mdf lõi xanh chống ẩm An Cường nhà anh Việt sau khi hoàn thiện
Hình ảnh thực tế sofa và bàn trà gỗ xoan đào tự nhiên kết hợp gỗ công nghiệp mdf lõi xanh chống ẩm An Cường sau khi hoàn thiện
Anh Việt đã phải chi trả bao nhiêu để sở hữu 2 không gian hoàn hảo trên có lẽ là điều bạn đang quan tâm. Hpro minh bạch báo giá của mọi khách hàng. Thay vì báo giá chung chung, Hpro báo giá từ 1 chiếc bản lề đủ thấy sự chuyên nghiệp, tác phong làm việc chuyên nghiệp mà chắc chắn bạn khó có thể tìm kiếm ở bất kỳ đơn vị nào trên thị trường hiện nay. Mời bạn tham khảo báo giá chi tiết công trình nhà anh Việt:
Hpro báo giá chi tiết tủ bếp gỗ xoan đào TBXD10 nhà anh Việt
Hpro báo giá chi tiết nội thất phòng khách nhà anh Việt
Hpro tự tin về chất lượng sản phẩm cũng như cung cấp cho KH của mình giá cả tốt nhất trên thị trường. Hpro có xưởng sản xuất, KH mua tủ bếp trực tiếp không qua trung gian. Hpro không mất quá nhiều chi phí quảng cáo bởi khách hàng giới thiệu khá nhiều do làm việc chất lượng uy tín. Tất cả thể hiện cái Tâm và cái Tầm của một đơn vị Nội Thất uy tín hơn 10 năm.
Anh Việt ký hợp đồng làm tủ bếp TBXD10 trong thời gian Hpro tri ân KH, được tặng bộ giá úp bát thông minh Carry Max nhập khẩu Đài Loan trị giá 5.300.000đ. Bạn thấy đấy, làm tủ bếp và nội thất với giá tốt lại còn được khuyến mại thêm bộ giá bát nâng hạ cực kỳ "sịn sò", chả vậy mà anh Việt rất ưng ý và hài lòng.
Giá úp bát thông minh CaryMax
Đặc biệt, khi đóng tủ bếp tại Nội Thất Hpro. KH còn nhận được một số ưu đãi sau:
+ Đo đạc, khảo sát tận nơi hoàn toàn MIỄN PHÍ. Dù KH ở đâu thuộc miền Bắc hay một số tỉnh miền Trung như: Hà Tĩnh, Nghệ An, Thanh Hóa thì đội ngũ kỹ thuật Hpro vẫn sẵn sàng đến tận nơi đo đạc và tư vấn cho bạn.
+ MIỄN PHÍ thiết kế 3D, 2D tủ bếp bằng acrylic. KTS Hpro sẽ dựa trên kích thước đo đạc thực tế và lắng nghe nhu cầu, mong muốn của khách hàng. Để từ đó tạo nên bản phối cảnh 3D tủ bếp theo đúng không gian nhà bạn. Đặc biệt, Quý khách hàng có thể chỉnh sửa thiết kế đến khi nào ưng ý nhất.
+ MIỄN PHÍ vận chuyển trong nội thành Hà Nội 40km. Với KH ngoại thành hay ở các tỉnh khác sẽ phát sinh chi phí vận chuyển là 15.000đ/km tính từ trung tâm Tp.Hà Nội.
+ MIỄN PHÍ thi công lắp đặt tại nhà cho toàn bộ KH dù bạn ở đâu.
+ Hpro bảo hành phần gỗ tủ bếp trong 2 năm. Bảo trì vĩnh viễn.
>>> Tham khảo ngay: Tủ bếp gỗ xoan đào TBXD11 nhà anh Ngọc - KĐT Minh Phương, tp. Việt Trì
HỎI & ĐÁP
Liên hệ để được tư vấn