




4+
Mã hàng: TBI03
Số lượng:
Mô tả sản phẩm
Bộ tủ bếp cánh kính cùng lực của gia đình chị Đào với thiết kế vô cùng hiện đại, màu hồng trẻ trung mang đến không gian tươi mới cho căn bếp. Chất liệu cánh kính cường lực, khung thừng inox 304 cao cấp sơn tĩnh điện vô cùng bền đẹp, dễ dàng lau chùi. chống trầy xước, không ẩm mốc, mối mọt, hiện đại phù hợp với xu thế hiện nay.
Tủ bếp cánh kính đang dần trở thành xu hướng nội thất nhà bếp được yêu thích nhất hiện nay. Nhờ vào những ưu điểm vượt trội, những tính năng ưu việt mà chúng mang đến. Hãy cùng nội thất Hpro khám phá bộ tủ bếp inox TBI03 cánh kính cường lực, khung thùng sơn tĩnh điện nhé!
Tủ bếp TBI03 với thiết kế vô cùng hiện đại, tủ bếp dưới kiểu dáng chữ L, tủ bếp trên chữ i thiết kế kịch trần tạo không gian rộng rãi cất giữ số lượng lớn đồ dùng cũng như thực phẩm. Tủ bếp cánh kính cường lực có khả năng chịu lực chịu nhiệt tốt, không giãn nở, cong vênh, co ngót. Đặc biệt kháng nước, chống ẩm, chống mối mọt, không han gỉ, giúp tăng tuổi thọ tủ bếp vĩnh cửu. Bề mặt cánh phẳng bóng, hiệu ứng phản chiếu giúp tăng chiều sau cho không gian bếp.
Tủ bếp inox TBI03 với tone màu hồng độc đáo mang đến sự tươi mới trẻ trung cho không gian bếp. Các khu vực bếp được thiết kế bố trí khoa học thuận tiện cho việc nấu nước. Tủ bếp được trang bị đầy đủ các phụ kiện thông minh như giá bát nâng hạ, tay nâng thủy lực, máy rửa bát, lò vi sóng, kệ gia vị, giá xoong nồi, dao thớt…
Cùng tham khảo chi tiết bản vẽ thiết kế 2D và 3D:

Ảnh thiết kế 3D tủ bếp TBI03 nhà chị Đào - View 1

Ảnh thiết kế 3D tủ bếp TBI03 nhà chị Đào - View 2

Ảnh thiết kế 2D mặt đứng B của tủ bếp TBI03 nhà chị Đào - Vũ Trọng Phụng

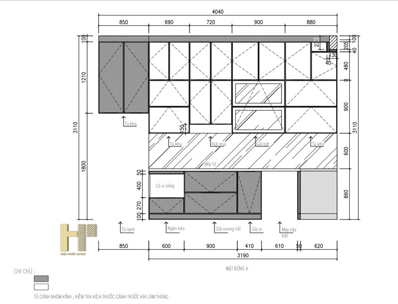
Ảnh thiết kế 2D mặt đứng A của tủ bếp TBI03 nhà chị Đào - Vũ Trọng Phụng

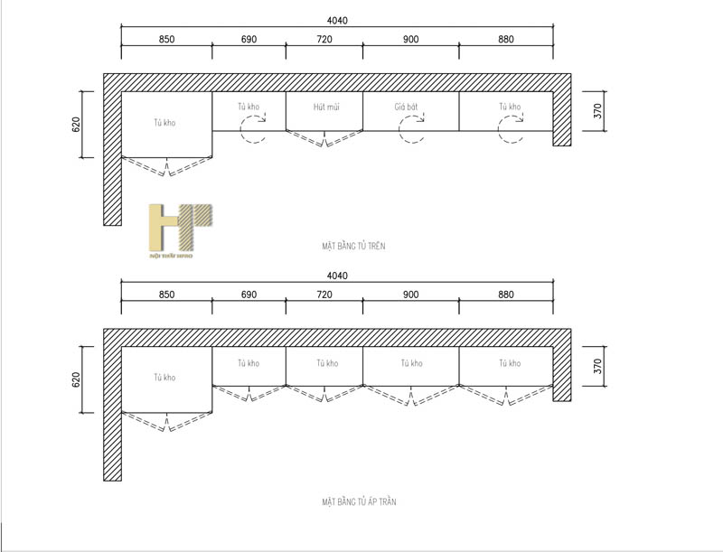
Ảnh thiết kế 2D mặt bằng tủ áp trần của tủ bếp TBI03 nhà chị Đào - Vũ Trọng Phụng

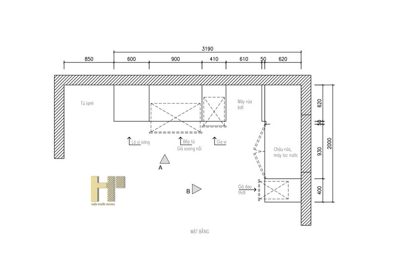
Ảnh thiết kế 2D mặt bằng của tủ bếp TBI03 nhà chị Đào - Vũ Trọng Phụng

Tủ bếp inox cánh kính nhà chị Đào sau khi hoàn thiện

Giá bát nâng hạ Eurogold thông minh kết hợp tay nâng thủy lực

Tone màu hồng đen trẻ trung hiện đại

Máy hút mùi hiện đại thông minh công suất lớn

Tủ bếp cánh kính sử dụng bản lề giảm chấn giúp đóng mở tủ êm mượt

Các khu vực bếp được bố trí khoa học thuận tiện

Chiều cao tủ tiêu chuẩn đảm bảo công năng sử dụng

Kính ốp bếp cường lực chịu nhiệt tốt, chống va đập, chống bám dầu mỡ

Toàn bộ cánh tủ đều được viền nhôm chắc chắn hiện đại

Hệ tủ kịch trần tăng không gian lưu trữ đồ đùng

Bề mặt tủ bằng phẳng hiệu ứng phản chiếu tăng chiều sâu cho không gian bếp

Bảng báo giá chi tiết bộ tủ bếp inox TBI03 nhà chị Đào - View 1

Bảng báo giá chi tiết bộ tủ bếp inox TBI03 nhà chị Đào - View 2
>>>Tham khảo thêm Tủ bếp inox TBI02 cánh kính cường lực nhà anh Huy - Việt Trì sang trọng đẳng cấp
HỎI & ĐÁP
Liên hệ để được tư vấn