




4+
Mã hàng: TBLM33
Số lượng:
Mô tả sản phẩm
Mẫu tủ bếp laminate TBLM33 nhà anh Bình với thiết kế hình chữ G tiện lợi kết hợp tủ rượu sang trọng. Màu sắc trang nhã, hiện đại góp phần mang đến tính thẩm mỹ cao cho không gian. Anh Bình bố trí lắp đặt công năng hoàn hảo, tiện nghi cao.
Với những căn hộ/ngôi nhà không xây tường phân chia phòng bếp với các không gian khác như: phòng khách, nhà ăn, phòng ngủ.... thì có thể sử dụng kiểu tủ bếp hình chữ G quây tròn tạo ra 1 nhà bếp nhỏ có khoảng trống ở giữa di chuyển đi lại giữa các khu vực 1 cách thuận tiện. Để giúp quý khách hàng dễ hình dung hơn, bài viết dưới đây Hpro xin giới thiệu đến bạn mẫu tủ bếp laminate TBLM33 nhà anh Bình ở Linh Đàm.
Video chi tiết bộ tủ bếp laminate TBLM33 nhà anh Bình - Linh Đàm
Tủ bếp laminate nhà anh Bình được chia làm 2 phần: tủ trên và dưới. Với tủ dưới là hình chữ G tạo quây tròn thành 1 không gian nhỏ riêng cho người nội trợ thỏa sức sáng tạo nấu nướng. Cũng như có thể kết nối với mọi người đang ngồi ở phòng khách, nhà ăn. Mọi thành viên đều có cảm giác luôn được quây quần bên nhau.

Ảnh chi tiết mặt bằng tủ bếp dưới của nhà anh Bình
Hệ tủ chia mỗi cạnh là 1 công năng riêng biệt, tách biệt Hỏa Thủy gần nhau xung khắc không tốt cho phong thủy của căn nhà và gia chủ. Nhìn vào bản vẽ trên bạn cũng phần nào hình dung ra được vị trí, kích thước của các khoang tủ bếp dưới. Rất đều, lắp đặt thông minh khoa học, có sự tính toán.

Bản vẽ kỹ thuật mặt bằng tủ bếp trên của nhà anh Bình

Ảnh 2D mặt đứng A tủ bếp laminate TBLM33 nhà anh Bình
Tủ bếp trên thiết kế hình chữ I nhỏ gọn đặt áp tường được coi là cạnh chính giữa của hệ tủ bếp. Phần tủ với công năng lắp đặt máy hút mùi âm tủ, giá úp bát kết hợp tủ kho để hộp đồ khô, đồ dùng ít sử dụng lên đó.

Ảnh thiết kế 2D mặt đứng B tủ bếp laminate TBLM33 nhà anh Bình

Bản vẽ kỹ thuật 2D mặt đứng C tủ bếp laminate TBLM33 nhà anh Bình

Ảnh 2D mặt đứng D, E tủ bếp nhà anh Bình - Linh Đàm

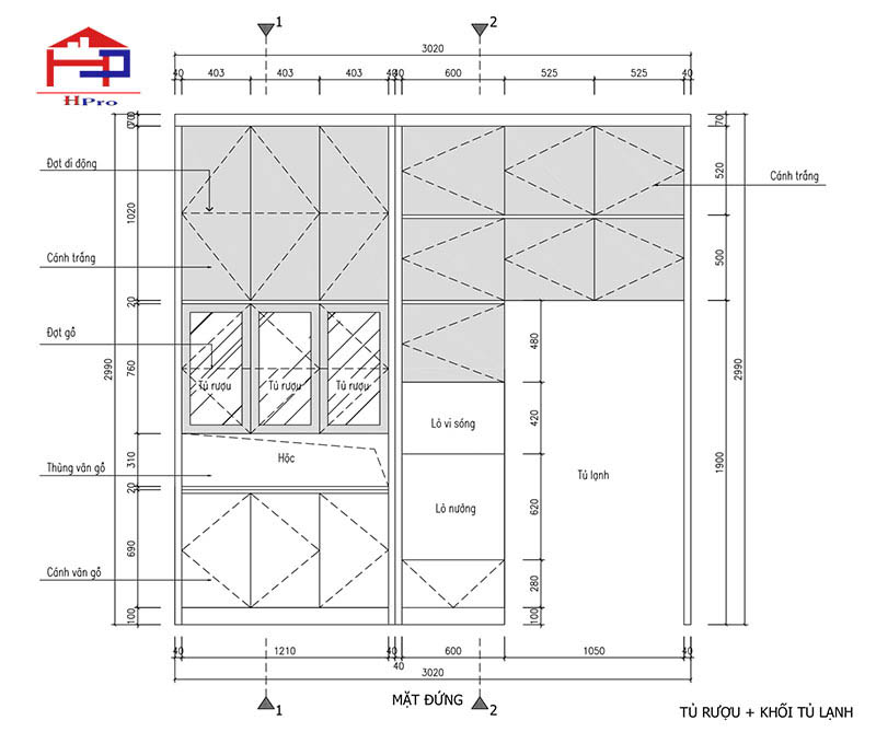
Ảnh chi tiết kích thước phần hệ tủ rượu kết hợp tủ lạnh của nhà anh Bình

Mặt cắt của phần tủ rượu và khoang tủ lạnh nhà anh Bình
>>> Xem thêm nhiều mẫu tủ bếp laminate đẹp, đa dạng kích thước và màu sắc tại Nội Thất Hpro

Bộ tủ với sự kết hợp hoàn hảo của 2 tone màu trắng - vân gỗ sang trọng, hiện đại

Tủ bếp laminate TBLM33 nhà anh Bình với kiểu dáng chữ G tạo 1 lối đi di chuyển ở giữa

Hình ảnh thực tế bộ tủ bếp laminate TBLM33 nhà anh Bình sau khi được Hpro hòan thiện

Hình ảnh bộ tủ bếp laminate TBLM33 nhà anh Bình đang dần được hoàn thiện

Hình ảnh nhân viên Hpro đang lắp bản lề cánh tủ bếp trên cho nhà anh Bình

Góc nhìn tổng quan hình khối của bộ tủ bếp nhà anh Bình ở Linh Đàm

Hình ảnh thực tế hệ tủ rượu kết hợp khoang để tủ lạnh của nhà anh Bình khi hoàn thiện xong

Hình ảnh bên trong của khoang tủ rượu nhà anh Bình

Hpro đang hoàn thiện phần tủ rượu kết hợp khoang để tủ lạnh cho nhà anh Bình
>>> Còn nhiều mẫu tủ bếp laminate vân gỗ hiện đại, ấm cúng cho không gian nhà bếp của các gia đình hiện nay.

Bảng báo giá chi tiết từng hạng mục tủ bếp laminate TBLM33 nhà anh Bình - Linh Đàm - view 1

Bảng giá chi tiết của tủ bếp laminate TBLM33 nhà anh Bình - view 2
Để giúp cho căn bếp nhà anh Bình được trở nên tiện nghi, hiện đại hơn thì nhân viên Hpro có tư vấn gia đình sử dụng thêm một số phụ kiện bếp hiện đại như: giá úp bát, giá để xoong nồi, giá dao thớt, mâm xoay góc,... Dưới đây là hình ảnh minh họa cho bạn dễ hình dung:

Ảnh phụ kiện giá úp bát cố định 2 tầng Carymax 100% inox 304 bền đẹp

Giá để xoong nồi 2 tầng Carymax inox 304 sáng bóng, chống han gỉ, oxy hóa

Ảnh thực tế phụ kiện giá dao thớt đa năng Carymax inox sợi tại Hpro
Trên thị trường hiện nay có rất nhiều đơn vị thiết kế & thi công nội thất tủ bếp thông minh, chất lượng và uy tín. Tuy nhiên, anh Bình lại chọn đóng tủ bếp laminate TBLM33 tại Nội Thất Hpro là vì:
- Hpro có XƯỞNg trực tiếp sản xuất tủ bếp laminate TBLM33 mà KHÔNG qua trung gian thứ 3. Anh Bình hoàn toàn yên tâm chất lượng, có thể về tận xưởng kiểm chứng gỗ cũng như giám sát quá trình sản xuất tủ bếp của thợ. Địa chỉ showroom của Hpro là: Đội 5 Hát Môn - Phúc Thọ - Hà Nội
- Chúng tôi có đội ngũ nhân viên dày dặn kinh nghiệm, am hiểu kiến thức trong lĩnh vực. Đội thợ thi công lành nghề, lão làng trong giới nội thất. Do vậy, mọi thắc mắc, cần tư vấn của anh Bình đều được chúng tôi giải đáp 1 cách nhanh chóng.
- Hpro miễn phí khảo sát & đo đạc công trình tại nhà dù bạn ở miền Bắc hay miền Trung.
- Hpro có đội ngũ KTS trẻ, sáng tạo luôn cập nhật xu hướng thị trường. Quý khách hàng sẽ được miễn phí thiết kế 3D theo kích không gian nhà bạn và nhu cầu thực tế của gia đình.
- Anh Bình được miễn phí CHẬU RỬA BÁT INOX 304 bề mặt mờ xước cao cấp, 2 hố tiện lợi.
- Miễn phí vận chuyển, thi công và lắp đặt công trình tủ bếp tại nhà.
- Tủ được bảo hành trong 2 năm và bảo trì trọn đời.
Bên cạnh đó, Hpro còn có 4 showroom trải dài miền Bắc có trưng bày tủ mẫu, phụ kiện - thiết bị thông minh cho quý khách hàng có những trải nghiệm thật.
Địa chỉ của chúng tôi là:
Showroom 1: Số 17 Ngõ 40 Trung Kính - Cầu Giấy - Hà Nội
Showroom 2: 509 Nguyễn Văn Cừ - Long Biên - Hà Nội
Showroom 3: 123 đường 25/4 thành phố Hạ Long - Quảng Ninh
Showroom 4: 1328 Hùng Vương - Việt Trì - Phú Thọ.
Số Hotline liên hệ: 090.2222.945 (Mr. Hoàn) - 0917.346.883 (Mr. Nam) - 024.3236.3456 (số máy bàn cố định) để nhận hỗ trợ tư vấn nhanh nhất.
Xem thêm: Tủ bếp laminate TBLM34 kết hợp acrylic nhà anh Quân - Hải Phòng.
HỎI & ĐÁP
Liên hệ để được tư vấn