


Mã hàng: TBLM41
Số lượng:
Mô tả sản phẩm
Tủ bếp laminate TBLM41 nhà chú Cải - Hưng Yên chữ L đơn giản, màu trắng hiện đại, tinh tế. Gỗ laminate với khả năng chịu lực, nhiệt, chống ẩm tốt. Độ bền cao, tuổi thọ sử dụng lên tới 20 năm.
Nội thất ngôi nhà chú Cải sử dụng được thiết kế theo phong cách hiện đại nên KTS Hpro đã tư vấn gia đình sử dụng chất liệu gỗ công nghiệp để làm tủ bếp với thiết kế hiện đại, bề mặt phẳng trơn. Bó trí các khoang tủ thông minh, mang đến sự tiện nghi cao cho người nội trợ vào bếp. Chi tiết cùng Hpro tham khảo bài viết dưới đây, tủ bếp laminate TBLM41:
Tủ bếp laminate TBLM41 được làm từ code gỗ công nghiệp MDF lõi xanh chống ẩm, bề mặt cánh tủ được dán laminate với độ dày khoảng từ 0,6mm – 1,3mm với công nghệ dán có nẹp cạnh bằng keo cực chắc chắn và bền. Với công nghệ và máy móc hiện đại, nhập khẩu từ Châu Âu của An Cường thì bạn hoàn toàn có thể an tâm rằng nước sẽ rất khó có thể ngấm vào code gỗ bên trong. Hơn nữa, gỗ Laminate Hpro còn có khả năng chịu lực, chịu nhiệt và chống trầy cực tốt. Đảm bảo độ bền cho tủ lên tới 20 năm. Laminate còn sở hữu hơn 300 mã màu từ trơn đơn sắc đến vân gỗ sang trọng, gia chủ tha hồ lựa chọn.
Thùng tủ bếp được làm từ code gỗ công nghiệp MDF lõi xanh chống ẩm, bề mặt phủ Melamine màu trắng chống trầy.
Hậu tủ bếp bằng hợp kim nhôm nhựa Aluminium chống nước cực tốt. Nó sẽ giúp cách ẩm giữa tường bếp với thùng tủ giúp bộ tủ bếp nhà bạn giữ được độ bền dài lâu.
Mẫu tủ bếp laminate TBLM41 nhà chú Cải được thiết kế theo dáng chữ L tận dụng tối đa góc cạnh của không gian. Hệ tủ sử dụng tone màu trắng cho bề mặt cánh với phần khung thùng tủ màu vân gỗ ấm cúng. Sự kết hợp vừa mang đến tính thẩm mỹ cao vừa giúp tạo cảm giác rộng, thoáng đãng cho không gian phòng bếp.

Tủ bếp laminate TBLM41 nhà chú Cải màu trắng tinh tế, hiện đại
Kiểu dáng chữ L mang đến tài lộc, may mắn cho gia chủ với tam giác phong thủy: bếp từ - chậu rửa - tủ lạnh. Điều mà ai cũng muốn sở hữu trong căn bếp của mình, không chỉ về phong thủy mà nó còn vô cùng thuận tiện cho người nội trợ di chuyển đi lại giữa các khu vực khi nấu nướng.
Các khoang tủ được thiết kế thông minh bố trí đầy đủ thiết bị - phụ kiện bếp thông minh như: giá úp bát, giá để xoong nồi, giá dao thớt, máy rửa bát...
Phần mặt đá bàn bếp là đá marble vân mây sang trọng, kính ốp tường bếp xanh nhẹ nhàng.

Mẫu tủ bếp laminate TBLM41 chữ L bố trí công năng hoàn hảo

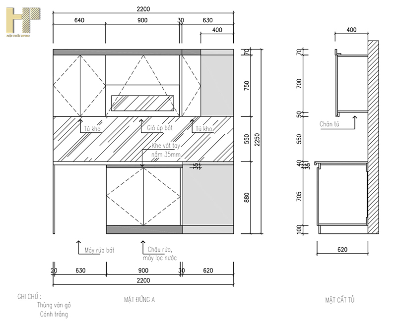
Ảnh thiết kế 2D mặt đứng A tủ bếp laminate TBLM41 nhà chú Cải - Hưng Yên

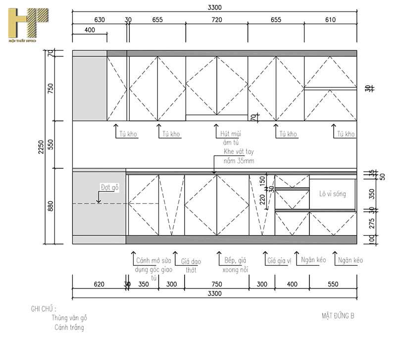
Bản vẽ chi tiết mặt đứng B tủ bếp laminate TBLM41 nhà chú Cải - Hưng Yên

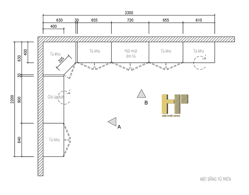
Mặt bằng tủ bếp trên của nhà chú Cải ở Hưng Yên

Bản vẽ kỹ thuật mặt bằng tủ bếp dưới của nhà chú Cải ở Hưng Yên
Hiện tủ bếp laminate tại Hpro có đơn giá là 4.400.000đ/m dài cho phần gỗ tủ bếp trên dưới cao tiêu chuẩn 225cm.

Bảng báo giá tủ bếp Laminate An Cường chống xước tại Nội Thất Hpro
Lưu ý: Giá báo trên chưa bao gồm các thiết bị - phụ kiện tủ bếp thông minh, hiện đại như: giá úp bát, giá để xoong nồi, giá dao thớt đa năng, kệ gia vị, thùng gạo thông minh, thùng rác, tủ kho,...
Chú Cải cũng giống như bao gia đình khác. Trước khi đưa đến quyết định lựa chọn đơn vị để làm nội thất tủ bếp thì chị cũng đã tham khảo rất nhiều đơn vị, địa chỉ thi công khác. Tuy nhiên, chị vẫn quyết định quay lại lựa chọn Hpro làm đơn vị để thiết kế & thi công tủ bếp cho gia đình bởi:
HỎI & ĐÁP
Liên hệ để được tư vấn