




4+
Mã hàng: TBAC175
Số lượng:
Mô tả sản phẩm
Mẫu tủ bếp acrylic TBAC175 nhà anh Tuấn với toàn bộ khung thùng tủ bếp dưới là inox 304 cao cấp, có khả năng chống mối mọt, han gỉ, thấm nước tốt. Bề mặt cánh 100% gỗ acrylic bóng gương An Cường với độ bền ổn định, tốt. Màu sắc đẹp, hiện đại cùng nhiều tiện nghi cao.
Với những gia đình sở hữu ngôi nhà vườn rộng rãi, thoáng đãi thì lựa chọn kiểu dáng, bố trí công năng trong tủ bếp vô cùng là dễ dàng không gặp khó khăn. Tuy nhiên, điều mà khiến cho hầu hết các gia đình có căn bếp nằm ở mặt đất như nhà vườn hay biệt thự, phố đó là tủ bị ẩm mốc, mối mọt vào những mùa. Khiến cho mọi món đồ nội thất trong nhà bếp không được bền đẹp, vượt thời gian. Anh Tuấn ở Việt Trì, Phú Thọ cũng đang gặp phải vấn đề đó. Hpro - với kinh nghiệp hơn 10 năm hoạt động trong lĩnh vực, sau khi lắng nghe về nỗi băn khoăn đó thì chúng tôi có tư vấn cho gia đình anh Tuấn sử dụng mẫu tủ bếp acrylic TBAC175 thùng inox 304 cao cấp, chống mối mọt cực tốt.
Bài viết dưới đây, Hpro sẽ giới thiệu chi tiết cho bạn đọc về loại tủ bếp mà anh Tuấn sử dụng. Cùng xem nhé!
Mọi vấn đề mối mọt, ẩm mốc, sập xệ của tủ giờ đã được khắc phục nhờ vật liệu inox 304 cao cấp được lắp phần tủ bếp dưới. Hpro đã tư vấn cho gia đình anh Tuấn sử dụng phần bề mặt cánh tủ trên + dưới là gỗ nhựa acrylic bóng gương An Cường. Vật liệu với khả năng chịu lực, nhiệt, chống thấm nước, cháy cực tốt. Màu sắc thì đẹp, sang. Bề mặt còn có 1 lớp bóng sáng như gương góp phần mang đến giá trị thẩm mỹ cho căn bếp nói riêng ngôi nhà nói chung được khang trang hơn.

Tòan cảnh không gian phòng bếp của nhà anh Tuấn - Việt Trì, Phú Thọ
Phần khung thùng tủ bếp trên ít tiếp xúc với nền đất, ẩm mốc của mùa mưa nồm thì chúng tôi lựa chọn gỗ công nghiệp Melamine, hậu tủ là Aluminium bền đẹp. Còn riêng toàn bộ khung thùng tủ bếp dưới sử dụng 100% inox 304 cao cấp, độ dày vừa phải đảm bảo độ bền vượt thời gian. Bởi vật liệu này có khả năng chống mối mọt, ẩm mốc, han gỉ cực tốt.

Góc nhìn từ cửa đi vào không gian phòng bếp hiện đại, tiện nghi của nhà anh Tuấn ở Phú Thọ
Mẫu tủ bếp acrylic TBAC175 nhà anh Tuấn được Hpro thiết kế theo dáng chữ L kịch trần tận dụng tối đa góc chết, khoảng trông trên cao. Tạo thêm nhiều diện tích lưu trữ đồ đạc, dụng cụ nhà bếp để không gian được gọn gàng, ngăn nắp.
Vì cả 2 vợ chồng đều là người yêu vẻ đẹp hiện đại, nhã nhặn và thanh lịch nên KTS Hpro đã lên bản vẽ 3D với 2 tone màu trắng - ghi (xám) nhẹ nhàng, tinh tế kết hợp với độ bóng gương trên bề mặt cánh acrylic giúp cho căn bếp trở nên khang trang, đẹp và có hồn hơn.
Đặc biệt, kiểu dáng chữ L này còn tạo 1 khoảng trống ở giữa để anh Tuấn bố trí bộ bàn ghế ăn tiện dụng, tạo sự đồng bộ hài hòa cho tổng thể căn phòng.

Mẫu tủ bếp acrylic TBAC175 với kiểu dáng chữ L, bố trí lắp đặt công năng hoàn hảo mang đến tiện nghi cao
Lựa chọn kiểu chữ L này là vì nó có 1 hình tam giác phong thủy: tủ lạnh - bếp từ - chậu rửa. Tam giác này vừa mang đến sự thuận tiện cho chị nhà anh Tuấn trong quá trình vào bếp còn giúp cho tiền tài không bị tiêu tan, luôn may mắn, sức khỏe tốt cho mọi thành viên trong gia đình.
Hệ tủ được chia thành nhiều khoang cánh tủ nhỏ bố trí sắp xếp các thiết bị - phụ kiện bếp khoa học, thông minh, đúng chuẩn phong thủy như khu vực chứa mệnh Thủy được đặt cách khu vực chứa mệnh Hỏa 1 khoảng >70cm. Cụ thể kích thước, vị trí lắp đặt có thể xem bản vẽ 2D bên dưới:

Bộ tủ sử dụng kết hợp tone màu trắng - ghi nhẹ nhàng, nhã nhặn mang đến 1 không gian bếp hiện đại, tinh tế và thanh lịch

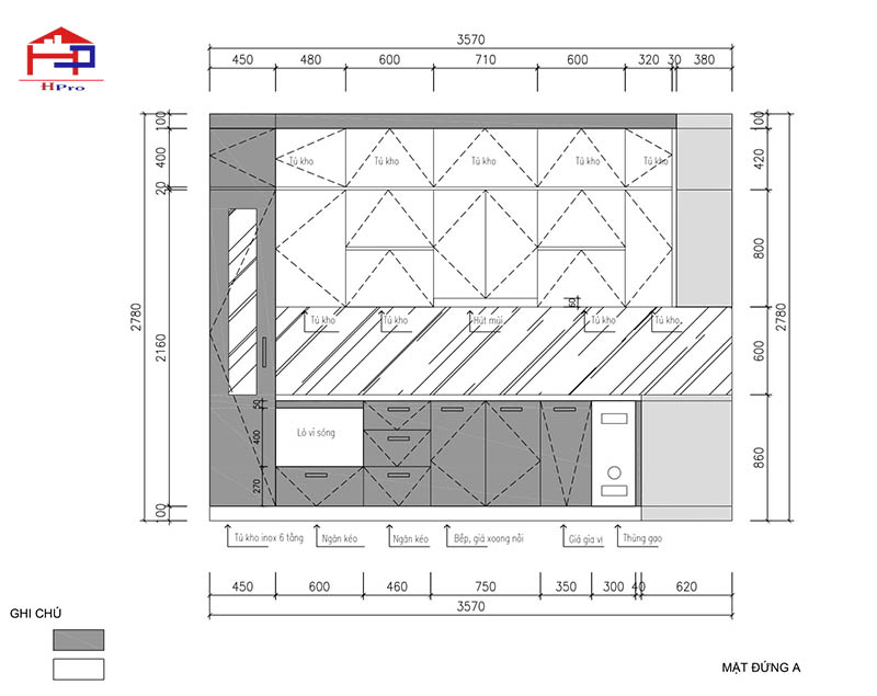
Ảnh thiết kế 2D mặt đứng A mẫu tủ bếp acrylic TBAC175 thùng inox 304 cao cấp nhà anh Tuấn - Việt Trì

Bản vẽ 2D mặt đứng B mẫu tủ bếp acrylic TBAC175 nhà anh Tuấn - Việt Trì

Ảnh 2D mặt bằng tủ bếp trên của nhà anh Tuấn ở Việt Trì, Phú Thọ

Bản vẽ kỹ thuật 2D mặt bằng tủ kịch trần của nhà anh Tuấn ở Việt Trì

Ảnh chi tiết 2D mặt bằng tủ bếp dưới của nhà anh Tuấn ở Việt Trì, Phú Thọ
>>> Click xem thêm 99+ mẫu tủ bếp acrylic đẹp, thiết kế hiện đại, bố trí lắp đặt công năng hoàn hảo tại Hpro
Bô tủ bếp acrylic TBAC175 thùng inox nhà anh Tuấn được Hpro hoàn thiện trong khoảng 20 ngày kể từ khi ký kết hợp đồng.

Mẫu tủ bếp nhà anh Tuấn còn được sử dụng thêm 1 số thiết bị - phụ kiện bếp thông minh, hiện đại

Hình ảnh thực tế mẫu tủ bếp acrylic TBAC175 nhà anh Tuấn - Việt Trì, Phú Thọ

Việc kết hợp 2 tone màu trắng - nâu này vừa giúp cho tủ nhà anh Tuấn được đẹp, hiện đại và sang còn
không lo bị lỗi mốt theo thời gian

Bề mặt cánh tủ bếp trên màu trắng bóng gương hiện đại, sáng tinh tế và thoáng mát

Mẫu tủ bếp acrylic TBAC175 nhà anh Tuấn có thiết kế thêm 1 hệ tủ kho 6 tầng 12 rổ để những hộp đồ khô
tiện lợi, gọn gàng và ngăn nắp
>>> Địa chỉ chuyên làm tủ bếp acrylic giá rẻ đến với các khách hàng có nhu cầu

Bảng báo giá tủ bếp acrylic TBAC175 thùng inox 304 cao cấp, bền đẹp nhà anh Tuấn - Việt Trì, Phú Thọ - view 1

Bảng giá chi tiết từng hạng mục tủ bếp acrylic TBAC175 thùng inox 304 nhà anh Tuấn - Việt Trì - view 2
Bên cạnh việc đóng tủ bếp thì gia đình anh Tuấn còn sử dụng thêm một số phụ kiện bếp hiện đại, thông minh như: giá úp bát, giá để xoong nồi, giá dao thớt, gia vị, thùng gạo thông minh, mâm xoay hình lá. Mời bạn xem hình ảnh minh họa dưới đây:

Hình ảnh thực tế phụ kiện giá úp bát thông minh 2 tầng Carymax

Cận cảnh tay nâng Blum nâng cánh tủ bếp trên

Giá để xoong nồi 2 tầng Carymax inox 304 sáng bóng, chống han gỉ, oxy hóa

Hình ảnh thực tế phụ kiện giá dao thớt inox dạng sợi thiết kế đa năng tại Hpro

Hình ảnh thực tế giá gia vị 2 tầng Carymax tại Hpro

Hình ảnh thực tế phụ kiện thùng gạo thông minh mặt gương bóng sáng tại Hpro

Hình ảnh phụ kiện mâm xoay hình lá tại Nội Thất Hpro
Sở dĩ anh Tuấn lựa chọn đóng tủ bếp acrylic TBAC175 thùng inox 304 cao cấp, bền đẹp tại Hpro là bởi:
Ngoài tủ bếp acrylic TBAC175 thùng inox 304 của nhà anh Tuấn – Việt Trì công ty còn hỗ trợ làm tủ bếp, nội thất gia đình cho các khách hàng có nhu cầu. Bạn chỉ cần liên hệ với công ty Hpro theo số điện thoại: 090.2222.945 (Mr. Hoàn) để được tư vấn miễn phí 24/7.
Hoặc đến trực tiếp các showroom của Nội thất Hpro:
>>> Xem thêm 1 mẫu tủ bếp acrylic TBAC176 kết hợp laminate của Hpro thiết kế & thi công cho nhà anh Chính ở Đội Cấn
HỎI & ĐÁP
Liên hệ để được tư vấn