




4+
Mã hàng: TBLM32
Số lượng:
Mô tả sản phẩm
Tủ bếp laminate TBLM32 nhà anh Trung với khung thùng tủ dưới là inox 304 cao cấp có khả năng chống mối mọt, han gỉ, thấm nước tốt. Bề mặt cánh màu trắng kết hợp vân gỗ ấm cúng, sang trọng. Cánh bằng phẳng rất dễ vệ sinh, lau chùi.
Anh Trung mong muốn Hpro thiết kế & thi công cho gia đình một hệ tủ bếp hiện đại, độ bề cao, công năng hoàn hảo? Do khí hậu của nước ta là nhiệt đới gió mùa nên anh Trung rất lo lắng về sự xâm nhập của mối mọt, ẩm mốc dẫn đến độ bền của tủ không được lâu. Biết được điều đó, Hpro đã tư vấn cho gia đình anh Trung bộ tủ bếp laminate TBLM32 với thùng tủ dưới 100% inox 304 cao cấp, khả năng chống nước, mối mọt tuyệt đối. Đảm bảo độ bền sử dụng lên tới 20 năm.
Mặt cánh tủ bếp trên nhà anh Trung được làm bằng gỗ acrylic bóng gương An Cường với code bên trong là MDF lõi xanh chống ẩm. Phần khung thùng bên trong là gỗ melamine sần chống trầy, hậu Aluminium chống thấm giúp cho phần tủ tiếp xúc với tường lâu ngày không bị ẩm mốc.

Ảnh thiết kế 3D tủ bếp laminate TBLM32 nhà anh Trung - Võ Chí Công
Phần mặt cánh tủ bếp dưới, hệ tủ kho và tủ kịch trần là gỗ Laminate sần vân gỗ có khả năng chống trầy xước, chịu lực, nhiệt cực tốt. Phần thùng tủ bếp dưới để tránh tình trạng mối mọt, ẩm mốc thì Hpro sử dụng toàn bộ bằng inox 304 mờ xước cao cấp.
Tủ bếp laminate TBLM32 nhà anh Trung được thiết kế theo dáng chữ L cạnh cửa ban công thoáng đãng giúp đón ảnh sáng tự nhiên, không khí trong lành vào căn phòng. Mọi thành viên vào bếp đều cảm thấy được thư giãn, thoả sức sáng tạo những món ăn ngon.

Mẫu tủ bếp laminate TBLM32 kết hợp acrylic nhà anh Trung - view 2
Hệ tủ với sự kết hợp 2 tone màu trắng trong suốt và vân gỗ mang đến cho gia đình 1 không gian bếp đầm ấm, hiện đại. Lựa chọn màu vân gỗ cho tủ dưới giúp giấu đi những vét bẩn, bụi bám trên cánh tủ mà chưa kịp lau.
Trên mỗi khoang cánh tủ của bếp dưới anh Trung sử dụng thêm tay nắm inox hình chữ U - phụ kiện giúp hỗ trợ người sử dụng đóng kéo mở tủ lấy đồ 1 cách dễ dàng, thuận tiện.
Khi nói đến vẻ đẹp của tủ bếp thì phải nhắc đến 2 phụ kiện: mặt đá bàn bếp marble trắng vân mây và kính cường lực ốp tường bếp màu xanh ngọc tươi mát, thoáng đãng cho bếp.

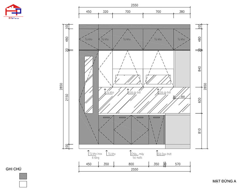
Ảnh thiết kế 2D mặt đứng A tủ bếp laminate TBLM32 nhà anh Trung
Dưới sự tư vấn tận tâm của KTS Hpro mà các công năng của gia đình anh Trung được bố trí 1 cách khoa học, thông minh và hợp phong thủy. Nó vừa hỗ trợ cho người nội trợ làm bếp được nhanh gọn, tiết kiệm thời gian vừa giúp cho tính thẩm mỹ của ngôi nhà được tăng cao.

Bản vẽ kỹ thuật 2D mặt đứng B tủ bếp laminate TBLM32 nhà anh Trung

Ảnh chi tiết mặt bằng tủ bếp trên nhà anh Trung

Mặt bằng tủ kịch trần của nhà anh Trung - Võ Chí Công

Bản vẽ kỹ thuật mặt bằng tủ bếp dưới của nhà anh Trung - Võ Chí Công
>>> Tìm hiểu thêm về tủ bếp laminate tại Nội Thất Hpro

Hình ảnh thực tế bộ tủ bếp laminate TBLM32 nhà anh Trung sau khi được Hpro hoàn thiện

Hình ảnh minh họa đầy đủ các phụ kiện - thiết bị bếp mà nhà anh Trung sử dụng

Hệ tủ kho 6 tầng 12 rổ giúp anh Trung lưu trữ được số lượng lớn các loại đồ khô

Góc nhìn chéo hệ cạnh tủ bếp trên của nhà anh Trung - Võ Chí Công

Sự kết hợp hoàn hảo giữa giá úp bát thông minh và tay nâng Blum

Hệ tủ bếp trên là sự kết hợp của gỗ acrylic màu trắng và laminate vân gỗ

Mặt đá bàn bếp màu đen kim sa sang trọng, chống lộ bẩn và độ bền cao

Hình ảnh thực tế khu vực dọn dẹp đồ đạc của nhà anh Trung

Ảnh thực tế phần hệ tủ để bếp từ và máy hút mùi. Bộ đôi thiết bị cần thiết trong gian bếp hiện đại ngày nay

Bảng giá tủ bếp laminate TBLM32 nhà anhTrung - view 1

Bảng giá chi tiết từng hạng mục tủ bếp laminate TBLM32 nhà anh Trung - view 2
Ngoài đóng phần gỗ tủ bếp tại Hpro thì gia đình anh Trung còn sử dụng thêm một số phụ kiện bếp hiện đại, thông minh cần thiết cho gian bếp như:

Hình ảnh thực tế phụ kiện giá úp bát thông minh 2 tầng tại Nội Thất Hpro

Ảnh phụ kiện giá úp bát cố định 2 tầng Carymax 100% inox 304 bền đẹp

Giá để xoong nồi 2 tầng Carymax inox 304 sáng bóng, chống han gỉ, oxy hóa

Ảnh thực tế phụ kiện giá dao thớt đa năng Carymax inox sợi Hpro trưng bày tại showroom Trung Kính

Hình ảnh thực bộ tay nâng Blum nâng cánh tủ bếp trên

Hình ảnh thực tế hệ tủ kho 6 tầng 12 rổ
Không chỉ riêng anh Trung mà tất cả khách hàng làm tủ bếp, nội thất tại Hpro đều sẽ nhận được những chính sách ưu đãi hoàn hảo như:
- Miễn phí tư vấn, khảo sát & đo đạc công trình tại nhà bất kể là xa hay gần. Hpro chúng tôi nhận thi công toàn bộ khách ở từ Hà Tĩnh đổ ra các tỉnh miền Bắc.
- Miễn phí thiết kế 3D, 2D theo kích thước đo chuẩn và nhu cầu thực tế của gia đình. KST Hpro chúng tôi luôn sẵn sàng cùng
- Miễn phí vận chuyển, thi công lắp đặt sản phẩm tủ bếp tại nhà.
- Bảo hành tủ trong 2 năm và bảo trì trọn đời.
Trên đây là toàn bộ thông tin về tủ bếp laminate TBLM32 nhà anh Trung - Võ Chí Công. Hy vọng, qua bài viết này bạn sẽ có ý tưởng trong việc chọn màu sắc, bố trí thiết bị - phụ kiện bếp hợp lý nhất. Cần hỗ trợ liên hệ ngay với chúng tôi qua số Hotline: 090.2222.945(Mr. Hoàn) - 0917.346.883 (Mr. Nam) - 024.3236.3456 (số máy bàn cố định) để nhận hỗ trợ tư vấn nhanh nhất.
Hoặc đến trực tiếp showroom dưới đây:
Showroom 1: Số 17 Ngõ 40 Trung Kính - Cầu Giấy - Hà Nội
Showroom 2: 509 Nguyễn Văn Cừ - Long Biên - Hà Nội
Showroom 3: 123 đường 25/4 thành phố Hạ Long - Quảng Ninh
Showroom 4: 1328 Hùng Vương - Việt Trì - Phú Thọ.
Xem thêm mẫu tủ bếp lamine TBLM33 kết hợp tủ rượu hiện đại nhà anh Bình - Linh Đàm
HỎI & ĐÁP
Liên hệ để được tư vấn