




4+
Mã hàng: TBAC216
Số lượng:
Mô tả sản phẩm
Mẫu tủ bếp acrylic kiểu dáng chữ i hệ tủ kịch trần vừa hiện đại vừa có không gian lưu trữ đồ dùng rộng rãi. Chất liệu Acrylic bóng gương code MDF lõi xanh chống ẩm, chống cháy, an toàn, chịu lực, chịu nhiệt tốt. Bề mặt bằng phẳng chống trầy xước, dễ dàng lau chùi vệ sinh.
Bạn đang tìm kiếm một bộ tủ bếp hiện đại, tiện nghi cho gia đình, nhưng không gian bếp nhà bạn nhỏ? Đừng lo, cùng nội thất Hpro khám phá bộ tủ bếp Acrylic TBAC216 nhà anh Trường - CT8 Mỹ Đình, kiểu dáng chữ i phù hợp với mọi không gian. Chất liệu cao cấp bền đẹp theo thời gian. Cùng khám phá nhé!
Với không gian phòng bếp khá khiêm tốn, gia đình anh Trường đã lựa chọn cho mình bộ tủ bếp Acrylic TBAC216 với thiết kế hiện đại, kiểu dáng chữ i, hệ tủ kịch trần, tone màu trắng - đen. Mẫu tủ bếp vừa hiện đại vừa tiện nghi giúp nâng hạng nội thất cho gia đình anh Trường.

Tủ bếp TBAC216 nhà anh Trường - CT8 Mỹ Đình kiểu dáng chữ i tone màu trắng đen hiện đại
Chất liệu tủ bếp code MDF lõi xanh dày 18mm, bề mặt phủ acrylic bóng gương, áp dụng công nghệ dán no line độc quyền An Cường mang lại vẻ đẹp hiện đại, phù hợp với mọi không gian bếp. Đặc biệt, chất liệu acrylic được đánh giá rất cao về độ bền tuổi thọ từ 15- 30 năm, chống cháy, chịu lực, chịu nhiệt tốt, chống nước, chống mối, hạn chế mọt, chất liệu thân thiện với môi trường an toàn cho người sử dụng. Tủ bếp acrylic đang được rất nhiều gia đình đã và đang lựa chọn cho căn bếp của gia đình. Đa dạng kiểu dáng, màu sắc từ đơn sắc đến vân gỗ phù hợp với không gian sở thích mỗi gia đình.
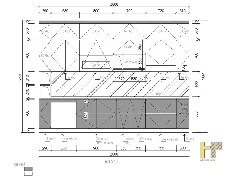
Chi tiết bản thiết kế 3D và 2D bộ tủ bếp Acrylic TBAC216 nhà anh Trường - CT8 Mỹ Đình:

Ảnh thiết kế 3D tủ bếp Acrylic TBAC216 nhà anh Trường - CT8 Mỹ Đình

Ảnh thiết kế 3D bàn đảo tủ bếp Acrylic TBAC216 nhà anh Trường - CT8 Mỹ Đình

Ảnh thiết kế 2D mặt bằng tủ áp trần tủ bếp TBAC216 nhà anh Trường - CT8 Mỹ Đình

Ảnh thiết kế 2D mặt bằng tủ dưới tủ bếp TBAC216 nhà anh Trường - CT8 Mỹ Đình

Ảnh thiết kế 2D mặt bằng đứng tủ bếp TBAC216 nhà anh Trường - CT8 Mỹ Đình

Tủ bếp nhà anh Trường thiết kế hiện đại các khoang tủ tiện nghi rộng rãi

Bố trí khu vực lò vi sóng, ấm đung nước tủ bếp trên giúp tiết kiệm không gian bếp

Hệ thống chậu rửa, giá úp bát nâng hạ thông minh

Tủ kho rộng rãi sức chứa lớn, nơi cất giữ đồ khô tối ưu

Bề mặt tủ bếp bằng phẳng thanh lịch hiệu ứng phản chiếu tăng chiều sâu cho không gian bếp

Các khu vực bếp được bố trí khoa học hợp phong thủy

Mẫu tủ bếp Acrylic nhà anh Trường sau khi hoàn thiện vô cùng tiện nghi

Bảng giá chi tiết tủ bếp Acrylic TBAC216 nhà anh Trường - View 1

Bảng giá chi tiết tủ bếp Acrylic TBAC216 nhà anh Trường - View 2
>>>Tham khảo thêm Mẫu tủ bếp Acrylic TBAC215 nhà chị chị Hiền - Mỹ Đình kiểu dáng chữ i hiện đại
HỎI & ĐÁP
Liên hệ để được tư vấn