




4+
Mã hàng: TBAC178
Số lượng:
Mô tả sản phẩm
Mẫu tủ bếp bằng acrylic TBAC178 và nội thất phòng khách nhà chú Kiên được Hpro thiết kế theo phong cách hiện đại. Sử dụng màu sắc nhẹ nhàng, trung tính mang vẻ đẹp thanh lịch, tinh tế cho cả căn hộ. Bố trí công năng hoàn hảo, tiện nghi cao.
HIỆN ĐẠI - THANH LỊCH - TIỆN NGHI là những gì chú Kiên cảm nhận được khi Hpro hoàn thiện nội thất tủ bếp bằng acrylic TBAC178 và phòng khách trong căn hộ rộng khỏang 50m2 ở Minh Khai. Có thể thấy, mặc dù diện tích nhỏ nhưng với sự thông minh, khéo léo và sáng tạo của đội ngũ KTS Hpro mà gia đình chú Kiên mới sở hữu được căn hộ như trong mơ. Vừa đảm bảo công năng vừa mang đến tính thẩm mỹ cao.
Phòng bếp nhà chú Kiên có diện tích hạn hẹp, nhỏ nên để tận dụng tối đa diện tích KTS Hpro đã tư vấn và thiết kế cho gia đình bộ tủ bếp chữ I song song kịch trần. Với tone màu chủ đạo là trắng tủ bếp acrylic bóng gương An Cường giúp ăn gian diện tích, tạo nên sự thoải mái không bị bí bách, chật chội. Phần tủ kịch trần sẽ tạo thêm không gian lưu trữ, bảo quản đồ đạc bên trong nhà bếp 1 cách gọn gàng và ngăn nắp.

Ảnh thiết kế 3D tủ bếp acrylic TBAC178 nhà chú Kiên - view 1
Để ngăn cách không gian nhà bếp với phòng khách gia đình chú Kiên còn thiết kế một vách ngăn rất hợp lý. Vách ngăn vừa để phân chia khu vực rõ ràng vừa là vách trang trí cho không gian sinh hoạt của gia đình.

Bản vẽ 3D tủ bếp acrylic TBAC178 - view 2

Bản vẽ 3D phần vách ngăn đặt ở nối ra vào của phòng bếp trong căn hộ nhà chú Kiên

Ảnh thiết kế 2D mặt đứng A tủ bếp acrylic TBAC178 kèm vách ngăn nối ra vào của nhà chú Kiên

Bản vẽ chi tiết mặt đứng B tủ bếp acrylic TBAC178 nhà chú Kiên

Bản vẽ mặt bằng tủ bếp trên của nhà chú Kiên - Minh Khai

Ảnh thiết kế mặt bằng tủ kịch trần của nhà chú Kiên

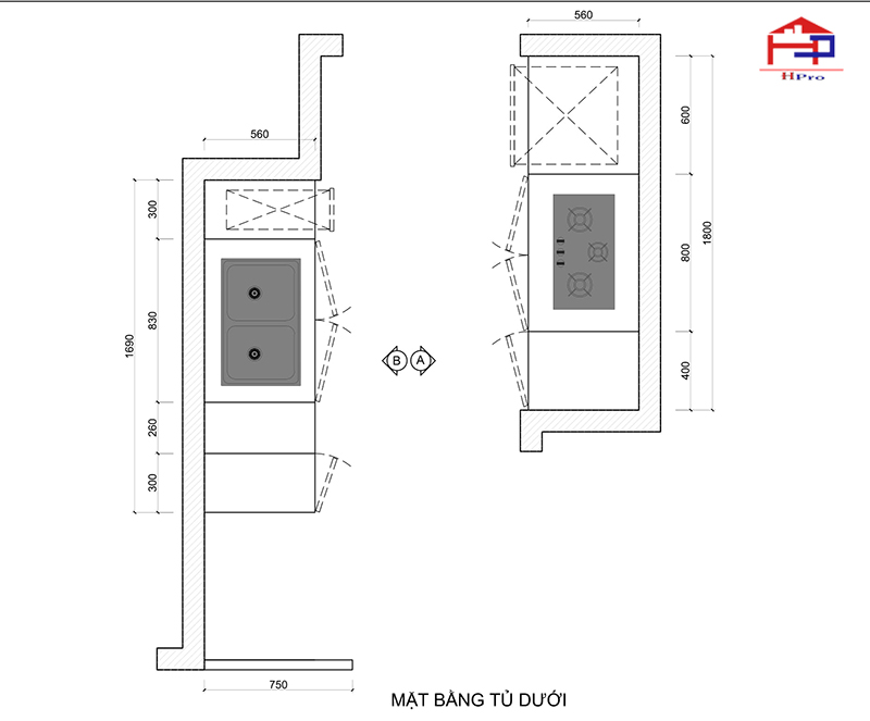
Bản vẽ kỹ thuật mặt bằng tủ bếp dưới nhà chú Kiên - Minh Khai
>>> Đừng bỏ qua 100+ mẫu tủ bếp acrylic đẹp, thiết kế hiện đại và tiện nghi tại Hpro nếu không muốn căn hộ của mình bị bỏ rơi.
Phòng khách là nơi sinh hoạt chung của gia đình, tiếp khách nên chú Kiên rất chú trọng trong việc thiết kế nội thất trong không gian này. Vì nhà chú Kiên là chung cư, diện tích không được rộng nên các sản phẩm nội thất được thiết kế với kích thước vừa phải mang lại sự hài hòa. Từng sản phẩm nội thất đều được chú trọng khi thiết kế. Hpro có cung cấp một số hình ảnh thiết kế cho bạn ngắm nhìn:

Bản vẽ phác họa tổng quan căn hộ nhà chú Kiên ở Minh Khai từ cao xuống - view 1

Tổng quan đầy đủ căn hộ nhà chú Kiên nhìn từ trên cao xuống - view 2

Ảnh thiết kế 3D phòng khách nhà chú Kiên ở Minh Khai

Ảnh 3D khu vực bàn ăn trong căn hộ nhà chú Kiên - Minh Khai

Ảnh 3D hệ tủ giầy, để đồ trang trí ngay gần cửa ra vào của nhà chú Kiên - Minh Khai

Ảnh thiết kế 2D kệ tivi, vách ốp trang trí phòng khách của nhà chú Kiên - Minh Khai

Ảnh chi tiết kích thước tủ giày của nhà chú Kiên - Minh Khai

Bản vẽ chi tiết kích thước hệ tủ rượu gần bàn ăn của nhà chú Kiên ở Minh Khai
Nội Thất Hpro tự hào là một đơn vị uy tín, hàng đầu và có nhiều kinh nghiệm trong lĩnh vực thiết kế & thi công nội thất nhà ở, nhà hàng, khách sạn... với cam kết mang đến cho quý khách những không gian nội thất hoàn hảo từ giá tiền, tính thẩm mỹ đến chất lượng. Hơn nữa, đến với Hpro gia đình chú Kiên sẽ được tư vấn thiết kế những bản vẽ 3D, 2D phù hợp nhất với không gian của gia đình. Đội KTS Hpro cùng với gia đình chú Kiên chỉnh sửa đưa ra bản thiết kế chuẩn xác nhất, 1 không gian vừa thoáng đãng, công năng hoàn hảo vừa toát lên vẻ đẹp hiện đại, sang trọng cho gia chủ.
Nhân viên kinh doanh tư vấn kỹ càng cho gia đình về thời gian, ngân sách, các vấn đề về phong thủy từ A -Z cho mọi người nắm rõ. Đến thi công lắp đặt hoàn toàn miễn phí cho gia đình.
Chú Kiên còn tin tưởng Hpro bởi chúng tôi có nhà máy xưởng sản xuất rộng hàng trăm m2 ở Đội 5 - Hát Môn - Phúc Thọ - Hà Nội. Hệ thống nhà xưởng được trang bị đầy đủ máy móc hiện đại, vật liệu gỗ nhập khẩu từ thương hiệu nổi tiếng. Chúng tôi đảm bảo mang đến cho quý khách hàng những sản phẩm nội thất chất lượng nhất, đẹp nhất, độ bền vượt thời gian.
Làm nội thất tại Hpro, gia đình chú Kiên còn được bảo hành 2 năm và bảo trì trọn đời.
Nếu bạn cũng đang muốn sở hữu một căn hộ với nội thất hiện đại, tiện nghi và đẹp giống như nhà chú Kiên thì còn chờ gì mà không liên hệ với chúng tôi qua Hotline: 090.2222.945 (Mr. Hoàn) - 0917.346.883 (Mr. Nam) - 024.3236.3456 (số máy bàn cố định).
Hoặc đến trực tiếp showroom dưới đây:
Showroom 1: Số 17 Ngõ 40 Trung Kính - Cầu Giấy - Hà Nội
Showroom 2: 509 Nguyễn Văn Cừ - Long Biên - Hà Nội
Showroom 3: 123 đường 25/4 thành phố Hạ Long - Quảng Ninh
Showroom 4: 1328 Hùng Vương - Việt Trì - Phú Thọ
>>> Tìm hiểu thêm về mẫu tủ bếp acrylic TBAC179 nhà chị Thủy thiết kế rộng, màu sắc hiện đại sang trọng
HỎI & ĐÁP
Liên hệ để được tư vấn