




4+
Mã hàng: TBOC01
Số lượng:
Mô tả sản phẩm
Tủ bếp gỗ óc chó TBOC01 nhà chị Thúy - Yên Viên được thiết kế chữ L sang trọng, tiện ích, tận dụng tối đa mọi góc khuẩt. Cam kết 100% gỗ óc chó tự nhiên được nhập khẩu chính ngạch từ Bắc Mỹ nơi sản sinh vật liệu gỗ óc chó đạt chất lương cao, có giấy chứng nhận đầy đủ. Miễn phí tư vấn, thiết kế và phí lắp đặt.
Đây là thiết kế dành cho căn biệt thự sang trọng, mang phong cách tân cổ điểm với tông mầu socola trầm ấm. Tủ bếp gỗ óc chó TBOC01 với chất gỗ bền chắc hạn chế tối đa đặc điểm dễ cong vênh, co ngót mà ngay cả một số dòng gỗ quý ở Việt Nam vẫn gặp phải. Sự kết hợp của gỗ óc chó tự nhiên với đá màu trắng vừa cổ diển vừa hiện đại.
Gỗ óc chó: có thể nói là loại gỗ mới mẽ đối với người Việt, nhưng trong 3 năm gần đây lại được người tiêu dùng Việt rất săn đón.
So với các loại gỗ tự nhiên khác trên thị trường thì gỗ óc chó vượt lên hơn hẳn về sự sang trọng và đẳng cấp, Với chất gỗ màu socola nâu sang chảnh, đường vân gỗ uốn lượn hay cuộn sóng rất hài hòa đẹp mắt vượt xa cả những loại gỗ quý ở Việt Nam như: Gụ, Cẩm Lai, Cam xe,...Đây là loại gỗ được các hãng sản xuất oto lựa chọn cho dòng xe hạng sang của mình như Bentley, Roll Royce,, …

Tủ bếp sang trọng nhà chị Thúy được làm từ gỗ óc chó Hpro
Tủ bếp gỗ óc chó TBOC01 của chị Thúy được tư vấn và thiết kế bởi đội ngũ thiết kế chuyên nghiệp và nhiệt tình của Hpro. Các bản vẻ 3D, 2D được giới thiệu chi tiết dễ hình dung; quy trình làm việc, đo đạc kỹ lưỡng cùng với sự lắng nghe mong muốn, yêu cầu của chị và gia đình. Chị không giấu được vẻ hài lòng và đã giới thiệu bạn bè chị đến để trải nghiệm chất lượng dịch vụ tại Hpro.

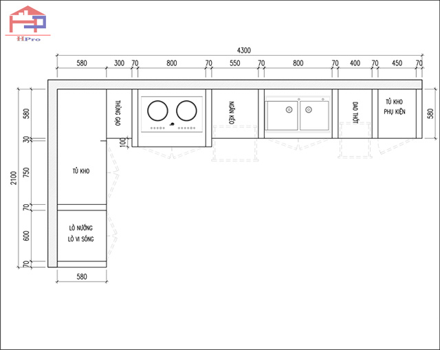
Hình ảnh thiết kế tủ bếp gỗ óc chó nhà chị Thúy với kiểu dáng chữ L
- Hpro lựa chọn cho gia đình chị Thúy tủ bếp gỗ óc chó chữ L nhằm tạo thêm không gian rộng tận dụng tối đa các góc khuất, góc cạnh tường. Kiểu thiết kế này rất linh hoạt trong việc bố trí các thiết bị khác như lò nướng, tủ lạnh,... nhằm mang đến sự thoải mái tiện lợi cho người sử dụng.
- Tủ bếp nhà chị thúy được làm từ gỗ óc chó có độ dày 18mm kết hợp với mặt đá Virostone cao cấp màu trắng ngà phảng phất ánh ngọc trai đã đẹp là không thể rời mắt, không những thế tủ bếp còn được bố trí các thiết bị - phụ kiện nhập khẩu cao cấp tân tiến nhất. Đẹp - Sang - Tiện ích ba từ mà Hpro mang đến để đáp lại sự tin tưởng của chị Thúy khi lựa chọn sử dụng dịch vụ của Hpro.
- Tu bep go oc cho TBOC01 nhà chị Thúy được bố trí bao gồm: Lò nhướng, lò vi sóng, máy hút mùi, chậu rửa, vòi rửa cao cấp với giá úp bát, giá xoong nồi, giá dao thớt, thùng gạo thông minh nhập khẩu nguyên chiếc; tủ kho 6 tầng tiện lợi, ngăn khéo, tủ chứa đồ được bố trí hợp lý.

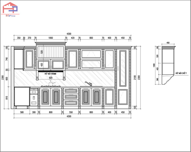
Bản vẽ 2d tủ bếp gỗ óc chó nhà chị Thúy

Bản vẽ 2d tủ bếp gỗ óc chó nhà chị Thúy

Bản vẽ 2d tủ bếp gỗ óc chó nhà chị Thúy

Bản vẽ 2d tủ bếp gỗ óc chó nhà chị Thúy
- Chi phí: tư vấn - thiết kế - lắp đặt hoàn toàn Miễn Phí.
- Bảo hành tủ bếp gỗ óc chó trong 2 năm. Các phụ kiện – thiết bị bếp bảo hành đến 5 năm.
Gọi ngay số hotline của Hpro để được tư vấn: 0902 222 945 - 0917 346 883
Hpro nhanh chóng tiến hành vận chuyển, lắp đặt tủ bếp cho chị Thúy tại nhà ở Yên Viên - Gia Lâm - Hà Nội, được hoàn thành sau 15 ngày (kể từ ngày ký hợp đồng) không hề có một thay đổi nào so với bản thiết kế 2D và 3D ban đầu. Mời bạn xem hình ảnh thực tế sau khi hoàn thiện TBOC01.

Hình ảnh thực tế tủ bếp gỗ óc chó nhà chị Thúy sau khi hoàn thiện

Hình ảnh chụp gần thấy được từng vân gỗ của gỗ óc chó

Hình ảnh thực tế chụp gần khoang hút mùi

Giá xoong nồi được bố trí ngay bên dưới bếp từ. Tiện dụng khi nấu nướng

Chậu rửa âm tủ. Giúp gian bếp hoàn mỹ hơn và đặc biệt dễ vệ sinh hơn rất nhiều. Nước khi rửa không may tràn ra ngoài cũng dễ dàng gạt xuống dưới chứ không hạn chế như chậu âm tủ
>>> Xem ngay: Các mẫu thiết kế tủ bếp óc chó có thể phù hợp với căn bếp của bạn
- Khi tham quan và trải nghiệm thực bằng mắt, cũng như cảm nhận trên chất liệu gỗ tự nhiên khác nhau mà Hpro đã giới thiệu với chị Thúy.
Chị Thúy nói : Điều đầu tiên chị thích màu gỗ rất tự nhiên màu socola nâu đậm trầm ấm cộng thêm đường nét hoa văn của vân gỗ độc đáo, đậm chất cổ điểm lại sang trọng rất phù hợp với căn nhà của chị.

Gỗ óc chó làm tủ bếp nhà chị Thúy - Yên Viên
- Đặc biệt hơn sau khi được biết, Gỗ óc chó thuộc nhóm gỗ cứng chất gỗ bền; chịu được áp lực lớn và nhiệt độ cao; những thớ gỗ được liên kết với nhau vô cùng chắc chắn, đảm bảo không bị ngấm nước hay nứt nẻ, cong vênh.
- Thân gỗ có chất chống nấm mốc, côn trùng sâu bọ tự nhiên, vì vậy ngay cả ở môi trường có độ ẩm cao, dễ hư mục cũng không thể đánh bại loại gỗ này.
- Tủ bếp gỗ óc chó của Hpro nhập khẩu chính ngạch tại Bắc Mỹ được tuyển chọn cực kỳ cẩn thận đạt tiêu chuẩn cao, có đầy đủ giấy chúng nhận nguồn gốc xuất xứ. Gỗ nhập về được sấy tẩm, xử lý bằng công nghệ tiên tiến nhất đảm bảo giữ được màu sắc nguyên bản và càng làm tăng thêm độ bền cho chất gỗ.
Chị Thúy đã không do dự mà quyết định chọn tủ bếp gỗ óc chó TBOC01 của Hpro.
Hiện nay Hpro đang cung cấp tủ bếp gỗ óc chó cho nhà chị Thúy theo kiểu tân cổ điển với giá 13.500.000vnđ/ m dài đã bao gồm cả tủ bếp trên và dưới, gồm tay nắm, bản lề, ray kéo tiêu chuẩn. Hpro cam kế giá tốt nhất trên thị trường với các sản phẩm cùng loại, bởi chúng tôi có xưởng sản xuất riêng và không qua bất kỳ một bên trung gian nào kể cả đối với các thiết bị - linh kiện đi kèm.
Hình ảnh báo giá chi tiết tủ bếp gỗ óc chó TBOC01

Bảng báo giá chi tiết từng hạng mục và thiết bị - phụ kiện bếp đi kèm của tủ bếp óc chó nhà chị Thúy

Bảng báo giá chi tiết từng hạng mục và thiết bị - phụ kiện bếp đi kèm của tủ bếp óc chó nhà chị Thúy
Nếu bạn không thích phong cách tân cổ điển như nhà chị Thúy có thể chọn phong cách hiện đại trẻ trung với giá chỉ 11.500.000vnđ/ m dài cũng đã bao gồm các linh kiện tiêu chuẩn như gia đình chị Thúy.
Khi có dự định sửa sang lại căn bếp nhà mình. Chị Thúy cũng như bạn đang đọc bài viết này, hoàn toàn chưa biết về Hpro. Nhưng sau khi xem qua các đơn vị khác thì Hpro đã được chị tin tưởng lựa chọn và đây là cảm nhận của chị Thúy sau khi trải nghiệm thực tế chất lượng dịch vụ Hpro.
Chia sẻ của chị Thúy sau khi trải nghiệm sử dụng sản phẩm và dịch vụ của Hpro
Quý khách hàng đến ngay địa chỉ showroom gần nhất để nhận được tư vấn tận tình nhất cũng như xem tận mắt tủ mẫu, các loại thiết bị - phụ kiện bếp được trưng bày ở showroom.
Hoặc liên hệ ngay đến Hotline: 0902.222.945 (Mr.Hoàn) để nhận được hỗ trợ tư vấn nhanh nhất.
Cùng là tủ bếp óc chó nhập khẩu Bắc Mỹ nhưng mẫu tủ bếp óc chó TBOC02 nhà anh Tuấn - Thị xã Phú Thọ có điểm đặc biệt hơn. bạn có thể tham khảo.
HỎI & ĐÁP
Liên hệ để được tư vấn