




4+
Mã hàng: TBXD08
Số lượng:
Mô tả sản phẩm
Không thể phủ nhận, sử dụng gỗ xoan đào HAGL khi thiết kế bộ tủ bếp gỗ xoan đào TBXD08 mang đến một không gian bếp đẹp và thu hút. Hpro cung cấp tủ bếp gỗ xoan đào HAGL 100% không pha tạp chất.
Bạn đang cần 1 bộ tủ đơn giản, công năng? Bạn đang cần 1 cảm giác ấm cúng và gần gũi sau mỗi ngày kết thúc công việc? Tủ bếp gỗ xoan đào TBXD08 là lựa chọn hoàn hảo cho bạn. Cùng vào căn bếp nhà chú Thụy để tìm hiểu về bộ tủ bếp này nhé!
Tủ bếp TBXD08 nhà chú Thụy sử dụng gỗ xoan đào Hoàng Anh Gia Lai được sấy tẩm bằng công nghệ hiện đại nhất hiện nay.Nhờ vậy, bộ tủ có được những ưu điểm vượt trội:
- Khả năng chịu nhiệt, chịu nước và chịu lực rất tốt, chống mỗi mọt hiệu quả đảm bảo được sự chắc chắn và an toàn trong quá trình sử dụng.
- Gỗ chắc chắn, đường vân đẹp đảm bảo yếu tố thẩm mỹ. Bên cạnh đó, xoan đào cũng có hương thơm dịu nhẹ, tự nhiên nên tạo được cảm giác dễ chịu và thoải mái cho không gian bếp.
- Giá của gỗ xoan đào cũng vô cùng vừa phải, phù hợp với điều kiện kinh tế của nhiều gia đình nên nó được rất nhiều gia đình yêu thích và sử dụng.
Không thể phủ nhận, sử dụng gỗ xoan đào HAGL trong thiết kế tủ bếp sẽ mang đến cho bạn một không gian bếp đẹp và thu hút. Gam màu nâu cánh dán kết hợp với những mảng sáng của sàn và kính khiến căn bếp trở nên vô cùng nổi bật. Thiết kể thông minh với đầy đủ thiết bị, phụ kiện bếp hiện đại mà lại phảng phất hơi thở của sự gần gũi, ấm áp, từ đó mang đến cho gia đình một không gian sang trọng, đẳng cấp mà ấm cúng thân thương.
Thiết kế bộ tủ bếp gỗ xaon đào TBXD08 nhà chú Thụy
Đơn giản, gọn gàng, mẫu tủ bếp gỗ xoan đào TBXD08 dành cho những gia đình có diện tích bếp nhỏ. Những mẫu tủ bếp gỗ xoan đào hiện đại được thiết kế với những đường nét đơn giản, màu cánh gián đặc trưng cùng vơi đường vân gỗ nghệ thuật luôn sự thu hút cho không gian.
Tủ bếp gỗ xoan đào TBXD08 với thiết kế chữ L hiện đại, tiện dụng
Bộ tủ bếp gỗ xoan đào nhà chú Thụy – Việt Trì được thiết kế theo kiểu dáng chữ L kết hợp với tủ rượu cực kì sang trọng. Tủ bếp hiện đại ngày nay được tích hợp rất nhiều những công dụng trong một sản phẩm nội thất, và sự tiện dụng đó đã được đi kèm với tủ rượu sẽ làm cho không gian phòng bếp nhà bạn vô cùng sang trọng, đẳng cấp và tiện nghi. TBXD08 có tủ rượu là một trong những mẫu tủ bếp đẹp mang đến cho gia đình bạn một không gian lý tưởng để trưng bày các loại rượu yêu thích hay những bữa cơm gia đình tuyệt vời.
Không gian bếp lý tưởng nhà chú Thụy được bố trí như thế nào, mời bạn tham khảo bản vẽ chi tiết 2d dưới đây:
Bản vẽ chi tiết 2d mặt đứng A tủ bếp gỗ xoan đào TBXD08
Bản vẽ chi tiết 2d mặt đứng B tủ bếp gỗ xoan đào TBXD08 nhà chú Thụy
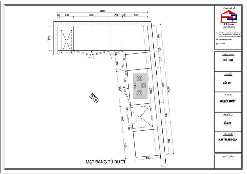
Bản vẽ chi tiết 2d tủ bếp dưới bộ tủ bếp gỗ xoan đào TBXD08
Bản vẽ chi tiết 2d tủ bếp trên bộ tủ bếp gỗ xoan đào TBXD08
Sau 15 ngày kể từ ngày ký hợp đồng, Hpro tiến hành thi công lắp đặt bộ tủ bếp gỗ xoan đào TBXD08 cho nhà chú Thụy ở Kim Đồng, tp Việt Trì. Dưới đây là hình ảnh thực tế bộ tủ bếp sau khi hoàn thiện:
Hình ảnh thực tế tủ bếp gỗ xoan đào nhà chú Thụy sau khi hoàn thiện
Bộ tủ bếp gỗ xoan đào TBXD08 hoàn thiện với đầy đủ thiết bị, phụ kiện hiện đại
Thiết kế chữ L tiện nghi của bộ tủ TBXD08 rất phù hợp với không gian bếp nhà chú Thụy
Chú Thụy – Kim Đồng, Việt Trì cực kì ưng ý với bộ tủ bếp sau khi Hpro lắp đặt hoàn thiện
Bộ tủ bếp gỗ xoan đào TBXD08 nhà chú Thụy có giá bao nhiêu chắc chắn là điều bạn đang quan tâm. Hpro luôn công khai giá của từng bộ tủ bếp để khách hàng nắm rõ. Hiểu tâm lý khách hàng, chúng tôi không ngại bị so sánh với những đơn vị khác trên thi trường bởi Hpro luôn tự tin về chất lượng và giá cả mang đến cho KH tại Hpro luôn là tốt nhất. Dưới đây là báo giá tủ bếp gỗ xoan đào nhà chú Thụy, mời bạn tham khảo:
Hpro báo giá chi tiết bộ tủ bếp gỗ xoan đào TBXD08 nhà chú Thụy
Bạn muốn sở hữu 1 bộ tủ bếp đẹp và tiện dụng nhất thì việc chọn lựa đơn vị thi công là rất quan trọng. Với trên 10 năm kinh nghiệm trong lĩnh vực thiết kế thi công tủ bếp, Nội thất Hpro đảm bảo sẽ làm hài lòng mọi quý khách hàng.
Khách hàng sẽ nhận được những dịch vụ tốt nhất khi thi công tủ bếp tại Hpro:
>>> Một mẫu tủ tiêu biểu không nên bỏ qua: Tủ bếp gỗ xoan đào TBXD09 nhà anh Phương - Tp. Việt Trì
HỎI & ĐÁP
Liên hệ để được tư vấn