




4+
Mã hàng: TBXD09
Số lượng:
Mô tả sản phẩm
Tủ bếp gỗ xoan đào TBXD09 sử dụng gỗ xoan đào Hoàng Anh Gia Lai 100% không pha tạp chất mang đến 1 sản phẩm không chỉ thẩm mỹ mà chất lượng và độ bền vượt trôi. Hpro tự tin là đơn vị cung cấp tủ bếp gỗ xoan đào HAGL tốt nhất thị trường hiện nay.
Gia đình bạn đang muốn tìm cho mình một bộ tủ bếp phù hợp nhất cho không gian bếp nhà mình? Và bạn đang hướng đến chất liệu gỗ xoan đào tự nhiên bởi độ bền đẹp của loại gỗ này? Bộ tủ bếp gỗ xoan đào TBXD09 sẽ là 1 sự lựa chọn không tồi, tìm hiểu nhé!
Tủ bếp gỗ xoan đào mang phong cách quý phái sang trọng. Với tông màu cánh dán đặc trưng tủ bếp gỗ xoan đào HAGL tạo cảm giác thân thiện cho căn bếp gia đình bạn. Tủ bếp làm từ gỗ xoan đào là một trong những mẫu tủ bếp cao cấp chất lượng được nhiều khách hàng quan tâm và lựa chọn.
Tủ bếp gỗ xoan đào HAGL luôn được đánh giá cao về chất lượng, độ bền và tính thẩm mỹ. Tủ bếp gỗ Xoan Đào TBXD09 hoàn toàn tự nhiên 100% không pha lẫn tạp chất. Hậu tủ được sử dụng tấm hợp kim Aluminum 3mm siêu chống nước.
Thiết kế 3D tủ bếp gỗ xoan đào tự nhiên nhà anh Ngọc – Việt Trì – view 1
Sở hữu không gian bếp khá thoải mái, anh Ngọc lựa chọn thiết kế chữ L hiện đại cho gian bếp nhà mình. Các khoang tủ bếp được bố trí khoa học và ngăn nắp mang lại sự thuận tiện cao nhất cho người nội trợ, đảm bảo khả năng lưu trữ tối đa khi sử dụng mà vẫn tạo cảm giác ấm cúng, sang trọng cho trong không gian nhà bếp. Sản phẩm kết hợp cùng với các đồ nội thất trong gia đình giúp làm nổi bật lên phong cách đẳng cấp cho phòng bếp của gia đình.
>>> Mãn nhãn với những mẫu tủ bếp gỗ xoan đào đẹp được quan tâm nhất trên thị trường hiện nay!
Thiết kế 3D tủ bếp gỗ xoan đào tự nhiên nhà anh Ngọc – Việt Trì – view 2
Thiết kế chứ L rất được ưa chuộng 1 phần là do yếu tố phong thủy. Khi sở hữu bộ tủ bếp chữ L bạn sẽ có được tam giác phong thủy cực kỳ quan trọng: Chậu rửa - bếp nấu - tủ lạnh. Tam giác phong thủy này theo quan niệm sẽ cân bằng sinh khí trong phòng bếp, mang đến nhiều may mắn và tài lộc cho gia chủ.
Thiết kế 3D tủ bếp gỗ xoan đào tự nhiên nhà anh Ngọc – Việt Trì – view 3
Xem chi tiết bản vẽ 2d:
Bản vẽ chi tiết 2d tủ bếp trên của bộ tủ bếp gỗ xoan đào TBXD09
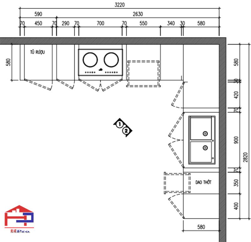
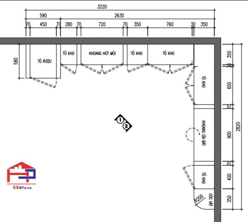
Bản vẽ chi tiết 2d tủ bếp trên bộ tủ bếp gỗ xoan đào TBXD09
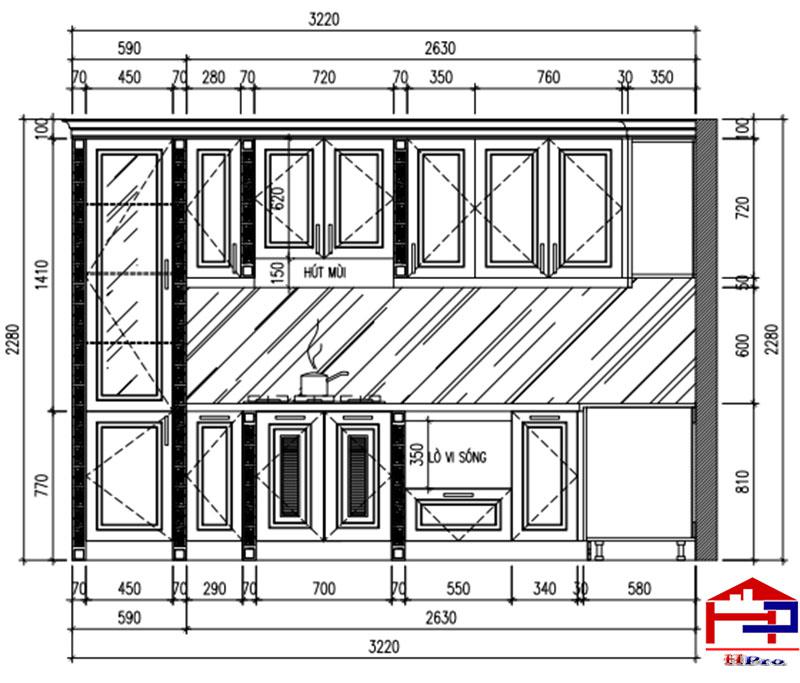
Bản vẽ chi tiết 2d mặt đứng 1 tủ bếp gỗ xoan đào TBXD09
Bản vẽ chi tiết 2d mặt đứng 2 tủ bếp gỗ xoan đào TBXD09
Sau 15 ngày kể từ ngày ký hợp đồng, đội ngũ thợ lành nghề cùng giám sát công trình có mặt tại nhà anh Ngọc tại KDT Minh Phương, Tp Việt Trì để tiến hành thi công lắp đặt bộ tủ bếp gỗ xoan đào TBXD09. Quá trình làm việc tỉ mỉ, cẩn trọng và chuyên nghiệp đã được chúng tôi ghi lại nhằm mang lại cho KH những hình ảnh thực tế khách quan nhất. Mời bạn tham khảo:
Đội thợ Hpro tiến hành thi công lắp đặt tủ bếp gỗ xoan đào TBXD09 nhà anh Ngọc – Tp.Việt Trì
Bộ tủ bếp được lắp đặt bởi đội thợ Hpro giàu kinh nghiệm, tay nghề cao
Bộ tủ bếp gỗ xoan đào TBXD09 đang từng bước được hoàn thiện theo thiết kế
Bộ tủ bếp gỗ xoan đào TBXD09 gần được hoàn thiện
Với chiều dài gần 6m, bộ tủ bếp TBXD09 được anh Ngọc lựa chọn thiết kế hiện đại cùng phụ kiện sản xuất nhằm tối ưu hóa chi phí. Phụ kiện tủ bếp do Hpro sản xuất được làm từ đôi bàn tay tài hoa của người thợ lành nghề đảm bảo chất lượng, độ bền không thua kém các sản phẩm nhập khẩu mà giá cả lại tốt hơn hẳn. Phụ kiện sản xuất sẽ là lựa chọn không tồi giúp bạn tiết kiệm được 1 khoản chi phí để sử dụng cho nội thất khác trong gia đình. Tham khảo báo giá chi tiết bộ tủ bếp gỗ xoan đào TBXD09 của nhà anh Ngọc dưới đây:
Báo giá chi tiết tủ bếp gỗ xoan đào TBXD09 nhà anh Ngọc
Tại Hpro, ngoài chi phí về phần gỗ, chi phí cho tiết bị, phụ kiện, chi phí vận chuyển (nếu khách ở xa) thì khách hàng gần như không phải trả thêm bất kỳ chi phí nào khác. Đó là chính sách bán hàng tuyệt vời mà có lẽ bạn khó có thể tìm kiếm 1 đơn vị nào khác trên thị trường. Chúng tôi luôn tạo điều kiện để khách hàng tìm đến mình có được lựa chọn ưng ý và phù hợp nhất. Điều đó lý giải vì sao thương hiêu Nội Thất Hpro đã hoạt động 10 năm và luôn là địa chỉ cung cấp tủ bếp được KH quan tâm. Bên cạnh chương trình tri ân, khuyến mại hàng tháng thì khi đến với chúng tôi, sương sương bạn sẽ có được những ưu đãi sau:
>>> Tủ bếp gỗ xoan đào TBXD10 nhà anh Việt - Như Xuân, Thanh Hóa
HỎI & ĐÁP
Liên hệ để được tư vấn