02/01/26
340
Trong thiết kế nội thất, tủ bếp gỗ gõ đỏ được xem là biểu tượng của sự sang trọng, bền vững. Gõ đỏ là dòng gỗ tự nhiên cao cấp có khả năng chống mối mọt ấn tượng, do đó tủ bếp được chế tác từ loại gỗ này có tuổi thọ lâu dài. Dưới đây là những lý do bạn nên đầu tư tủ bếp gỗ gõ đỏ!
- Độ bền cao, chống mối mọt
Gỗ gõ đỏ thuộc nhóm gỗ quý I với đặc tính cứng, nặng và rất bền. Loại gỗ này có khả năng chịu lực tốt, không co ngót, cong vênh khi thay đổi nhiệt độ hay độ ẩm – điều mà các loại gỗ thường khó đáp ứng. Cấu trúc gỗ chắc, chứa nhiều tinh dầu tự nhiên giúp chống nấm mốc, mối mọt. Những đặc tính này giúp tủ bếp gỗ gõ đỏ bền lâu trong môi trường nhà bếp – nơi thường xuyên tiếp xúc với nước, dầu mỡ.
- Màu sắc tự nhiên, vân gỗ đẹp
Gỗ gõ đỏ sở hữu gam màu đỏ vàng nổi bật, đặc biệt, khi được sơn phủ PU giúp bề mặt gỗ lên màu ấm, sang trọng và “bắt sáng”. Vân gỗ uốn lượn mềm mại, rõ nét như sóng nước, mang lại cảm giác tự nhiên. Đặc tính này khiến mỗi tủ bếp gỗ gõ đỏ đều mang vẻ riêng biệt, khó nhầm lẫn với bất kỳ dòng gỗ nào khác. Màu sắc tự nhiên cũng giúp không gian nấu nướng của gia chủ luôn ấm cúng, gần gũi.
- Tăng giá trị thẩm mỹ cho căn bếp
Lắp đặt tủ bếp gỗ gõ đỏ còn tăng giá trị thẩm mỹ cho căn bếp. Với vẻ đẹp tự nhiên, màu sắc đặc trưng cùng khả năng phối hợp linh hoạt với nhiều phong cách thiết kế, tủ bếp gỗ gõ đỏ giúp không gian nhà bếp sang trọng, ấm cúng hơn. Đồng thời, đồ gỗ tự nhiên thường gắn với cảm giác cao cấp và trường tồn theo thời gian, khiến căn bếp của bạn luôn giữ được sự sang trọng dù trải qua nhiều năm sử dụng.

Tủ bếp gỗ gõ đỏ độ bền cao, chống ẩm, chống mối mọt hiệu quả

Tủ bếp gỗ gõ đỏ độ bền cao , phù hợp làm thiết kế họa tiết tân cổ điện
Thi công lắp đặt tủ bếp gỗ gõ đỏ cần được thực hiện bởi đội ngũ kỹ thuật giàu kinh nghiệm, có tay nghề cao với quy trình chuyên nghiệp!
Bước 1 – Khảo sát và đo đạc không gian bếp
Quá trình khảo sát giúp xác định chính xác diện tích, vị trí đặt tủ và bố cục tổng thể của căn bếp. Kỹ thuật viên sẽ đo chiều dài, rộng, cao và khoảng cách giữa các khu vực như bếp nấu, chậu rửa, tủ lạnh để đảm bảo thiết kế tủ tiện dụng, cân đối và phù hợp phong thủy. Ngoài ra, bước này giúp kiểm tra hệ thống điện nước, ống dẫn gas, vị trí ổ cắm để tránh lỗi kỹ thuật khi lắp đặt. Đo đạc chính xác ngay từ đầu giúp tiết kiệm chi phí, thời gian và đảm bảo thẩm mỹ cho toàn bộ không gian.
Bước 2 – Thiết kế bản vẽ 2D/3D
Dựa trên số liệu khảo sát, kiến trúc sư sẽ lên bản vẽ thiết kế 2D và 3D chi tiết. Bản vẽ thể hiện rõ kiểu dáng tủ, cách bố trí khoang tủ, vị trí bếp nấu, chậu rửa, thiết bị bếp và màu sắc gỗ gõ đỏ. Thiết kế 3D giúp khách hàng dễ hình dung không gian bếp sau khi hoàn thiện và điều chỉnh kịp thời nếu cần, đảm bảo sản phẩm cuối cùng đúng nhu cầu và thẩm mỹ mong muốn.

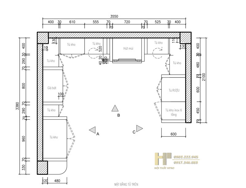
Bản vẽ 2D tủ bếp gỗ gõ đỏ
Bước 3 – Thi công, lắp đặt và hoàn thiện
Khi bản thiết kế được duyệt, xưởng sẽ tiến hành gia công gỗ gõ đỏ theo tiêu chuẩn kỹ thuật cao, đảm bảo từng chi tiết được xử lý chống mối mọt, chống ẩm và sơn phủ PU chống trầy xước. Sau đó, đội ngũ kỹ thuật chuyển bộ tủ đến công trình và lắp đặt theo bản vẽ. Các công đoạn quan trọng bao gồm lắp khung, cánh tủ, mặt đá bếp, bản lề, tay nắm và hệ thống đèn chiếu sáng. Tất cả mối ghép, đường nối và khe hở được kiểm tra kỹ để đảm bảo độ khít, cân đối và bền vững.
Bước 4 – Kiểm tra, bàn giao cho khách hàng
Sau khi hoàn thiện lắp đặt, đội ngũ thi công tiến hành kiểm tra toàn diện: độ chắc chắn của bản lề, sự trơn tru của cánh mở, độ phẳng của mặt đá, ánh sáng hệ thống đèn và sự an toàn điện nước. Khi mọi hạng mục đạt yêu cầu, đơn vị thi công sẽ bàn giao cho khách hàng và hướng dẫn cách sử dụng, vệ sinh, bảo quản tủ bếp gỗ gõ đỏ đúng cách để kéo dài tuổi thọ.
Dưới đây là bảng báo giá tủ bếp gỗ gõ đỏ Pachy nhập khẩu Nam Phi tại Nội thất Hpro.
Quy cách – Chất liệu | Đơn vị tính | Đơn giá (VNĐ) |
Tủ bếp trên + dưới Gỗ tự nhiên dày 18mm, khung thùng và mặt cánh 100% gỗ tự nhiên, hậu tủ Aluminium. Sơn Pu- Oversen Thái Lan 6 lớp cao cấp. Đã bao gồm bản lề, tay nắm, ray ngăn kéo. - Tủ trên C80xS35 cả phào trang trí (cm) + Tủ dưới: C81xS57 cả mặt đá (cm) - Tủ bếp cao: 225cm (từ mặt đến đến nóc phào trang trí) | Mét dài | 14.000.000 |
Quầy bar trang trí + Tủ rượu Gỗ tự nhiên dày 18mm, hậu tủ Aluminium. Sơn Pu- Oversen Thái Lan 6 lớp cao cấp. Đã bao gồm bản lề, tay nắm, ray ngăn kéo - Tủ trên: thiết kế - Tủ dưới: C110xS40 (cm) | Mét dài | 14.000.000 |
Bàn đảo bếp Gỗ tự nhiên dày 18mm, hậu tủ Aluminium. Sơn Pu- Oversen Thái Lan 6 lớp cao cấp. Đã bao gồm bản lề, tay nắm, ray ngăn kéo + KT: C810xS50 (cm) | Mét dài | 13.000.000 |
Lưu ý: Bảng giá tủ bếp gỗ gõ đỏ trên chỉ mang tính chất tham khảo. Tùy theo chiều dài bếp, phụ kiện đi kèm… mà mức giá có thể thay đổi. Để được báo giá chi tiết, quý khách vui lòng liên hệ: 0989.846.666.
Nội thất Hpro là một trong những đơn vị chuyên thiết kế, sản xuất và thi công tủ bếp gỗ gõ đỏ được nhiều khách hàng đánh giá cao về chất lượng và độ uy tín. Hpro sở hữu hệ thống showroom trưng bày cùng xưởng sản xuất riêng, giúp kiểm soát tốt từ khâu lựa chọn gỗ, gia công đến lắp đặt hoàn thiện tại nhà khách hàng.
Đơn vị cam kết sử dụng chất liệu gỗ gõ đỏ tự nhiên đã qua xử lý sấy đạt chuẩn, hạn chế cong vênh và co ngót. Các mẫu tủ bếp tại Hpro đa dạng từ phong cách từ hiện đại đến tân cổ điển, được thiết kế theo bản vẽ 2D/3D dựa trên mặt bằng thực tế, giúp khách hàng dễ hình dung.
Hpro còn được đánh giá cao nhờ đội ngũ tư vấn và kiến trúc sư chuyên nghiệp, hỗ trợ khách hàng từ khâu khảo sát, lên phương án thiết kế đến thi công lắp đặt trọn gói. Ngoài ra, đơn vị cũng áp dụng chính sách bảo hành, hậu mãi giúp khách hàng yên tâm khi lựa chọn lắp đặt tủ bếp tại Hpro.

Nội thất Hpro sở hữu xưởng sản xuất quy mô lớn
Video Cách phân biệt gỗ Gõ đỏ tự nhiên tại xưởng HPRO
Tủ bếp gỗ gõ đỏ là dòng nội thất cao cấp, có giá trị sử dụng và tính thẩm mỹ lâu dài. Tuy nhiên, để đảm bảo chất lượng, tránh “tiền mất tật mang”, gia chủ cần lưu ý một số vấn đề sau trước khi lắp đặt tủ:
Dưới đây là hình ảnh một số công trình tủ bếp gỗ gõ đỏ do Nội thất Hpro thi công:

Tủ bếp gỗ gõ đỏ với những đường vân rõ nét, sắc sảo

Hình ảnh 3D mẫu tủ bếp gỗ gõ đỏ được Nội thất Hpro thiết kế

Đội ngũ thợ của Nội thất Hpro thi công lắp đặt tủ bếp gỗ gõ đỏ cho khách hàng

Mẫu tủ bếp gỗ gõ đỏ màu sắc sang trọng, vân đẹp hút mắt

Thiết kế tủ chữ L, các khu vực chức năng được bố trí khoa học

Thi công tủ bếp gỗ gõ đỏ tự nhiên có quầy bar dạng chữ U

Thi công tủ bếp gỗ gõ đỏ tự nhiên Pachy
Như vậy có thể thấy rằng, lắp đặt tủ bếp gỗ gõ đỏ không chỉ mang đến độ bền vượt trội mà còn nâng cao giá trị thẩm mỹ cho không gian bếp. Với màu sắc tự nhiên, vân gỗ đẹp và quy trình thi công đúng kỹ thuật, tủ bếp gỗ gõ đỏ tại Nội thất Hpro là khoản đầu tư lý tưởng cho những gia đình đề cao chất lượng và sự sang trọng.
XEM THÊM
Chia sẻ:
Bài đăng
Bài viết mới
17/05/26
4063
17/05/26
39203
15/05/26
2771
Bài viết xem nhiều
Bài viết liên quan